本案位于南京方山东麓,大学城公园北侧草甸之上,南侧正对小球高尔夫球场开阔草坪。在周边景致围绕的场地上,建筑以低伏的姿态融于远山郊野之间。设计师在入口处划分出独立的前厅接待空间,通过十米长廊下的竹林缓阶作为引导,从建筑端侧进入室内。场地东侧的竖向玻璃灯塔布置在水院之上,阳光透过内衬于玻璃幕墙下的穿孔金属百叶投下斑驳的疏影。室内观景的视线越过整体抬升的无边水院眺望南侧绿意盎然的高尔夫球场,建筑本身也仿佛成为了草甸之中的风景。

南京泰山七号院展示中心外部实景图

南京泰山七号院展示中心外部实景图

南京泰山七号院展示中心外部实景图

南京泰山七号院展示中心外部实景图

南京泰山七号院展示中心外部实景图

南京泰山七号院展示中心外部实景图

南京泰山七号院展示中心外部夜景实景图

南京泰山七号院展示中心外部夜景实景图

南京泰山七号院展示中心外部夜景实景图

南京泰山七号院展示中心内部实景图

南京泰山七号院展示中心内部实景图

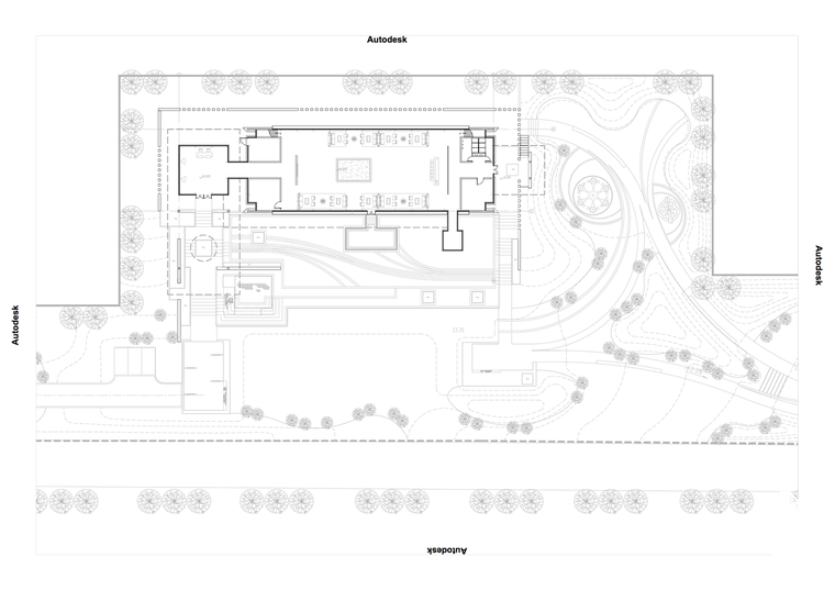
南京泰山七号院展示中心平面图

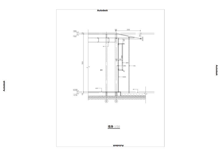
南京泰山七号院展示中心示意图