中国富豪还在全球买买买
……顶豪
—GLOBLE LUXURY REALESTATE

2021目前全美第一高交易
史上第三高成交金额
别尖叫!
最近曼哈顿这套成交破了无数记录:
➀2021年以来全美最高成交金额
➁也是美国有史以来第3贵的买房交易
➂来自中国1位神秘买家大手一挥豪掷1.57亿美元(10.18亿人民币)
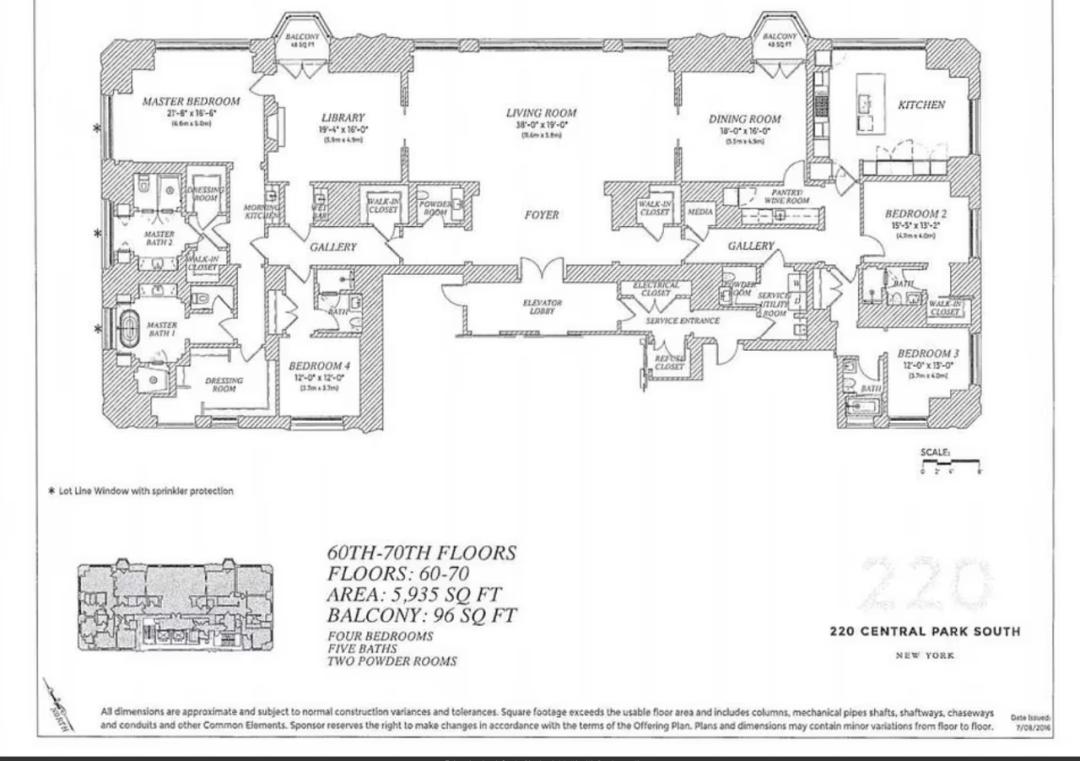
➃购买标的:享誉世界顶豪圈的「中央公园南220号」220 Central Park South 60F、61F合计2套1层1户大平层,外加18楼的单间公寓。
说简单点:1个人1口气,买下曼哈顿最负盛名公寓3套公寓!绝非普通富豪。谁?蔡崇信。中国人,就是这么豪横。

来,看看他的邻居都有谁?
个个都大有来头!

△《纽约邮报》此前披露:房地产投资信托公司派拉蒙集团董事长兼首席执行官Albert Behler,巴西亿万富翁Renata de Camargo Nascimento,音乐家Sting和其妻子Trudie都是这里的业主。

△2019年1月,对冲基金大亨Ken Griffin以美国历史上最高房产成交价格2亿3800万美金买下了该栋物业50-53层.
来,回顾一下220 Central Park South长啥样?
曼哈顿亿万富豪大道的「四大天王」(220 Central Park South、Central Park Tower、111 W 57 Street、520 Park Avenue)2019很疯狂,一年内重塑纽约天际线。

220 Central Park Southye3被誉为“亿万富翁的碉堡”,新古典主义的石灰石塔楼,正位于“亿万富翁大街上”。 全球最贵顶豪街57街┃纽约“十亿级富豪街”上的豪宅风云【看见设计337】

大楼高290米,地面69层,地下3层,共有116个全产权公寓单元。这些物业从没有公开拿到市场上来销售,但通过房产经纪公司+资金流水证明=客户可直接面见开发商,如今90%的单元已经名花有主,这些花名册新添一个名字,叫蔡崇信。

2020年疫情期间,纽约市最贵的房产交易,前22名都来自于这栋物业。就连面积最小最便宜222平方米的stuio,在2015年,售卖起价都至少要1225万美元,光出租,一个月的租金就达$590,000.

占据了曼哈顿最“上风上水”的为主,中央公园在其北面,Columbus Circle就在其西侧、艺术设计博物馆、*耐基卡**音乐厅,林肯表演中心,都步行可达。

再看看这两个名字:
Robert A. M. Stern Architects: 设计楼体,费城美国革命博物馆以耶鲁大学学院建筑的大师。
Thierry W. Despont: 室内装潢,他由曾领导过自由女神像修复的设计。


根据知名地产行业媒体The Real Deal披露的大楼60楼以上户型的递档平面图来看,蔡崇信购买的2套60、61层大平层公寓,面积在5,935平方英尺(551平方米)左右。每套都有4间卧室、5间浴室,还有独立的书房、收藏室。

虽然60层、61层内部,并未能开放给媒体拍照,但通过同栋楼其他位于54和55层的同户型的公寓设计图,也能感受一二。









项目名称 | 220 Central Park South(中央公园南220号)
所在区域 | 纽约中城
项目地址 | 220 Central Park South
交房时间 | 2018
房屋类型 | 豪华公寓
开发投资 | Vornado Realty Trust(沃纳多房地产信托)
建筑设计 | Robert A. M. Stern(罗伯特·斯特恩)
大楼高度 | 290米
楼层数量 | 79层
可售套数 | 116套
公寓户型 | 2 - 6卧
销售均价 | $5,500/平方尺(¥38万/m2),$1,300万/套(¥9,000万/套)至$3,900万/套(¥2.7亿/套)之间

在2015年,《华尔街日报》报道,马云夫妇2人以个人名义买下了纽约州郊区面积113平方公里的1处度假屋的所有权,当时购买成交价约2300万美元,即1.6亿人民币。 问一下你周边的大土豪,曼哈顿、迈阿密多有屯粮~

(图片来源于财富,版权属于原作者)

图片来源于wsj,版权属于原作者
不同于蔡崇信购置的是商业物业,或作个人居住用途,马云夫妇的这片土地,将全部委托给专业基金会进行以自然保护为目标的管理工作。这格局,咋样?

432 Park Ave.顶层
10亿挂牌
曼哈顿豪宅之王
更激动的信息来了!
上月底,曾经全球最贵豪宅曼哈顿超高层“公园大道 432 号”顶层对外出售!看,这BOSS肯定是爱马仕狂。
叫价:1.69 亿美元,约合10亿人民币,成为曼哈顿最昂贵的上市房源。
标的:六居室、七间浴室,顶层96F。这样板房,还多少人看过,赶紧,欣赏。

根据清单,这套豪宅里面装满了芬迪、宾利和爱马仕的家具、艺术收藏品、人字纹白橡木地板、高端饰面和一个图书馆,厨房配有大理石地板和台面、无缝白漆、橡木橱柜以及顶级 Miele 电器,包括双烤箱、双水槽、酒柜和双洗碗机。

根据 432 Park Ave. 网站的说法,有些公寓甚至都配有一个内置的浓缩咖啡机。

根据当时的房地产记录和报告, 沙特零售和房地产亿万富翁 Fawaz Al Hokair 在 2016 年以 8770 万美元的价格购买了该单位。

如果它以挂牌价出售,它将成为纽约市有史以来第二昂贵的房地产销售。第一贵的是对冲基金经理肯·格里芬 (Ken Griffin) 于 2019 年 1 月以 2.38 亿美元的价格购买了中央公园南 220 号的一套公寓。

“任何人都想拥有大公寓或在某处拥有一整层楼。但公园大道 432 号只有一间顶层公寓”。言外之意,怎么贵都合理,因为它的唯一带来唯一的定价权。

不过,这种超级昂贵的房地产通常需要数年才能出售,比如迈阿密附近曾经价值3900万美元的Regalia顶层公寓,现在要价2550万美元,自2017年以来一直在市场上出售。以及价值7000万美元的加州赫斯特庄园,最早的要价是1.95亿美元。

总部位于纽约的经纪公司道格拉斯·埃利曼 (Douglas Elliman) 表示,在经历了艰难的疫情之后,4 月、5 月和 6 月是十年来#房价#增长节奏最快的一季度。

窗外实景,熟悉的电影镜头?
2021 年上半年,曼哈顿价值 2000 万美元以上的房屋有 26 套成交,其中近三分之一仅在 6 月份就成交。Serhant 告诉《华盛顿邮报》“房地产都是一项令人难以置信的投资,因为它可以对冲通胀。”实际上,全球大都市2021都在涨甚至暴涨。曼哈顿作为美国“通胀中心”,当然“难逃一劫”。
全球房价创2007年来最高涨幅!可怕的2021上半年【深度】
同比增长105%┃2021上半年中国5000万+顶豪狂【深度】

没看过瘾?再给你回顾一下92F的样板房:

















96F的样板房一并释放:
















- END -