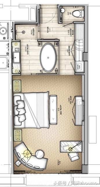
星级酒店标准间的30种设计思路
- 哈喽,艾瑞吧得下午好,很多时候我们在外出旅游或者出差的时候都需要入住酒店,可是每次住完酒店,尤其是星级酒店,总会有一种“别人家的设计”的感觉,
还有我们广大的设计师童鞋,在初次接到工装的时候,尤其是在没有经验,也找不到案例的时候,恰好是个个酒店装修呢,这篇文章也可以帮你有点思路,让你的设计也有星级的格局。
今天就给大家分享一篇关于星级酒店标准间设计的案例,

























谢谢阅读,我是周沫,感兴趣的可以点击关注或者在评论区讨论。
还有我们广大的设计师童鞋,在初次接到工装的时候,尤其是在没有经验,也找不到案例的时候,恰好是个个酒店装修呢,这篇文章也可以帮你有点思路,让你的设计也有星级的格局。
今天就给大家分享一篇关于星级酒店标准间设计的案例,

























谢谢阅读,我是周沫,感兴趣的可以点击关注或者在评论区讨论。