花甲老人的异装完整版 (60岁老人喜欢装修风格)

六十岁老人装修风格怎么搭配,适合50-60岁老人的装修风格

老人喜欢的风格是什么呢?

肯定不是纷杂炫目

而是精致简洁中见沉淀

就像大起大落最后的人生

北欧风应该是其中代表之一了

那是一种退休后回归生活回归自然的向往

六十岁老人装修风格怎么搭配,适合50-60岁老人的装修风格

这位退休老太

把房子设计成了自己喜欢的模样

若是小编老了还能有这种手笔

感觉也算是圆了现在的梦了~

六十岁老人装修风格怎么搭配,适合50-60岁老人的装修风格

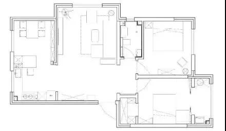
这是一套107平米的三室两厅

户型图如下:

六十岁老人装修风格怎么搭配,适合50-60岁老人的装修风格

入户

选择了一个白色造型简单的收纳柜,可以放置鞋子或是雨伞等出门物品,方便又美观。关注看装饰品,整个家装的装饰品都简单但很有格调。

六十岁老人装修风格怎么搭配,适合50-60岁老人的装修风格

地板采用浅色木地板,奠定了家装的温馨感,一眼望去十分和谐舒适。

六十岁老人装修风格怎么搭配,适合50-60岁老人的装修风格

客厅

我想这大概是见过的客厅中最简洁的了,但是并不简陋。还是白色与木色的主色调,这几种色彩都有视觉扩大空间的效果。

六十岁老人装修风格怎么搭配,适合50-60岁老人的装修风格

从细节上我们不难发现,单品不多,但是都非常有味道,比如这造型别致的台灯,颤巍巍一盏素灯别具美感。

六十岁老人装修风格怎么搭配,适合50-60岁老人的装修风格

沙发是纯白的,若是抱枕再选择纯白未免单调。所以奶奶很有见解地选择了几款素雅抱枕,并且还是不同材质的。

六十岁老人装修风格怎么搭配,适合50-60岁老人的装修风格

光从白窗帘后射进,整个客厅美得如同一幅油画。

六十岁老人装修风格怎么搭配,适合50-60岁老人的装修风格

六十岁老人装修风格怎么搭配,适合50-60岁老人的装修风格

六十岁老人装修风格怎么搭配,适合50-60岁老人的装修风格

餐厅

餐厅的布置与客厅同理,白色与木色打底。这椅子的套路是不是似曾相识?没错,跟抱枕的选择一样,采取了混搭的处理方式,不同颜色不同材质带来变化。

六十岁老人装修风格怎么搭配,适合50-60岁老人的装修风格

六十岁老人装修风格怎么搭配,适合50-60岁老人的装修风格

厨房

厨房的设计更偏现代简洁,主要求实用,嵌入式的橱柜、冰箱设计可最大程度节约空间。

六十岁老人装修风格怎么搭配,适合50-60岁老人的装修风格

六十岁老人装修风格怎么搭配,适合50-60岁老人的装修风格

六十岁老人装修风格怎么搭配,适合50-60岁老人的装修风格

卧室

卧室的风格就俩字:舒服。

看着舒服,睡着也舒服。以原木家具为主,自然的颜色让人舒心。

六十岁老人装修风格怎么搭配,适合50-60岁老人的装修风格

还有一张非常柔软的沙发椅,整个房间没有跳脱的颜色,都是柔软自然的素色,养眼宁静。

六十岁老人装修风格怎么搭配,适合50-60岁老人的装修风格

绿植的存在更添自然气息。

六十岁老人装修风格怎么搭配,适合50-60岁老人的装修风格

次卧则偏清新素雅了,色调要比主卧更亮,但同样以简约为主,小编不会告诉你我最爱床头别致绿植。

六十岁老人装修风格怎么搭配,适合50-60岁老人的装修风格

不管什么样的身家地位,睡在这样的环境里都会感觉自己受到了优待。

六十岁老人装修风格怎么搭配,适合50-60岁老人的装修风格

其它的小装饰,比如插画、插花、台灯都满足了我的文艺心。

六十岁老人装修风格怎么搭配,适合50-60岁老人的装修风格

卫生间

连卫生间都很美,没有各种贵气但冰凉的大理石洗手台,各种夸张的壁画,但就是很赏心悦目。

六十岁老人装修风格怎么搭配,适合50-60岁老人的装修风格

采光也很完美。

六十岁老人装修风格怎么搭配,适合50-60岁老人的装修风格