一、直动式电磁阀
直动式电磁阀有常闭型和常开型二种。常闭型断电时呈关闭态势。当线圈通电时产生电磁力,使动铁芯克服弹簧力同静铁芯吸合直接开启阀,介质呈通路;当线圈断电时电磁力消失,动铁芯在弹簧力的作用下复位,直接关闭阀口,介质不通。结构简单,动作可靠,在零压差和微真空下正常工作。常开型正好相反。

二、分步直动式电磁阀
分步直动式电磁阀它是一种直动和先导式相结合的原理,当入口与出口没有压差时,通电后,电磁力直接把先导小阀和主阀关闭件依次向上提起,阀门打开。

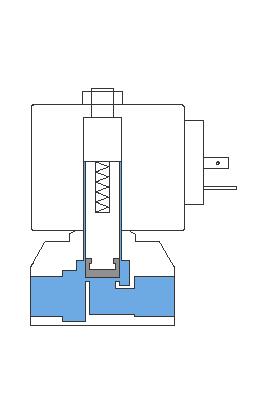
三、先导式电磁阀
先导式电磁阀是最为常用的种类,一般是用于口径较大,压力较高的管道中,这类阀门功耗小,发热少,线圈不易烧毁,可以长时间通电,而且节能,所以被广泛使用。对比先导式电磁阀,虽然稍加复杂,但可以实现更高更精确的控制效果,能够控制阀口的开关速度,针对降低液压冲击有很好的效果。先导式电磁阀打开时,必须有先导压力,否则是无法打开的,在使用压力范围内,介质压力越大,就密封得越严。
这种电磁阀由先导阀和主阀芯联系着形成通道组合而成;常闭型在未通电时,呈关闭态势。当线圈通电时,产生的磁力使动铁芯和静铁芯吸合,导阀口打开,介质流向出口,此时主阀芯上腔压力减少,低于进口侧的压力,形成压差克服弹簧阻力而随之向上运动,达到开启主阀口的目的,介质流通。当线圈断电时,磁力消失,动铁芯在弹簧力作用下复位关闭先导口,此时介质从平衡孔流入,主阀芯上腔压力增大,并在弹簧力的作用下向下运动,关闭主阀口。常开式原理正好相反。

直动式和先导式如何选择?
- 直动式电磁阀一般是用于小口径(ASCO8320系列的接口尺寸为1/8"-1/4"),低压力的环境,这种结构的阀门打开时,不需要要求介质的最低压力,零压启动,所以相比先导式电磁阀的的启动速度,会来得更快一些,特别适用于要求快速切断的场所中。功耗比先导式电磁阀大,一般在5-20w,高频通电容易烧毁线圈,但是控制简单,使用范围广。
- 先导式电磁阀先导式电磁阀一般是用于大口径,高压力的场合,这种结构的阀门打开时,要求电磁阀的最低压力不能低于0.05MPa,必须有先导压力,否则是无法打开的。此外先导式电磁阀相比于直动电磁阀的流通能力要来得大,一般CV至可以达到3以上。针对压缩空气的纯净度要求较高,直动的就没有那么严格了。电磁头小,功耗小,0.1-0.2w ,可频繁通电,长时间通电,而不会烧毁,而且节能。流体压力范围上限较高,但必须满足流体压差条件 ,不过液体的杂质容易堵塞先导阀孔,不适用于液体使用。
- 承受压力:从二者的承受液压大小来讲,先导式比直通式承受压力大。
- 响应时间:直动式电磁阀相比较先导式电磁阀的启动速度快,若选择用于快速切断的,建议采购直动式电磁阀。因为先导式电磁阀是通电后小阀先开启,主阀后开,直动式电磁阀则是主阀直接打开。
- 流通能力:先导式的相比于直动电磁阀流通能力要大一些,一般CV值可达3以上,而直动电磁阀的一般CV值都是小于1。直动电磁阀是靠0压启动,而先导的必须有先导压力,一般在2bar左右。
- 功率和损耗:直动式功率要比先导式大。
- 介质洁净度要求:先导式对流通介质的纯净度要求比较高,但是直动式就没有那么的严格了。
电磁阀符号的含义
电磁阀符号由方框、箭头、“T”和字符构成。电磁阀图形符号的含义一般如下:
1、用方框表示阀的工作位置,每个方块表示电磁阀的一种工作位置,即“位”。有几个方框就表示有几“位”,如二位三通表示有两种工作位置。上图的“非通电”和“通电”就是两个不同的工作位置。
2、识别常态位。电磁阀有两个或两个以上的工作位置,其中一个为常态位,即阀芯在非通电时所处的位置。针对二位阀,利用弹簧复位的二位阀则以靠近弹簧的方框内的通路态势为其常态位。针对三位阀,图形符号中的中位是常态位。绘制系统图时,油路/气路一般应连接在换向阀的常态位上。
3、方框内的箭头表示对应的两个接口处于连通态势
4、方框内符号“T”表示该接口不通。
5、方框外部连接的接口数有几个,就表示几“通”。
6、一般,流体的进口端用字母P表示,排出口R表示,而阀与执行元件连接的接口用A、B等表示。
下例中,二位三通电磁阀有两个工作位置和三个通气接口,三个接口分别为进气口(P),工作出气口(A),还有一个放气口(R)。当电磁阀得电励磁时,P和A通;失电回到常位态时,R和A通。

下面两张图详细说明了气阀工作的全部态势:
1、黄圈里的方框表示的是电磁阀常态位的接口连通态势

2、黄圈里的方框是电磁阀励磁态势的接口连通态势

两位三通电磁阀工作原理

两位五通电磁阀工作原理
