距离“金九银十”落幕只剩下不到二十天的时间,楼市抢跑的节奏持续加快,备受买房人关注的城东汇通路也迎来多盘动态。
近日,汇通路纯新盘铭著风华公布户型图,面积段97-136㎡,与板块内的另外两个纯新盘万科紫辰光年和君启,都将最快10月底迎来首开,感兴趣的买房人可以重点关注。
01
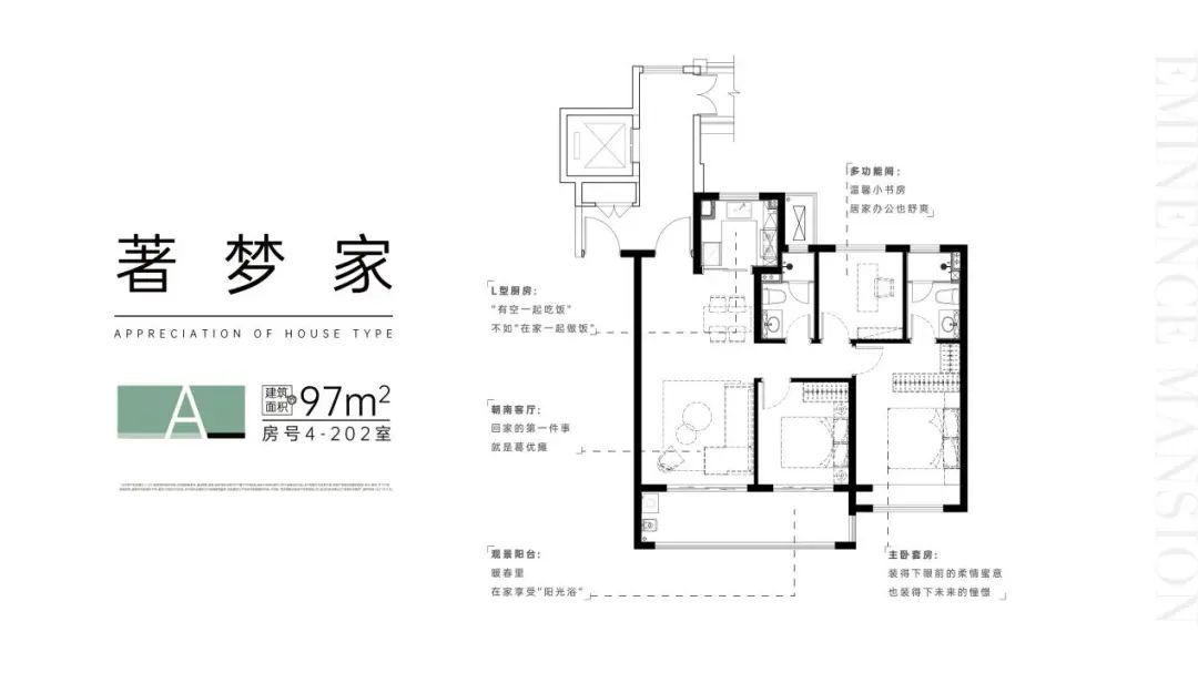
汇通路纯新盘新城振业铭著风华首次公布户型图,项目打造97-136㎡成长型户型,实现不同家庭人口模式下空间的持续发展。

新城振业铭著风华预计10月中旬公开售楼处,售楼处选址在奥克斯钟山府附近,最快本月底首开。项目首开户型建筑面积97 、115、125㎡,放风价3.4万/㎡(含2500-3000元/㎡的升级装修包)。
项目目前已公开展厅:1、家乐福精选超市(徐庄店);2、亚东新城购物广场苏果超市。
户型图:

建筑面积约97㎡三房两厅两卫,是铭著风华的主力户型。不仅三开间朝南,南北通透,更配了两个全明卫生间,小面积高配置,最大限度保障生活的舒适度。建筑面积约115㎡户型,做到了3+1房2厅2卫配置,比市面上常规3房多出一个书房;双卫设计,保证绝佳私密性;主次卧皆带南向大飘窗,南侧大宽厅以及270°采光大阳台。建筑面积约125㎡四房两厅两卫,稀缺的大横厅设计,大大提高空间感及舒适性;四开间朝南,南北通透;没有浪费面积,是一个三代同堂的百变户型。建筑面积约136㎡四房两厅两卫,堪称“王牌户型”。阔绰玄关,极致收纳;四开间朝南,南北三阳台设计;两梯两户,居住私密性强。
02
汇通路最初的规划叫做麒麟地铁小镇。
2020年,南京地铁集团将青龙地铁小镇地块移交南京市委市政府,7月,紫东核心区管委会揭牌,“青龙地铁小镇”正式成为“紫东核心区“。

汇通路与仙林相隔较近,基本可以与仙林共享生活配套,比如仙林金鹰、万达茂、仙林医院等。

基本的生活配套是能够满足的,但教育资源方面目前还是比较稀缺的。
不过,从控规来看,中南G83项目隔壁就有一所规划小学,除此以外,周边还有多幅商业、商办混合用地,未来家门口就有商场。

03
汇通路是2021两次集中土拍的“顶流”热门板块,吸引众多品牌房企争抢。目前板块内纯新盘有铭著风华、万科紫辰光年和君启,还有在第二批集中土拍中出让的黑牡丹G91地块。在售楼盘仅正荣润岚府一家。
铭著风华前身为汇通路G46地块,在南京第一批集中土拍中,新城夺得汇通路G46地块,成交总价19.8亿元,楼面地价22595元/㎡,未来毛坯限价28500元/㎡。
此外,汇通路在第一批集中土拍中还有G47地块,被万科竞得,成交总价14.1亿元,楼面地价22702元/㎡,未来毛坯限价28500元/㎡。项目拟建8栋15-18F高层以及商业和相关配套用房。G47地块案名已定为万科紫辰光年,近期即将亮相,最快10月首开,放风价35000元/㎡(含精装包),户型面积段115㎡-143㎡。

板块内纯新盘还有君启,项目计划于10月公开售楼处,最快10月底首开。项目由中南、银城、绿都、辰景合作开发,中南负责操盘,未来将采用银城物业。
君启或将一次性推出约500套房源,主力户型面积约99㎡、117㎡和130㎡,毛坯房限价为27500元/㎡,加精装包预计价格在35000元/㎡以内。
8月26日项目规划正式出炉,将打造8栋17F住宅、3栋20F住宅和1栋3F商业,从图中可以发现,项目西南侧还规划一处学校。

除新盘即将上市之外,板块内还有一幅第二批集中出让的住宅用地——黑牡丹汇通路G91地块。
9月26日,经过27轮竞价,汇通路G91地块达到最高限价,9月27日,常州黑牡丹通过摇号拿下该地块,成交总价21亿元,楼面地价20039元/㎡,未来毛坯限价28500元/㎡。
目前汇通路板块的新房供应量十分紧缺。板块内仅剩正荣润岚府一家楼盘有房源在售。项目目前在售1#、4#楼少量跃层房源,户型建筑面积约250㎡,全装修均价24000元/㎡。此外,项目仅剩7#一栋楼待售。
【购房资讯轻松享,快来关注乐居网】
文章来源:乐居买房