致逸设计 | 佛山卓越万科·朗润园(示范区改幼儿园)


致逸设计(GEEDESIGN)已在中国佛山建成了一座新幼儿园(示范区改)。该工作室设计了一个童话般的村庄,其零散的空间和原始材料渗透到城市与自然之间。该设计名为卓越万科朗润园,其设计基于对城市环保的理念,我们提出了“童话之乡”的设计理念,作为幼儿园空间设计的基础。 GEEDESIGN has completed a new kindergarten in Foshan, China. The studio has designed a fairy tale-like village with scattered spaces and original materials penetrating between city and nature.Named Everbright Kindergarten, the design is based on the idea of being environmentally friendly to the city, we put forward the design concept of "fairy tale village" as the basis for the space design of the kindergarten.




在佛山,您几乎无法摆脱的是其迷人的饮食文化。事实上,这里也有许多著名的历史人物,例如黄飞鸿,叶问,康有为和詹天佑。从表演者一次见证了时代的巨大变化,到冲浪者都曾在海浪中驰,这座城市无疑是古代与现代完美融合的地方。
What you can barely get away from in Foshan is its fascinating food culture. In fact, there are many famous historical figures here as well, such as Wong Fei-hung, Ip Man, Kang You-wei and Jeme Tien Yow. From the performer once witnessed the great changes of the time to the surfers who rides the waves, this city is undoubtedly a place where the ancient and the modern blend wonderfully.


北围工业区作为城市生活环境改善和整治的重点,依托来上镇的建设机遇,将多元化的产业,公共服务和智能生活融为一体。 卓越万科朗润园位于该地区南部的创富路与创兴七路的交汇处,周围环绕着水网,纵横交错的自然景观。在北部,这是一个正在建设的高质量住宅区。将来,计划引入该地区最优质的教育资源。
As the focal point of urban living environment improvement and renovation, the Beiwei Industrial Area, relying on the construction opportunity of Leshang Town, integrates diversified industries, public services and intelligent living. Located at the intersection of Chuangfu Road and Chuangxing 7th Road in the south of the area, the Everbright Kindergarten is surrounded by water network and criss-crossed by natural landscape. In the north, it is a high-quality residential area under construction. In the future, it is planned to introduce the best quality education resources in the region.



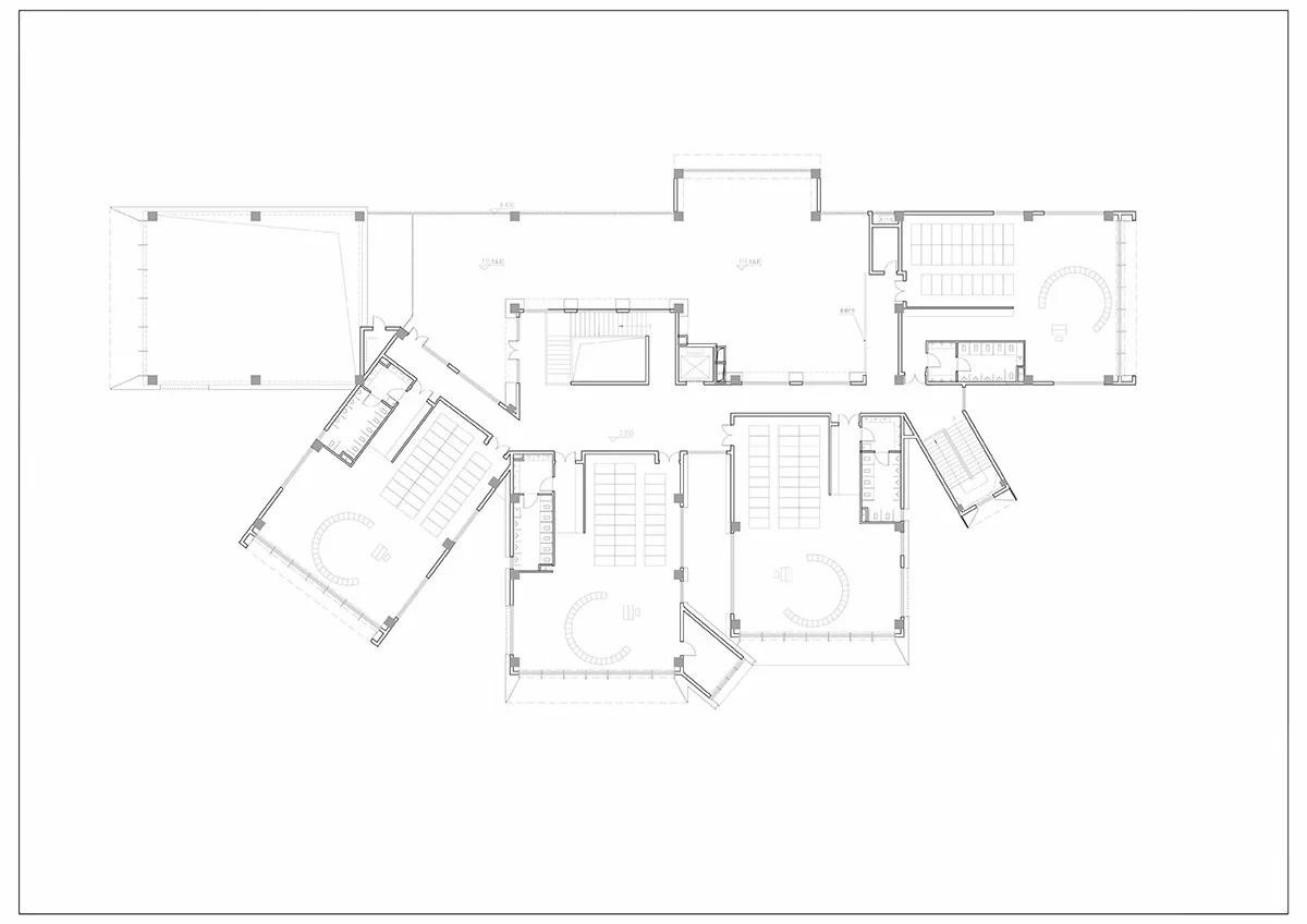
由于居住区的边界限制以及交叉路口区域的多层撤退边界的控制,因此建造建筑物极为困难。同时,它是一个支持幼儿园的社区,需要容纳12个班级,一个超大型音乐活动室和两个活动区。占地面积仅为5400平方米,狭窄的空间仍需要与城市的各个界面协调。
Due to the boundary restrictions of the residential areas and the control of the multi-layer retreat boundary in the intersection zone, it is extremely difficult to make the building. At the same time, it serves as a community supporting kindergarten that needs to accommodate 12 classes, a super-sized music-event room and two activity areas. The occupied area is only 5,400 square meters, and the cramped space still needs to coordinate with the various interfaces of the city.


如何在许多有限的条件下创造人性化,自然而童趣的教育空间,已成为建筑师面临的基本问题。建筑师希望这个地方可以成为新旧城市的交汇处,以找到独特的人文气息,以便在这里挣扎的人们可以度过愉快的亲子时间。
How to create a humanized, natural and childlike educational space under many limited conditions has become a fundamental problem faced by architects. The architects hope that this place can be the intersection of the new and the old city to find the unique human touch, so that the struggling people here can spend a pleasant parent-child time.

最初,我们从多种束缚中提取了游戏空间,并将教育理念与社区定位相结合。本着对城市环境友好的思想,提出了“童话村”的设计理念,作为幼儿园空间设计的基础。
At the beginning, we extracted the space to play from the multiple constraints, and combined the educational concept with the positioning of the community. Based on the idea of being environmentally friendly to the city, we put forward the design concept of "fairy tale village" as the basis for the space design of the kindergarten.


这个“小村庄”的功能布局非常精致,活动场所与建筑空间之间的拓扑关系巧妙地解决了有限的土地条件的困境。 这种情势有效地促进了每个单元之间的“相距遥远”,从街道的角度看,最大化了城市界面的丰富性,并形成了逐渐起伏的节奏感。
The functional layout of this "small village" is quite exquisite, and the topological relationship between the activity place and the architectural space subtly resolves the dilemma of the limited land conditions. This form effectively promotes the "here while faraway" between each unit, maximizes the richness of the urban interface from the perspective of the street, and forms a sense of rhythm with gradual ups and downs.

鉴于南部城市公园和水系景观资源的优势,设计在立面上呼应了城市与自然之间的特征,并在纯白色油漆的基础上与竹木材料相匹配。
Given the advantages of the landscape resources of the urban park and water system in the south, the design echoes the characteristics between the city and nature on the facade, and matches the bamboo and wood materials on the basis of the pure white paint.

这是采用自然方法,忍受原始环境并增强家庭意识和通透性的方式。在视觉吸引力方面,建筑空间激发了孩子们对自然景观的向往,他们仍然可以在城市中追求自然的野趣。
This is the way to adopt the natural method, endue the original environment, and strengthen the sense of family and permeability. In terms of visual attraction, the architectural space stimulates children's yearning for the natural landscape, and they can still pursue the natural wild interest in the city.

根据类的数量和空间容量的实际需要,将整体分为大致成比例的单位。通过主体和小体积之间的散布和错位,室外空间将转移到建筑物上,形成一个有趣且多变的景观平台和“灰色空间”。
According to the actual needs of the class quantity and space capacity, the whole will be divided into approximately proportional units. Through the interspersion and dislocation between the main block and the small volume, the outdoor space will be transferred to the building, forming an interesting and changeable landscape platform and ‘gray spaces’.


考虑到儿童活动的实用性和阳光的透过性,我们将每个房间的内部露台分散在斜坡屋顶上,以创建丰富多彩的光影体验。
Considering the practicability of children's activities and the permeability of sunlight, we scattered the inner patio of each room on the slope roof to create a colorful light and shadow experience.

从建筑物到内部,独立而连续的单元模块可以成为“家”,从而鼓励孩子们在充满活力和温暖的空间中自由探索,并在花园中建立归属感。
From the building to the interior, the independent and continuous unit modules can become a "home", which encourages children to explore freely in the lively and warm space and build a sense of belonging in the garden.



建筑材料的选择基于幼儿园本身设计的初衷。工作室希望该建筑物能够显现家庭成员的自然纹理,从而选择具有天然和原始属性的竹子和木材,并根据用户的可观感知体验将其与周围环境有机融合。
The selection of building materials is based on the original intention of the design of the kindergarten itself. The studio hopes that the building can present the natural texture of the family members, so as to select the bamboo and wood with natural and original properties, and organically integrate with the surrounding environment from the user's considerable and perceptible experience.
白色涂料的含义是纯正的,起源的,可以最大限度地将暖色系在视觉上形成一种包装感,同时结合跳跃节奏的单元,自发产生野味。
White coating implication is pure, origin, can maximize the warm color department on the vision of the formation of a sense of package, at the same time with the combination of jumping rhythm of the unit, the wild interest flavor arises spontaneously.



将材料转换为建筑实体的过程需要应用和实践。通过将真实的和虚拟的材料(例如竹子,白色涂料,铝板和玻璃)相结合,我们反复制作了样本并进行了实地比较。 The process of transforming materials into architectural entities requires application and practice. Through the combination of real and virtual materials such as bamboo, white coating, aluminum plate and glass, we repeatedly made samples and explored the field comparison.
前立面的铝板和幕墙之间的斜角连接采用仿铜轮廓来容纳边缘。在不影响整体气氛的前提下,节点具有丰富的现代技术纹理。
The bevel connection between the aluminum plate of the front facade and the curtain wall adopts the imitation copper profile to receive the edge. Under the premise of not affecting the overall atmosphere, the node is rich in the texture of modern technology.







佛山卓越万科朗润园
项目业主:卓越、万科
项目地点:佛山市顺德区
用地面积:5,400㎡
建筑面积:3,200㎡
建筑设计:致逸设计
设计团队:朱煜、梁胜、裴月璇、唐富生
甲方设计团队:卓越深圳公司设计部
施工图设计:广东粤建设计研究院有限公司
景观设计:SED新西林景观国际
室内设计:广州燕语堂装饰设计有限公司
幕墙设计:沈阳正祥装饰设计有限公司
泛光设计:深圳陆禾环境艺术设计有限公司
建筑摄影:行知影像、ACF域图视觉
内容转自:梅吟雪飞凤