电机隐藏于卷管内,通过电机转动带动传动轴转动,实现卷帘帘片的升降,上升时帘片卷绕在卷轴上,降落时帘片顺着导轨内侧滑下。通过遥控器的控制来实现窗帘的上升、停止、降落动作。另有带断电手动释放系统,在断电的情况下可通过手动摇杆使卷帘门升降。下面我们随小编一起来说说电动卷帘的相关知识。
“电动卷帘”是采用管状电机为动力的一种电动化卷帘机构。它的操作只需拨动电源开关,操作简便、工作安静平稳,是手动卷帘的升级换代产品。电机直接安装在铝合金卷管内,既减少了窗帘箱的体积和力的传动环节,又避免外界对电机的影响,增加了机构的可靠性。卷管为优质铝合金材料,强度高,且不易变形;表面进行阳极氧化处理,防老化、耐腐蚀。安装支架选用高强度合金钢,抗弯、抗剪强度大,保证机构安装使用的安全可靠性。

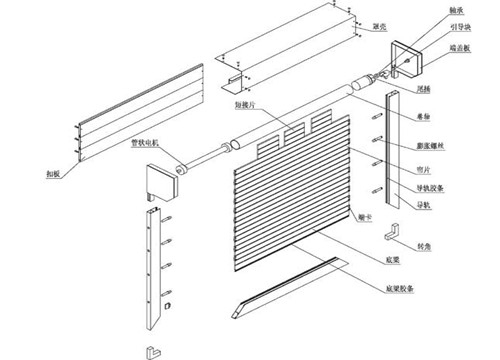
电动卷帘门的电动卷帘技术参数
一、材质:帘面采用无机耐火布、硅酸铝纤维毯、防辐射布和装饰布经高温线缝制而成,双面用镀锌钢制条夹制,确保帘布的抗风强度,底梁为钢质镀锌,厚度1.2㎜,无接缝; 卷轴:焊接钢管,规格165厚度2.0mm,管壁外需除锈防腐; 导轨:钢质镀锌板厚度1.2mm,采用分体复合制作。导轨的滑动面应光滑平直,直线度每米不得大于1.5mm,全长直线不得超过0.12%。导轨的顶部应成圆弧形,其长度应超过洞口至少75mm具有防烟性能的导轨必须有防烟装置,使用材料应为不燃材料隔烟装置与卷帘表面应均匀紧密贴合,贴合面不应小于80%;特级防火卷帘门座板与地面间隙不宜大于20mm。
二、控制系统功能: 卷帘可独立控制并具有手动功能,与温度熔断装置联动,与防火中控室直接进行联动;实现烟感报警,卷帘自动降落至地面1.5-1.8m高度,延时180秒(可调)然后在降落关闭。当降落时遇到障碍物可停止降落并上升; 可实现烟感报警一次下滑,温感报警二次下滑,且温感报警消除后可停止二次下滑,可在一个系统内互相转换。符合标准6.4.6的要求; 垂直启闭速度:不小于2m/min。其自重降落速度不应大于9.5m/s,平均噪音85dB。
三、电气功能:主电源50HZ,380V,信号电源24V,功率 0.37-2.2KW(根据门洞大小确定电机功率);特级防火卷帘门应设有手动启闭装置,以备断电时使用; 应具有依靠卷帘自重降落的性能,并具有恒速性能,手动速放装置的操作力不得大于50N;防火卷帘门应使用防火电源,电源线应穿金属管暗敷,明敷时应采取防火保护措施;无火警时,卷帘具备上、停、下等手动和电动基本功能,上、下限位准确可靠。
主要种类
第一、依据电动卷帘门的门片材质可分为:欧式风格的卷帘门、无机布型、网状型、铝合金型卷帘门和水晶卷帘门。
第二、从电动卷帘门专用电机种类划分:卷帘门专用电机有:防火卷门机、澳式卷门机、外挂卷门机、管状卷门机、无机双帘卷门机、快速卷门机等。采用不同专用电机的电动卷帘门都各有各的特点,那要看客户的需求而定。
第三、电动卷帘门用途也分很多种:按照每个使用者的不同用途,有静音型、降噪型、有不锈钢卷帘门、还有防风、防火卷帘门和水晶卷帘门。

电动卷帘门的保养知识:
1.在电动卷帘门的使用过程中,要尽量保持控制器和电压的稳定,禁止安装在非常潮湿的环境,另外不要随意打开遥控器,如若发现门体上有电线缠绕、打结等应及时处理。关注通道的是否堵塞,阻碍门体降落,如若发生异响应立即停止电机运作。
2.要经常性的检查电动卷帘门上下行程的开关,对行程控制器加上润滑油,保持正常良好的运行,另外,操作人员手动控卷帘门,检查器运行情况,校对上下行程开关位置,使电动卷帘门开启或关闭时处于适当位置,且检查过程中严防电动卷帘门冲顶或冲底或者反转,如若出现紧急情况应立即停止转动,切断电源。
3.操作员最好是经常性的要检查好电动卷帘门的手动开关和手动升降装饰,以防止在紧急的情况下电动卷帘门会失灵,或者造成不必要的安全事故。
4.要保持轨道运行畅通,及时清理电动卷帘门的轨道,保持内部清洁,卷帘门电机和传动链条要经常加注润滑剂,检查控制箱内器件和开关控制盒,紧固接线端口,紧固螺丝等,清洁控制箱内、表面和按钮上的灰尘污物,防止按钮卡住而不能反弹。
电动卷帘门(http://www.szxdclc.com/)