原本不喜欢在家待着的人在遇到这样的美式风格后,竟然甘心每日宅家。实在是这套141平米的三居室房子太舒服了,楼盘名称是保利玫瑰湾。小编也是好奇,到底怎样的装修设计能“拴”住一个人,让他安心在家,赶快跟小编来看看到底是怎样的装修吧。
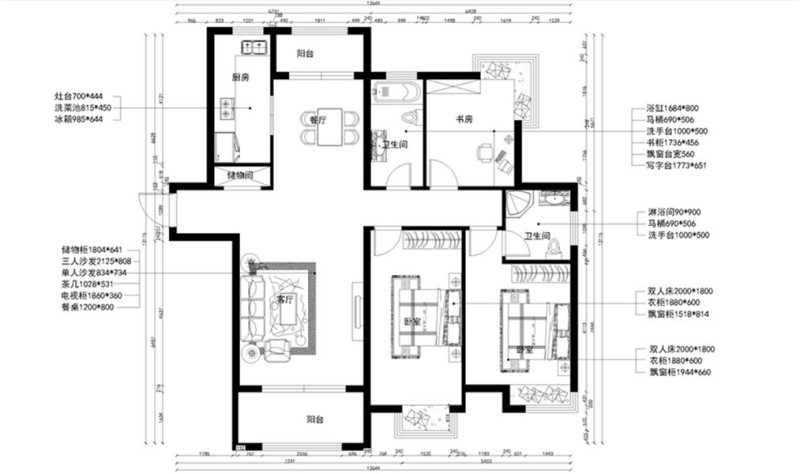
户型分析:本案为保利玫瑰湾C13户型2厅2卫141平米,该户型:1.户型方正,宽敞,面积大。2.房间的功能区域形状方正,无缺角。3.房间面宽偏大,进深偏小,房间宽阔度满足各个家具的整体摆放和居室设计。4.没有暗间,采光通风优良,房间换气顺畅。5.房间大小适中,既不浪费面积,又有足够空间,空间利用率高。6.动静线合理,在各个房间的活动不会互相干扰。7.明厅明室,所有的房间基本都采用了直接采光。8.整体房间布局合理,功能划分明确,干湿区划分合理。厨房适用,卫生间功能分区恰当。9.客厅开间大,活动空间足,阳台增加客厅空间。10.卧室连接有卫生间,方便起居生活,尤其方便老人生活。11.餐厨联接,使用便捷。12.独立厨房距卧室较远,减少油烟味。13.入户门到客厅位置可做玄关,放置储物用品。14.厨房可做L型或一字型,节省空间,操控方便。15.卧室私密性好。设计说明:本案为保利玫瑰湾C13户型2厅2卫141平米,该风格为美式风格:美式风格来源于欧洲文化,其风格并不过分强调繁复的雕刻,以舒适和多功能为主,但同时也不失怀旧,浪漫的感觉。美式风格设计理念表现为高雅的古典风格,材质多用深色木制品和石材,擅用各种花饰,丰富的木线变化,富丽的窗帘帷幔是西式传统室内装饰的固定模式,空间环境多显现幽雅浪漫的气氛。客厅:以大理石作为地面材料,沙发区铺大幅花纹地毯,使空间区域划分更加清晰,复古造型的组合沙发以及茶几都具有上乘质感,让美式古典风进一步彰显。餐厅:粗犷,大气的美式餐桌椅,搭配复古造型的角几,让人迷失在时光里。卧室:美式风格设计理念的卧室,不会采用炫目的灯光,通常以使用舒适为主,灯光柔和,显得温馨舒适,装饰为成套的布艺。美式家具常见的是接近新古典风格的家具,强调优雅的雕刻和舒适的设计,在保留了色泽与质感的同时,又关注现代生活空间。所以装修居室不仅仅是一种简单的装修行为,更是一种艺术表现。
客厅是一个家的中心,也是一家人活动最密集的场所,因此客厅装修不光要光鲜亮丽,还要满足日常的生活需求。

复古造型的组合沙发以及茶几都具有上乘质感,让美式古典风进一步彰显。
小卧室怎么装修?小卧室装修的时候要关注对空间进行合理的划分,尽量选择多功能或着造型小巧的家具进行摆放,减少家具的占用面积。给卧室床留下比较充足的空间。

本案为保利玫瑰湾C13户型2厅2卫141平米,该风格为美式风格

美式家具常见的是接近新古典风格的家具,强调优雅的雕刻和舒适的设计,在保留了色泽与质感的同时,又关注现代生活空间。所以装修居室不仅仅是一种简单的装修行为,更是一种艺术表现。

美式风格来源于欧洲文化,其风格并不过分强调繁复的雕刻,以舒适和多功能为主,但同时也不失怀旧,浪漫的感觉。美式风格设计理念表现为高雅的古典风格,材质多用深色木制品和石材,擅用各种花饰,丰富的木线

美式风格设计理念的卧室,不会采用炫目的灯光,通常以使用舒适为主,灯光柔和,显得温馨舒适,装饰为成套的布艺。
餐厅的装修就是要营造良好的用餐范围,所以风格一定要掌握好,无论是田园风还是现代简约范,对餐桌椅的风格和材质一定要把握好。色彩上刻意选择能够提高用餐情绪和氛围的暖色系。灯光的设计也要淡雅柔和,这样一来才会有浪漫的情调哦。

粗犷,大气的美式餐桌椅,搭配复古造型的角几,让人迷失在时光里。
以下就是本套保利玫瑰湾小区141平米三居室房子的户型图。

本案为保利玫瑰湾C13户型2厅2卫141平米,该户型:1.户型方正,宽敞,面积大。2.房间的功能区域形状方正,无缺角。3.房间面宽偏大,进深偏小,房间宽阔度满足各个家具的整体摆放和居室设计
有这样一个美式风格的家,如果每天宅起来也是一种非常棒的享受,这个141平米的三居室应该能让很多人为之心动了。算算半包下来一共花费了7万,也在能接受的范围内,想想每天下班回到这样的家里,应该会获得非同一般的归属感吧。