就别墅而言,复式客厅是整个居所的点睛之笔,当有人来家里作客,第一眼看见的就是复式挑空客厅,它给人极强的视觉冲击力,使得房间更大气辽阔宽广。
复式别墅图纸1

品牌:建房说
别墅图纸编号:JF201352、主体毛坯参考造价:49-59万、占地面积:206平方米、建筑面积:488平方米 、开间14.6米,进深14.1米、异形柱框架结构,建筑高度13.6米



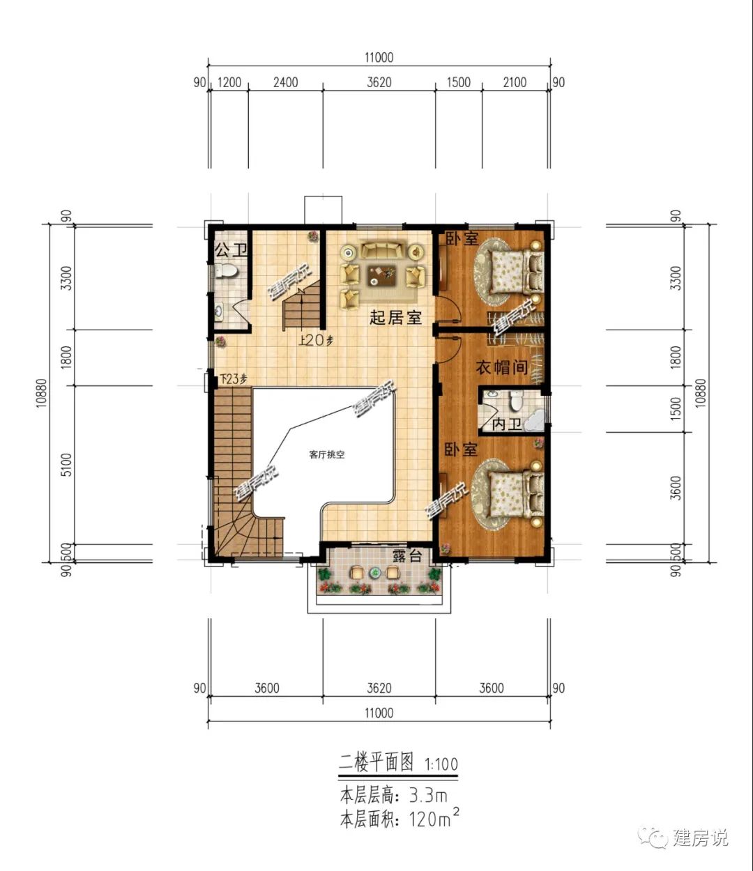
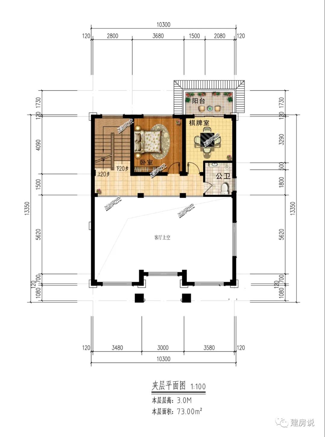
复式别墅图纸2

品牌:建房说
别墅图纸编号:JF201355、主体毛坯参考造价:35-45万、占地面积:125平方米、建筑面积:344平方米 、 开间11米,进深10.88米 、异形柱框架结构,建筑高12.6米



复式别墅图纸3

品牌:建房说
别墅图纸编号:JF201361、主体毛坯参考造价:36 -46万 、占地面积:185平方米、建筑面积:359 平方米 、开间15.76米,进深12.36米、砖混结构,建筑高9.3米



复式别墅图纸4

品牌:建房说
别墅图纸编号:JF201365、主体毛坯参考造价: 35-45万 、占地面积: 135.64平方米 、建筑面积: 344.29平方米 、开间15.8米,进深10.8米、砖混底框结构,建筑高12.115米



复式别墅图纸5

品牌:建房说
别墅图纸编号:JF201382、主体毛坯参考造价: 44-54万 、占地面积:136平方米、建筑面积: 437平方米 、开间10.3米,进深15.2米、异形柱框架结构;建筑高14.7米



