
你知道一套施工图里绝对不能少的是什么吗?电路图、水路图还是拆改图?当然这些都是施工图中必备的,但是在小编看来,还有一个小细节是绝对不可以少的,那就是图例图标。

图例图标作为图纸中的一种标识,具有很大的辅助作用,便于图纸的查找,也能让普通人轻松看懂图纸。今天我们就来一起讲讲图例图标。


文末附 室内专属图例图标CAD图库
01 -什么是图例图标?
图例是集中于图纸一角或一侧的各种符号和颜色所代表内容与指标的说明,有助于更好地认识图纸。根据不同的行业规范,图例有所不同。

▲ 平面灯具、开关图例

▲ 平面插座图例
图标是具有指代意义的具有标识性质的图形,它不仅是一种图形,更是一种标识,具有高度浓缩并快捷传达信息、便于记忆的特性。

总的来说,图例图标就是图纸的一种辅助标注,让图纸便于识别,是各类图纸中必不可少的一环。
02 -图例真的很重要

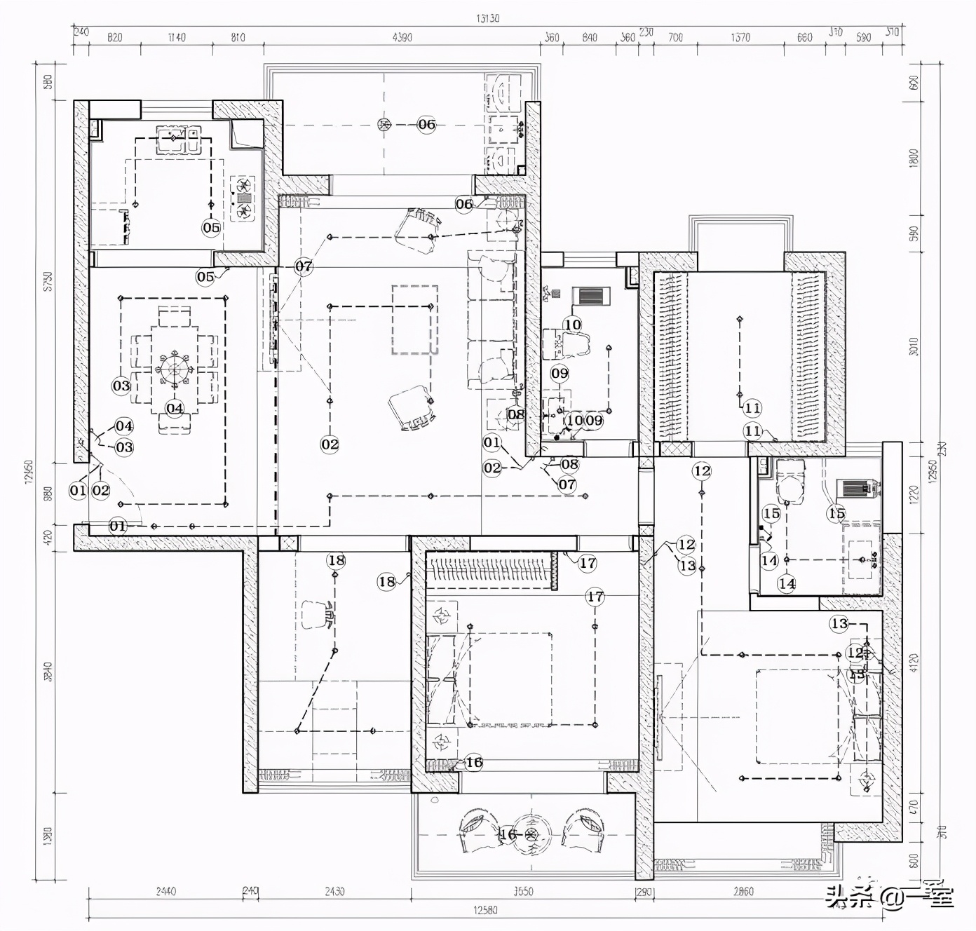
在施工图中,图例是必须存在的。比如电路图上的开关插座,天花图上的灯具以及出风口等等。不同的事物有着不同的图例,让人能对图纸一目了然。同时,图例的使用也能使施工图图面统一而整洁。

▲ 插座布置图

▲ 开关电路图
施工图中如果没有图例,那整套图纸将会非常混乱,表达不清晰,后期按照图纸进行施工时也极容易出现问题。
03 -符号也不能少
在图纸中除了图例外,符号也是很重要的一部分,尤其是在施工图中,各类符号标注是一种指引,让图纸更清晰易懂且规范。




详细表示某些重要局部时,需要另行绘制其详图来进行表达,对需用详图表达的部分标注索引符号,并在所绘详图处标注详图符号。


当然,图例图标或符号都没有绝对硬性的标准要求,但一套施工图纸中的图例符号是需要统一的,要表达清晰且简单易懂。这里小编为你准备了室内图例图标CAD图库,赶紧抱走用起来吧。
室内专属图例图标CAD图库
部分内容展示

▲开关图例


▲ 灯具类图例

▲平面插座图例

▲ 插座面板

▲ 插座开关高度

▲ 常用图例

▲电气图例

▲ 机电标识图例

▲ 地面起铺点

▲ 符号规范(动态)

▲ 天花平面图例

▲ 物料填充类图例

▲ 区域中英互译

▲ 卫生间器具中英互译
▲以上仅为部分展示
【免费领取】关注+转发 然后私信“素材”
版权声明:我们尊重原创。文字美图素材,版权属于原作者。部分文章推送时因种种原因未能与原作者联系上,若涉及版权问题,敬请原作者联系我们,立即处理。