中国能源建设集团湖南省电力设计院有限公司的研究人员李志海,在 2015 年第 11 期《电气技术》杂志上撰文,研究基于智能标准化知识管理与高性能三维调控、仿真计算软件应用技术的全新变电站设计校验平台。工程应用实例表明该平台设计合理、功能完备、可靠性高、实用性强,能够有效提高电力系统变电站工程设计效率、大幅缩短工程设计周期、降低工程设计差错率,已成为电力设计行业发展的新趋势与新方向。
随着应用数学仿真技术、模拟三维建模软件以及高效能计算机硬件平台的不断创新与发展,如今数字化技术已经融入到社会生产、建设的各个领域,发挥出无以伦比的强大功效。处于世界电力行业领先地位的中国国家电网公司及南方电网公司目前正以数字化技术为基础,开展电网数字化研究,在全球率先进行数字化变电站及智能电网试点建设,目前已进入推广阶段 [1]。随着电力系统数字化程度的进一步提高,数字化三维变电站设计技术必将成为中国各电网电力工程设计技术发展的下一目标。
1 数字化三维变电站设计技术
数字化三维变电站标准设计是以专家设计库为基础,以电网建设标准化设备为依托,结合实际工程需求特点,利用高性能计算机三维建模软件进行变电站整体规划设计,然后通过高端数学仿真计算软件结合专家库函数、电力系统规程规范要求校验核准设计结果,并提出修改、优化意见与方案,最终以三维直观模型、传统二维设计图纸、智能电网标准采购与管理接口文件等多种方式输出设计成果,满足各种工程成品输出要求,响应后续电网建设与运行管理的需求。
其中数字化三维变电站标准设计关键技术主要包括智能标准化知识管理技术、高性能三维调控软件及仿真计算软件应用技术等。

1.1 智能标准化知识管理技术
日积月累的技术成果与纷繁的实际工程设计经验是电力设计工作的指导核心和精华所在,而标准化设计是提高电力工程设计效率的唯一手段。数字化三维变电站设计的智能标准化知识管理技术就是融合工程专家积累的设计经验与已完成的经典模板工程设计项目成果,揉入标准化工程设计模块,建立能够适应各种实际工程需求的变电站专家标准设计平台。
在专家标准设计平台的基础上,工程师可以调用典型工程模板或典型工程分体模块,根据当前所设计工程的实际情况,进行选用或组合,然后通过校验计算、选型计算等仿真校核后确定具体设备参数及布置方式,最终借助更新软件自动将工程中所有设备替换成本工程选定的设备,并同时自动更新包括平面图、断面图、安装图、材料表在内的所有相关图纸。
在这个流程中,每一个操作环节都将通过中心服务器进行数据的校核与审批管理,最终通过设定数据库维护权限、工程访问权限、数据更改权限可以构成一套完整的设计流程管理体系。
变电站设计平台的设计与实施过程,同时也是标准化成果的归纳和整理过程,最终将形成:标准化典型设计工程库、标准化通用设备库、标准化制图规范、标准化计算公式与模型、标准化变电编码。以各标准化的数据库与模型为依据,将实现以下几个方面的标准化控制。
1)制图标准化
能够制定符合国标及电力行业制图标准的企业制图标准,保证图纸图层、颜色、图例符号、文字、标注等制图元素的标准化,为多专业协同设计奠定基础。
2)设计标准化
这是标准化工作中最具价值的工作,主要通过国网典设及专家设计成品积累的经典设计案例提取典型设计。主要包括变电站电气主接线、布置模型、安装图及典型问题处理方案。
3)计算标准化
选用专业化的计算软件作为有效版本,结合设计与设备的标准化,保证计算方法标准化、计算模型标准化、计算参数标准化、设备参数标准化、结果与表达标准化。
4)设备标准化
根据电力行业集中招标采购供应商的产品目录,定制符合电力系统设计特色和标准化设计要求的设备数据库和设备图库。
5)编码标准化
编码是智能化设计和数字化移交的基础,编码包括工程设备码和物料码两类。工程设备码用于智能化设计和运行、资产等系统的数字化移交,物料码用于采购系统与概预算软件的数字化移交。
6)信息标准化
要实现智能化设计与数字化移交,还需要制定标准化的设计信息。主要包括:设备描述信息标准化,提供系统规格文件SSD(SystemSpecification Document)及全站配置标准文件等多种运行管理规范格式文件[2],用于智能电网的智能化管理与数字化移交;模块接口信息标准化,用于智能化设计;专业接口信息标准化,用于协同设计;设计与管理系统接口信息标准化,用于设计管理信息化系统。
1.2 高性能三维调控软件与仿真计算软件应用技术
数字化三维变电站设计平台主要由工程管理模块、数字化主接线设计软件、三维变电装置布置软件、精细化设计模块、辅助设计模块和成果展示平台六部分组成,该六部分的后台主体支撑软件为高性能的三维调控软件与仿真计算软件。
1)高性能三维调控软件的应用技术
三维设计是原始设计数据最直观的集成表现平台,是各种信息最好的流通载体[3]。设计数据在软件平台中得到控制存储后,再结合三维模型就可以做到精细化设计,通过三维空间的安全距离检查和材料统计达到二维设计不能达到的设计精度和正确性;集方案、初设、施工图与一体的三维变电站模型,提供了真实的展示效果与全景参数校验。作为专业设计平台,变电站三维软件调控平台采用的三维技术不是单纯地建立三维模型,而是构建了一个包含所有专业信息的对象。这样的三维对象是可以计算的模型、可以统计的模型、可以提取施工图的模型,是专业的设计结果在三维形态下的真实调控体现。
(1)全站三维模型技术
变电装置布置是变电站设计的主体,工作量大、复杂程度高。在设计中通常按照电源种类分为交流(开关)变电站与直流换流站两类;按照布置方式分为户外布置与户内布置两类。三维变电装置布置模型技术基本功能为:变电装置布置模型的检索与调用、模型的间隔与设备编辑、设备参数替换(与主接线联动)、工程编码、材料统计、抽取二维施工图(平面图、断面图、安装图)等功能。
通过数字化三维变电站软件设计技术,完全颠覆传统的二维设计,给予设计人员一种全新的三维设计理念。软件提供的设备参数化功能,从电气设备到土建构架,完全实现参数化建模,设计人员只需输入参数即可生成三维模型,可以快捷、灵活的生成各种尺寸、型号的三维设备,模拟设备与实际设备外形基本一致。
(2)三维模型精细化设计校验技术
①三维安全净距校验:传统的设计方法,针对设备的安全距离检查没有三维概念,完全凭借设计人员经验以及简单二维下的计算来进行安全距离检查工作,无法提供最安全、最优化的解决方案,而建立在全站三维模型基础上的“三维安全净距校验”,能够很好的弥补这一缺陷。软件程序按照不同的电压等级,自动寻找三维设备之间的最短带电距离,全面校核设备间各项限定数据,保证设计的安全性,提供最优的解决方案。
②自动生成平断面图:以往的设计方法需要绘制多张断面图,而电气设计软件平台只需要设计人员绘制一张三维图形,其它所有间隔断面图能够根据设计需求进行任意剖切,并自动生成,有效保证平面图和断面图的一致性。同时所生成的间隔断面图能够自动对设备支架、设备间距、设备与土建距离进行标注,大大缩短设计时间。
③三维导线连接:设计时直接放置三维设备模型,通过“三维导线连接功能”,程序自动捕捉设备接线端子直接进行接线,并可以同时锁定弧垂及线夹角度,使得绘图图面更加规范,与现场实际情况更加一致。
④精确的材料统计:不论设备、导线还是金具,材料统计功能都能准确无误的进行统计。在统计后,自动对断面图中的设备进行设备编号标注,和材料表中的编号完全一一对应。
(3)多专业协同设计
土建接口软件根据总平面设计图能够自动生成三维的提资图,土建专业根据电气提资进行配套设计,完成架构计算、力学分析等工作后,最终生成架构透视图,返资给电气专业,实现三维模型下的土建和电气的协同设计。
2)高性能仿真计算软件应用技术
强大的计算机仿真计算为变电站的全数字化设计提供了可靠快速的选型、校验手段。通过仿真软件载入专家库函数与标准规程规范束缚数据,进行相关电气计算与校核,解决以往人工计算量大、出错率高的问题,提高工程质量与工程效率[4]。
(1)数字化主接线设计及校验仿真计算
主接线是变电站的逻辑模型,变电站的接线关系和设备参数都在这个阶段建立完成,所以主接线是变电站的灵魂。同时主接线是变电装置布置、材料统计和数字化移交的信息基础,也是变电站仿真计算的重点。该部分计算主要包括以下几个方面:短路电流计算、设备选型校验、母线选型计算、过载条件仿真、故障情况仿真校验等[5]。
(2)三维配电装置电气校验仿真计算
采用三维设计技术的最根本的目的就是通过针对三维模型的精细化设计手段应用高性能仿真计算软件,提高设计水平、确保设计质量。该部分主要包括以下内容:三维安全距离检查、导线力学计算、管母计算、三维防雷设计软件、接地设计、三维电缆敷设软件、站用电设计、二次设计、照明设计等部分[6,7]。
2 工程实例应用
配合蒙东220kV变电站设计工作,在实际的工程设计中应用数字化三维变电站设计平台进行模型搭建与协同设计。
1 )全站三维设计模型
利用设计软件提供的设备参数化功能,从电气设备到土建构架,完全实现参数化建模,输入参数即可生成三维模型,可以快捷、灵活的生成各种类型、尺寸的三维设备,模拟设备与设备实际外形基本一致。设计时直接放置三维设备模型,通过“三维导线连接功能”,将自动捕捉设备接线端子直接进行接线,并可以同时锁定弧垂及线夹角度,可使得绘图图面更加规范。设备、导线、构架全部按照真实尺寸绘制,并且每个设备附带详细的参数信息,可随时查看。最终形成全站三维化,使业主和施工人员对全站一目了然。
图2 变电站三维设计图

2 )三维安全距离校验
平台中列出了规范中所有相关的校核内容,可以选择需要校验的项目,也可以选择需要校验的范围。经过校核,提出不符合安全距离要求的地方,并用颜色和框线标识出来。
图3 三维安全距离校验

3 )三维防雷保护设计
建立在全站三维模型基础上的防雷设计模块,程序自动识别构架上避雷针、场地避雷针等,实现三维防雷设计,也可以在变电站三维模型上直接进行三维防雷设计。多根避雷针之间自动生成联合保护范围。还可以直观的看到三维效果,设计人员对保护情况一目了然,极大的提高了设计质量与设计效率。
图4 三维防雷保护设计

4 )精细化三维智能设计
常规设计方法,需要绘制多张断面图,而变电站数字化三维设计软件只需要设计人员绘制一张三维图形,其它所有间隔断面图完全由设计人员任意进行剖切,保证了平面图和断面图的一致性。所生成的间隔断面图自动对设备支架、设备间距、设备与土建距离进行标注,标注准确无误,大量缩短设计人员的设计时间,提高工作效率。
软件可以从三维模型中直接提取所需的各种成果。能够自动生成满足施工图要求的图纸及材料表,可以自动统计三维材料总表,还可以根据三维模型转二维总平面图。土建专业可直接从三维总平面模型中提取各类土建资料,还可以生成架构透视图,图中根开、尺寸、标高等全部自动标注。
图5 三维智能生成间隔断面图

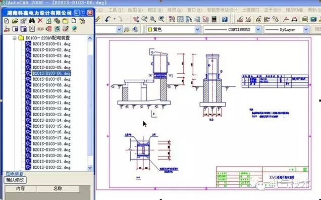
5 )生成设备安装图
断面图完成后,可以生成安装图,点击安装图生成,软件自动把安装图生成到相应卷册里面,图纸编号也是自动完成的,每个设备安装图都自动调出来。
图6 三维设计模型智能生成设备图

3 结论与建议
变电站数字化三维设计平台应用实例表明:通过该平台设计的项目,设计效率及准确率大幅提高、设计成果安全可靠,成品文件直观方便,输出接口文件标准规范,可直接用于智能电网的建设与管理 [8],真正实现了环境友好型、资源节约型的高端数字化电网设计目标。
今后将结合全国智能电力市场的发展建设,进行全面的推广与应用,对电力工程设计持之以恒的加以优化与改进,力争在应用新方法、新技术的同时推进电力设计行业水平的进步。
电气技术(微信号:dianqijishu)
关注电气工程技术、聚焦学科前沿发展