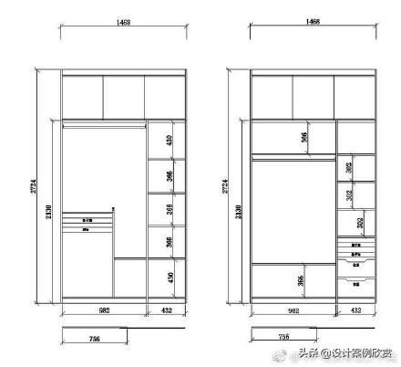
1-3m宽衣柜设计尺寸+科学布局

1-3m宽衣柜设计尺寸+科学布局

1-3m宽衣柜设计尺寸+科学布局

1-3m宽衣柜设计尺寸+科学布局

1-3m宽衣柜设计尺寸+科学布局

1-3m宽衣柜设计尺寸+科学布局

1-3m宽衣柜设计尺寸+科学布局

1-3m宽衣柜设计尺寸+科学布局

1-3m宽衣柜设计尺寸+科学布局