
现在的开发商建房子,也会不按套路出牌,为了最大化利用面积,催生了一种错层建筑。

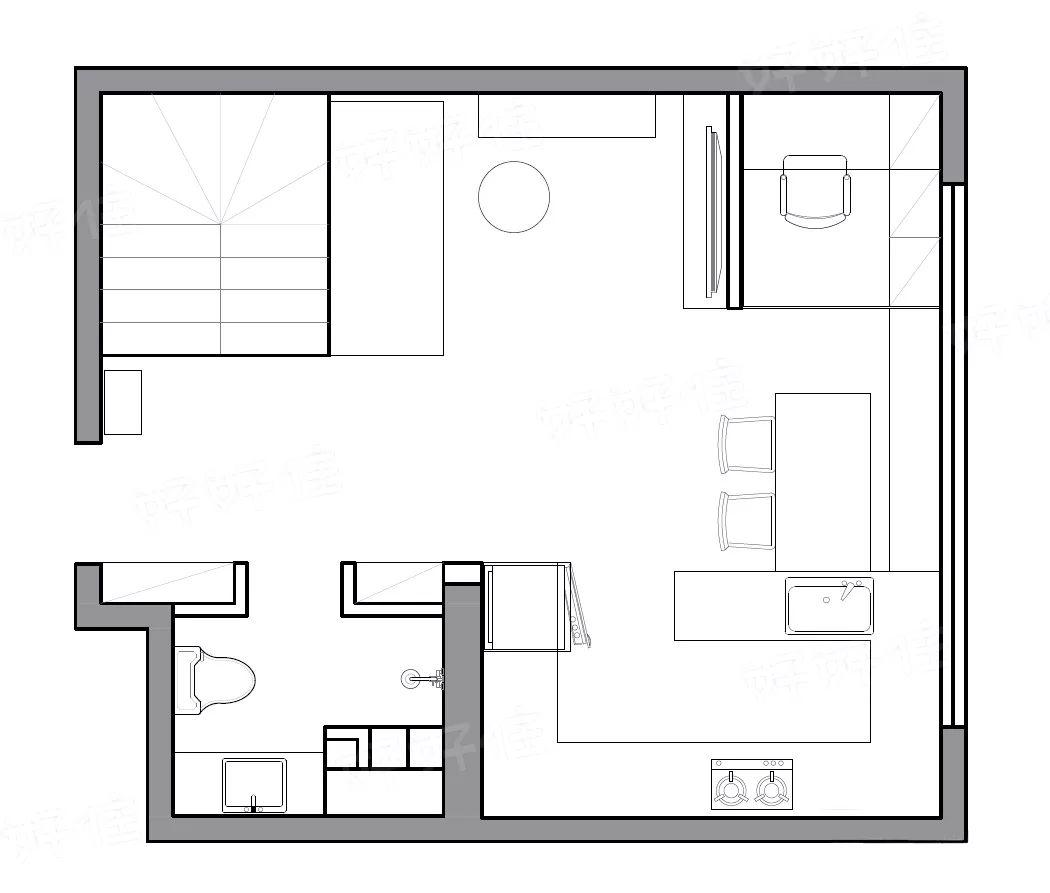
参考图
不同于Loft户型,这类错层房,往往一层和二层不在同一立面空间里,只有楼梯是重叠的。
买这样的房子,很可能你家的二楼在对门邻居的楼上,邻居家的二楼在你家楼上。

今天的屋主苏可就买了一套这样的小错层,他太会改了,68㎡的小房子居然拓展出了双卧、双卫、双工作间、双衣帽间,实现了大房子的居住体验。
使用面积:68㎡ 户型:错层小两居装修花费:35w房屋所在地:北京朝阳
认识TA

在家屋主:苏可
独立设计师,从业8年,金牛座(会花钱也会省钱),他喜欢旅游,想多看看这个世界,也喜欢尝试新鲜的工艺和各种不同的设计。

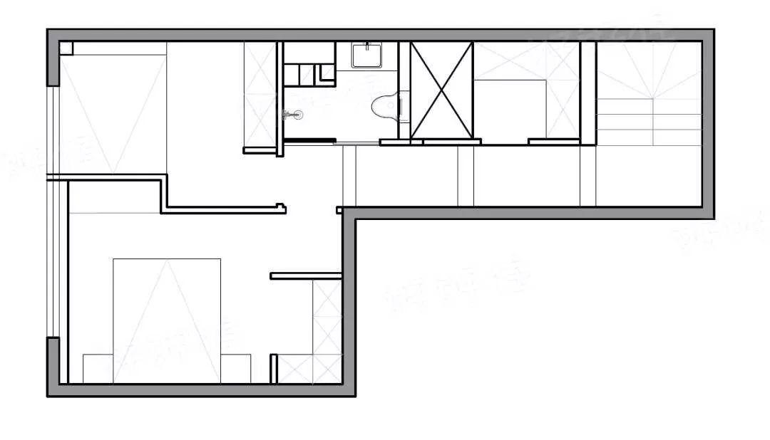
原始结构图
我家是一个错层空间,只有68㎡。房子入手前,被上一个租户拿去做仓库和员工宿舍,细心呵护、打扫卫生什么的根本不存在,非常脏乱差。
出于职业敏感,我觉得它还是蛮有潜力,虽然单层都不够40㎡,难得的是户型方正开敞,针对功能至上的年轻人来说,其实是不错的选择。
改造重点

一层空间
一楼原本进门一眼就能望到头,甚至客卫连门都没有,改造后除了一个LDK大空间(客餐厨一体),还多了一间小书房。

小书房是新建一面半墙隔出来的,既可以用作客厅电视墙,也能实现功能分区。

二层空间
二楼是休息区,利用长度优势,分隔出两个卧室、两个衣帽间和主卫。

利用客卫外墙,嵌入收纳柜

置物架:摩丘力MOJOREY挂钩:Muuto The Dots入户门:日上
玄关是回家时调整心情的过渡区,我在门的右侧布置了穿衣镜、换鞋凳以及纽扣挂钩,方便换鞋脱帽。
为了隐藏电表箱,墙上还钉了一个半圆型的置物架,放上画,刚好作为入户的第一道风景。

楼梯底下的空间也没有浪费,改成了隐情势的储物间,略带神秘感。

考虑空间面积和收纳能力,原卫生间门口加了两面轻薄的石膏凹墙,嵌入两个通顶的白色鞋柜,保持与墙面齐平。
柜门没有把手,内装按压的弹开器,既可以最大化降低了存在感,又不会影响到卫生间玻璃移门的开合。

墙体左侧加了一截开放的装饰柜,收纳了一些花瓶烛台,因为靠近厨房吧台,还作为酒柜使用。

LDK大空间加半墙,多一个书房

轨道灯:仙人掌照明
我喜欢宽敞明亮的客厅,比较治愈,因此一楼尽可能开放,形成简洁的LDK格局。
一层的挑高大约2.5米,干净的白色空间,选择了轨道灯照明,不会显得压抑,搭配柚木的鱼骨拼地板,能传递出温润的质感。

沙发:集木事物所电视柜:极架坐垫:莫语
沙发区根据楼梯的长度,挑选了一个三人沙发。电视柜根据半墙长度,用了比较简单的架子,电视特意挂得稍高一些,有益于颈椎。

茶几:Guzzini壁柜:宜家
圆形的双层亚克力茶几自带滚轮,方便挪动,以换来更大的活动空间,朋友来玩的时候可以落地而坐。
墙上增加了一组壁柜,用来展示我的收藏品,又能分担客厅的储物功能。

客厅尽头的书房,是用红砖新砌的半墙分隔出来的,其余部分全部用玻璃门窗覆盖。
空间上,能做到功能分区,采光上,原来的暗厅也能享受到阳光普照,实用度方面,半墙能用作客厅的电视墙。

书房顶部利用空调的落差做了吊顶,同时也弱化吊顶的突兀感,出风口刚好对着客厅和厨房,可以向两端送风,夏天会比较清爽舒服。

因为平时我和家人都是居家办公,所以家里需要两个工作区,这间不够4㎡ 的小书房,是*日我**常办公的场所。
参考自己亲测的工作台尺寸和办公需求定制了书桌和书柜,以及安装了搁板架,只为让家这个空间更加简洁。

岛台餐桌“T字”布局,动线合理

油烟机:老板Robam冰箱:西门子
麻雀虽小,五脏俱全,厨房采用了U字型布局,通过合理的嵌入与隐藏,厨房能装下冰箱、烤箱、微波炉、橱柜、岛台等等。
整体橱柜同样采用了白色柜体,没有做顶封板和踢脚板。灶台后面没有贴瓷砖,而是贴了一块白色的钢化玻璃,防止溅出的油烟,也保证了视觉上整洁统一。

餐椅:宜家
餐厨区相连,岛台与餐桌呈T字型无缝衔接,岛台上装了水槽,用餐之后可以直接把餐具收拾进水池,动线流畅。
开放式布局让各个空间贯通,我在岛台上备餐时,依然可以与在餐厅、客厅休息的家人随时互动。

餐厅被设置在窗户旁边,我选择了两把餐椅+靠窗卡座,卡座下方带有储物功能,十分实用。窗前还养了一些绿植,想给整体氛围增加一点清新与生气。
我想要更通透的采光,于是用铝制百叶窗代替了传统窗帘,每天下午太阳落山时,阳光会透过百叶,投下斑驳的光影。

用防水漆代替瓷砖

墙面色号:mylands HOXTON GREY® No. 72
一楼的客卫,最特别之处在于顶部用石膏板代替了铝扣板,墙面用mylands的防水漆代替了瓷砖防水。
肉粉色搭配白色,暖气片也被刷上了颜色,中和浴室的冰冷感。

粉色打底,放置背发光的镜子照起来肤色更亮。地面铺的是水磨石瓷砖,洗手池直接买的成品台面挂墙安装,用玻璃胶收边。

浴室五金全部都用了黄铜材质,搭配粉色墙面更显精致。拐角左边的淋浴区深度足够,基本能做到干湿分离,墙面凿了三个大小一致的壁龛,用来解决浴室的收纳问题。

柚木色+黑色的步梯设计

我家的二楼是一个错层空间,只有楼梯是在一个立面重叠,楼梯选择接近柚木色泽的黄棕色踏步、黑色铁艺线条扶手。
踏步是现场做完,再让厂家过来在踏步上打洞,再一根根插进去扶手之后焊接的,非常稳固。

加灯带,美化房梁

置物架:Muuto
走廊的宽度1m多,刚好可以铺鱼骨拼和楼下保持一致,走廊尽头简单放了一个黑色的铁艺架子,和楼梯扶手的黑色线条很搭。
架子上摆设了一些简单的装饰品,不至于让全白的空间过于单调。

因为走廊有三根梁,所以吊顶做了洗墙灯带,美化三根梁的存在,同时弥补了采光。

与洗衣房结合,多功能使用

洗衣机、烘干机:倍科
走廊右侧有两个房间,第一个房间是衣帽间+洗衣房的多功能区,采用开放式悬挂和层架组合储物,充分利用了垂直高度。左边的洗衣区,下洗上烘,十分便利。

防水漆+水磨石半墙拼接

墙面色号:mylands Myrtle Green No.168
第二个房间是二楼的主卫,装修思维和一楼大同小异,区别是采用了水磨石与绿色防水漆做半墙拼接,水磨石有渗透性,遇水颜色会变深,特意做了油性防护来打理。

壁挂马桶:卡丽
壁挂马桶,旁边留了一个小凹龛,方便如厕时放纸巾和手机。

墙面还留了足够的凹龛,分别服务干区和湿区的收纳。淋浴间做了挡水条,防止水漫出来。

花洒和龙头选择了黑色,都是入墙式,花洒直接装在吊顶上。

“偷”面积,增加衣帽间和工作区

主卧面积较大,保留了2.3m的层高,只在床头顶面局部包管道和出风口,以及靠窗的位置做窗帘盒,还特意留出边框安装了一圈灯带,提升晚上的间接照明。
我们想要一个平静氛围的睡眠空间,墙色和窗帘采用了大比例的深蓝色与浅灰色墙搭配,保持整体的配色和谐。

床头细节,家具以简洁实用、线条明朗为主,比如宜家的铁艺床,非常百搭,旁边还放了一个梯子造型的架子,顺手搭放睡衣,非常方便。

床的侧面,偷出卧室一部分面积,改成步入式衣帽间,这样一来,下床就能穿戴换衣。

床尾区也挤了一处办公区。一个带纵向立柜的黑色工作桌,配上一把小巧舒适的工作椅,简易的soho区就完成了。

做壁龛包管子,做床头收纳

隔壁的次卧面积较小,榻榻米做床,床头有一根管子无法拆除,索性包起来做了一个造型代替床头,还能用作壁龛进行收纳。
墙面用浅肉粉与柳黄撞色,顶面留白,唯一的家具是床边的靠墙衣架,黑色细管金属的造型,很好搭配,还可以挂杂志和耳机。

右边推拉玻璃门后面是衣柜,用磨砂玻璃遮掩稍显凌乱的衣物,有一种整齐划一的舒适感。
工期虽然被我压缩在2个月,但好在最后效果是我理想中家的样子,既能满足我和家人所有的生活需求,又不压缩一个家该有的舒适,希望你们能喜欢。
微信ID:TrendsZaijia006
微信ID:TrendsZaijia010
后台回复“转载”,获取转载须知
编辑/Cimon 图片/屋主苏可提供
图片版权归屋主所有,严禁盗图,违者必究!