停车场的施工安装是弱电行业中做的最频繁的项目之一,其中地感线圈敷设是最容易出现问题的,也是不少朋友经常会讨论到的,给我们留言建议发布一期关于地感线圈敷设相关的内容,虽然现在已经雷达地感了,但地感线圈的使用仍然有很多,本期我们一起来看一下停车场系统中如何埋设地感线圈。

一、工作原理
地感线圈车辆检测器,是一种基于电磁感应原理的车辆检测器。它通常在同一车道的道路路基下埋设环形线圈,通以一定工作电流,作为传感器。当车辆通过该线圈或者停在该线圈上时,车辆本身上的金属将会改变线圈内的磁通,引起线圈回路电感量的变化,检测器通过检测该电感量的变化来判断通行车辆态势。
电感变化量的检测方法一般有两种:
一种是利用相位锁存器和相位比较器,对相位的变化进行检测;
另一种是利用环形线圈构成的耦合电路对其振荡频率进行检测。

二、系统组成
地感车辆检测器包括地感线圈和检测器,线圈作为数据采集,检测器用于实现数据判断,并输出相应逻辑信号。检测器一般由机架、中央处理器、检测卡和接线端子组成。
中央处理器是对采集信号进行计算的模块,一般是一个带嵌入式操作系统的单板机,具备较强的数字计算、存储能力和通讯接口。通过对端口的扫描,捕捉电平的变化时间,以此计算出相应的交通数据。
检测车辆通过或静止在感应线圈的检测域时,通过感应线圈的电感量会降低,检测卡的功能就是检测这一变化并精确地输出相应的电平。在对高速通过车辆进行检测时,可能会存在车长、车速检测不准确的情况,需要正确调节检测器的灵敏度。目前的车辆检测器一般都具有多级灵敏度可调的功能。
三、停车场系统地感线圈的作用
在停车场系统中,要确定地感线圈的作用首先我们得知道地感线圈安装的位置。
地感线圈一般装在以下四个位置,如下图:
入口票箱处(入口控制机)、入出口道闸处各一个和出口票箱处(出口控制机)。
弱电君已经用红圈标出了四个位置。

一进一出岗亭布局图
行业内使用的地感线圈,一般都是铜芯线,上过初中的人都应该知道,当有金属物体穿过线圈时,会产生电流,停车场系统中就是利用了这个原理。这也就是为什么我们称之为线圈,线圈的制作方法比较简单,就是将一定长度的铜线环绕几圈。

四、地感线圈埋设方法
停车场系统里”地感线圈”就是一个振荡电路。它是这样构成的,在地面上先造出一个圆形的沟槽,直径大概1米,或是面积相当的矩形沟槽,再在这个沟槽中埋入两到三匝导线,这就构成了一个埋于地表的电感线圈,这个线圈是一个振荡电路的一部分,由它和电容组成振荡电路,其原则是振荡稳定可靠,这个振荡信号通过变换送到单片机组成的频率测量电路,单片机就可以测量这个振荡器的频率了。

一、线圈材料
在设计过程中,通常仅仅考虑地感线圈的周长和匝数,对其使用什么材质常常被设计人员忽视。当工程进行到实施阶段,必须要考虑导线的机械强度和高低温抗老化问题,在某些环境恶劣的地方还必须考虑耐酸碱腐蚀问题。然而常规的导线在实际使用中,导线一旦老化或抗拉伸强度不够导致导线破损,则检测器将不能正常工作。因此建议采用1.0mm以上铁氟龙高温多股软导线。

二、线圈形状
1、矩形安装
通常探测线圈应该是长方形。两条长边与金属物运动方向垂直,彼此间距推荐为1米。长边的长度取决于道路的宽度,通常两端比道路间距窄0.3米至1米。

2、倾斜45°安装
在某些情况下需要检测自行车或摩托车时,可以考虑线圈与行车方向倾斜45°安装。

3、”8″字形安装
在某些情况下,路面较宽(超过六米)而车辆的底盘又太高时,可以采用此种安装情势以分散检测点,提高灵敏度。这种安装情势也可用于滑动门的检测,但线圈必须靠近滑动门。

三、线圈的匝数
为了使检测器工作在最佳状下,线圈的电感量应保持在100uH-300uH之间。在线圈电感不变的情况下,线圈的匝数与周长有着重要关系。周长越小,匝数就越多。一般可参照:

由于道路下可能埋设有各种电缆管线、钢筋、下水道盖等金属物质,这些都会对线圈的实际电感值产生很大影响,所以上表数据仅供用户参考。在实际施工时用户应使用电感测试仪实际测试地感线圈的电感值来确定施工的实际匝数,只要保证线圈的最终电感值在合理的工作范围之内(如在100uH-300uH之间)。
四、输出引线
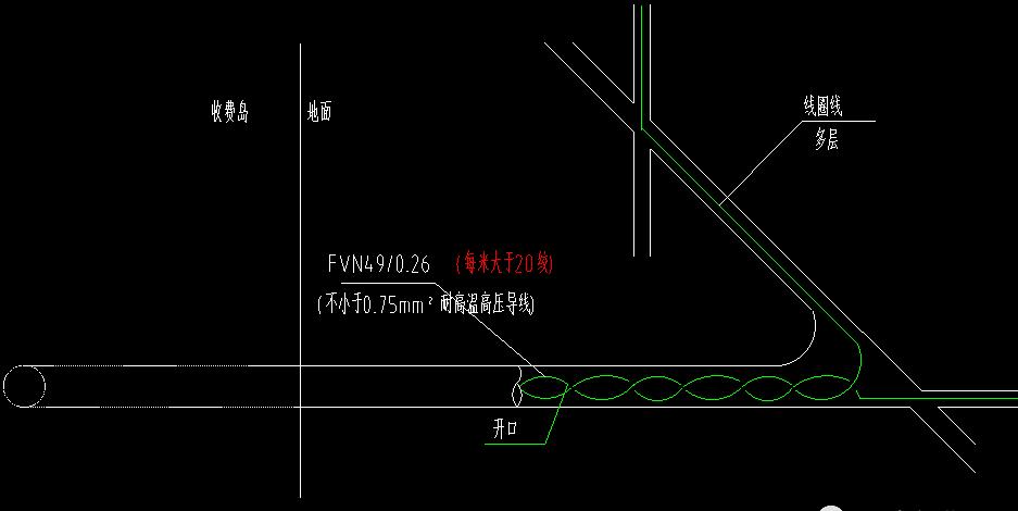
在绕制线圈时,要留出足够长度的导线以便连接到环路感应器,又能保证中间没有接头。绕好线圈电缆以后,必须将引出电缆做成紧密双绞的情势,要求最少1米绞合20次。否则,未双绞的输出引线将会引入干拢,使线圈电感值变得不稳定。输出引线长度一般不应超过5米。由于探测线圈的灵敏度随引线长度的增加而降低,所以引线电缆的长度要尽可能短。



五、埋设方法
线圈埋设首先要用切路机在路面上切出槽来。在四个角上进行45度倒角,防止尖角破坏线圈电缆。切槽宽度一般为4mm~8mm,深度30mm~50mm。同时还要为线圈引线切一条通到路边的槽。

但要关注:切槽内必须清洁无水或其它液体渗入。绕线圈时必须将线圈拉直,但不要绷得太紧并紧贴槽底,将线圈绕好后,将双绞好的输出引线通过引出线槽引出。



关注:
车辆检测器线圈的灵敏度随引线的长度增加而降低,所以引线电缆的长度要尽可能短(一般不应超过5米),未双绞的输出引线必会引起串扰,使车辆检测器线圈电感值变的不稳定致使车辆检测器出错。
在线圈的绕制过程中,应使用电感测试仪实际测试地感线圈的电感值,并确保线圈的电感值在在100uH-300uH之间。否则,应对线圈的匝数进行调整,在线圈埋好以后,为了加强保护,可在线圈上绕一圈尼龙绳。最后用沥青或软性树脂将切槽封上。
五、施工关注事项总结
1、线圈材料:标准1.0平方耐高温镀锡线。
2、周围1米范围内不能有大量的金属,如井盖、雨水沟盖板等。
3、周围1米范围内不能有超过220V的供电线路。
4、作多个线圈时,线圈与线圈之间的距离要大于2米,否则会互相干扰。
5、标准3米宽马路,车辆检测器线圈的尺寸为2米长1米宽,角上做45°、10厘米长的倒角。
6、线圈与马路边的距离在50厘米左右,线圈为垂直叠加绕4~8圈,总长度在40~80米(含引出线)。
7、埋设线槽切割参数:宽度4mm、深度50-80mm,深度和宽度要均匀一致,应尽量避免忽深忽浅、忽宽忽窄的情况。
8、线圈应与道闸或控制机处于同一平衡位置。
9、线圈引出的两根线应该双绞,密度为每米绞合不少于20次,未双绞的输出引线将会引起干扰。输出引线长度推荐不超过5米。由于探测线圈的灵敏度随引线长度的增加而降低,所以引线电缆的长度要尽可能短。
10、埋设好后,应用水泥、沥青、环氧树脂等材料将槽口密封固化。针对水泥路面上述三种材料均可使用,针对沥青石子路面可使用沥青或环氧树脂,使用沥青灌封需关注线圈。
11、切割完毕的槽内不能有杂物,尤其不能有硬物,要先清理干净。
12、车辆检测器线圈的引线槽要切割至安全岛的范围内,避免引线裸露在路面。
13、绕线圈时必须将线圈拉直,但不要绷得太紧并紧贴槽底,不要产生交错层。将线圈绕好后,将双绞好的输出引线通过引出线槽引出。