利用辅助中间继电器点动连动电动机启动停止控制程序,关注转发!
双速异步电动机的电气原理图及实物接线图的详细解说
1) 双速异步电动机的电气原理 对电气原理图的详解:

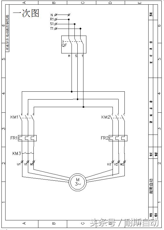
一次图

端子接线图

二次图
N零线,R1、S1、T1为三相进线电源,QF为空气开关,FR1为低速运行热继电器,FR2为高速运行热继电器,KM1为低速运行接触器,KM2为高速运行接触器,KM3为封星接触器,辅助触点的型号是F4-22,3M~为三相异步电动机。备注:电气原理图接触器线圈电压为AC220V。
2) 双速异步电动机的实物连线图:

实物接线图
下面对三速异步电动机正反转的实物连线图进行详解:下面对线的颜色进行讲解:黄色(粗)代表三相电R,绿色(粗)代表三相电S,红色(粗)代表三相电T,黑色(粗)代表零线。
下面讲解控制回路:
首先关注的是:双速电动机定子绕组从一种接法改变为另一种接法时,必须把电源相序反接,以保证电动机的旋转方向不变。
其中SB1、KM1控制电动机△接法下低速运转;SB2、KM2、KM3控制电动机Y接法下高速运转。
线路工作原理如下:先合上电源空开QF。

电机低速运行,运行指示灯LD1就会点亮;电机高速运行,运行指示灯LD2就会点亮。不管是高速还是低速运行,只要电机超负荷运行致使回路失电,报警灯LD3都会点亮,通知用户电机已经停止运行。,备注:此实物连接图中选用的空开为DZ47-63型,接触器为CJX2-2510,线圈电压为AC220V,选接触器时线圈电压千万不要选错,切记切记,报警灯线圈电压为AC220V.希望本文能帮助朋友们,
敬请大家交流学习,在以后的文章中将继续更多的实用电路讲解,希望朋友们能够互相学习。