装修,是一件长期、琐碎、又辛苦的事。
为了全家大小住的安心,许多小伙伴从买房后就亲力亲为,从查资料、做功课、找设计师规划房间户型、水电木工队施工监工(硬装)、家具家饰采购(软装)…等等,一路跟下来,家装小白都能变成资深大V。
家装的预算投入范围太广了。经设计家编辑团队开会后,并咨询过家装设计师后,分析家装主要分三大预算项目:
一、室内平面布局图
住家的户型布局规划图(简称户型图),是空间设计最基本也是最重要沟通图面,不管是找设计师或装修师傅都一定要有平面布局图,施工后才能对照,并知道住家的需求有没有被规划。
二、硬装
硬装和软装,二者的基础区别,分为可移动的、与不可移动的项目,这就是软装与硬装的概念。硬装项目,如:天花顶、墙面、地面的处理。
三、软装
软装牵涉住家的生活美学与业主的品味,与装饰项目多有关系,如:家具、灯具、餐具、挂画、花艺等生活装饰品。
但今天本文将主要着重在” 室内平面布局图”说明,另二项将于日后再进行分析。
.
室内平面布局图
CP值高的平面图,是打开生活的正确姿势
一位设计师朋友认为,硬装软装要购买的商品或品牌,其实都会依业主需求而推荐,而不会盲从推荐,如一个进口花洒可能会比一组定制家具来的贵。
所以他认为:"室内平面布局图"反而是家装优先重要的一笔投资。
因为平面布局图的方案的价格,是经过和设计师讨论过后的一笔住家规划费用,影响却是好几年或是一辈子。有好的住家空间规划,生活起来就会更舒适,若是户型布局规划错了,后期的软装怎么买,都无法填补心里那个疙瘩,留下装修的遗憾。
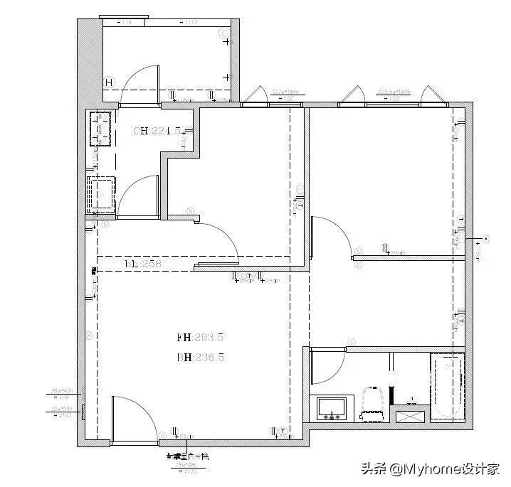
↓ 原始平面丈量尺寸图 ↓

▲可标示出住家原始平面布局,门与窗户的位置、开启的方向,梁柱的位置、原始卫浴设备,作为布局变更以及建筑结构的分析,同时也可算出平米总面积。
装修小白 ‧ 行前提示
1. 询问家人对家的期待
除非你是一个人住,否则都应该把家人的需求考虑进去,除了考虑各别需求外,空间配置时还是有几个点要关注:家人若有长辈同住,父母房要离卫浴近;每个房间包含卫浴最好都有窗户;餐厅与厨房不要离太远;保留后阳台做为洗衣间及放置热水器;尽量不要有走道才能省空间。
2. 住家空间使用的重点排序
针对你和家人所期待的空间,再依其重要做渐进式的划分。假设需求依序为:客厅→餐厅→厨房→主卧室→客浴→儿童房→主卫浴→书房→玄关→茶室→更衣间→储藏室→衣帽间。
就可以很清楚地了解,当平米数不够时,你该怎么样取舍,或是考虑一室多功能的使用法。
下面我们将以49平米小户型为例,分别提出二款应用家装案例,说明平面配置图针对不同生活方式的巨大影响。
.
平面布局图 应用案例一
49 平米小户型的 8 种平面布局图设计
户型图一样,能变出几种居住样貌?
就算是小户型,也能变出不同样貌吗?
卡纳设计团队为我们思考了不同的生活模式,
演绎了49平米小户型的8种「住家」设计平面图!
A.开放式客厅与主卧
全开放式的设计,以一面两用的柜体隔断主卧及客厅,环状动线不阻碍行走,并将浴室、厨房等区统一集中,浴缸则外放在卧房,变成进门后可欣赏的端景。

B:以拉帘为隔断,增设飘窗卧榻区
以拉帘做为隔断,拉上可保有隐私,拉开则使空间完全通透、变大,并运用不同材质在客厅周围设计,可休憩的飘窗卧榻,浴缸则安置在床的旁边,达到舒眠、放松泡澡的悠闲。

C.独立主卧、内外有别的空间感
将卫浴空间的材质拉出延伸至外面,界定了更衣室、泡澡区与卧房区域的不同;餐桌也延伸至户外区,打碎了疆界地域性,让室内外融为一体,无形中加大了空间感。

D.放大客厅为家居主角
将客厅、阅读区、卧房等机能集中在中央位置,不但使用起来方便,更让空间有了焦点,小户型看起来也变大了。

E.以主卧与浴室为主角
以透明的浴室区隔客厅与卧房,除了达到界定区域性的功能,也增加了居家生活的情趣;餐厨区以简单的咖啡桌取代中岛,减少大量体积的橱柜,空间以简约轻盈为主。

F.客厅地板架高,增加生活乐趣
利用架高手法将空间包围,充满趣味性的设计让空间在不同材质交错下,有了明确的分界,也提供了被包覆的安全感;厨卫区则使用了同款大理石材质,让日常使用区与睡眠休憩区有所区分。

G.二居室的谨慎规划
二居室规划的小户型,也能变出不同的长相。将客厅位置弹性挪动,就会影响整体空间的行走动线,就端看每个人的喜好和需求,决定最适合的居家户型平面配置图。

H.一字廊道连接二居室
将主卧室、次卧分开,中间以客厅为隔,适当地堡有家人之间的隐私。客厅与厨房为林,拉大客厅的动线。

.
平面布局图 应用案例二
姐弟都住49平米,不同小户型家居
一对姊弟,感情好到连买新房子都要当对门邻居,而且两家的新家装修,都委托了同一位设计师进行规划。
空间信息
规划:大琚空间设计许有森设计师
地点:台北
房屋:一手房
平米:49 平方米
成员:姊弟家都是夫妻、小孩一家三口
姐姐家:客厅、厨房、浴室、主卧室、小孩房、茶室
弟弟家:客厅、厨房、浴室、主卧室、小孩房、卧榻区
姊弟买下的都是49 ㎡的 二居室,户型布局一样,只是左右相反对称,而且正好是同层楼的邻居。
但姊姊爱泡茶、弟弟偏爱视听娱乐,许设计师针对姊弟不同的喜好及生活需求,将两间原本像双胞胎的新成屋,在没有更动原有布局的前提下,各自改造成「日式的禅风流 vs. 现代的开放式」空间,又利用穿透、双面使用等手法,让49 ㎡ 空间看起来变大了!
▼Before平面圖:上图为姊姊的家、下图为弟弟的家


▼After平面圖:上图为姊姊的家、下图为弟弟的家


客厅
姊弟连挑家具的眼光也相似,各自挑选类似的 3 人座布沙发、桌几,设计师一方面利用轨道,在沙发背墙上建立移动画廊,统一两家的墙面装饰。
另一方面,利用地板的差异,让即使平方米、户型一样的客厅,也能显现出迥然不同的味道。
姊姊的禅风客厅以棕色、黑色为主,营造沉稳氛围。

弟弟的客厅铺上木地板,但选用白色桌几与带紫的沙发,传达优雅,而投影幕布更把这变成私人电影院。


茶室 v.s. 卧榻
主卧室与浴室中间原本有个类似小餐厅的过渡空间,但距离厨房稍嫌太远,于是做成多功能空间使用。
姊姊爱泡茶,因此将该空间改成悠闲的茶室,同时做上下柜式收纳利用。

弟弟的孩子还小,需要较大的活动空间,于是做成卧榻区,反而成为家人最佳的聊天室。
这样的设计,都成为家人最爱的家居小角落,无论是小盆友游戏,或是午茶时光,都是最理想的生活场所。

主卧室
主卧室的配置一模一样,顶天立地的衣柜紧挨着双人床,避免空间压力过大,双双舍弃床架及床头柜。
木地板的颜色决定卧室的气氛,走清新路线的是姊姊家,强调淡雅风格的是弟弟家。
关注到了吗?连台灯都是同款不同色。


儿童房
两家的儿童房都是青春洋溢,以卷帘挡住过多的日光。但姊姊家的天花板采取堆砌式设计,营造空间层次。弟弟家的则搭配马卡龙色茶几,色彩清新有趣。


看完平面布局图的说明与应用后,想知道更多装修流程,可见前文详细说明噢!
-------------------------------------------------------
微信搜寻﹝Myhome设计家﹞可以看更多相关讯息
#小户型# #家居# #室内设计# #改造# #装修#