现在家庭装修越来越看中质量很服务,好的装修设计方案和装修风格决定了一个家是否实用、美观、大方、环保!这套田园+地中海风格包含施工图和效果图,真实存在的!业主小区在盛世名都,段位非常的好。这套算是中等装修了哦,下面我们一起来欣赏吧!
一套完整的设计保护施工图跟效果图完美结合!

还有图纸封面和预算,在这里不方便放出来,请理解哦!


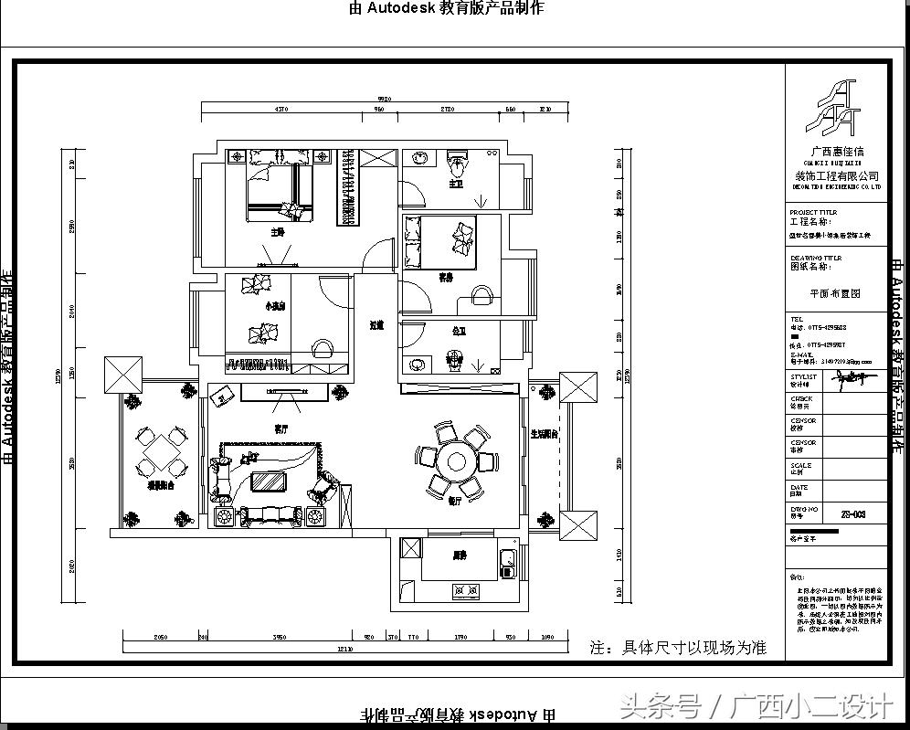
家居原始结构图!去现场实地量房,回来才可以做平面设计。

由于不需要改墙,所以直接家具平面布置图,这个不布置是和业主风水有关系的。

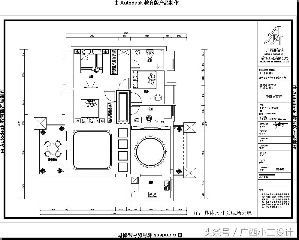
方案一吊顶平面布置图。我们做了两个方案,让业主多种选择!

方案二吊顶平面布置图,在我们这个小城市一般卧室不做吊顶,不过的看情况了。

电视背景墙两款立面图,因为做了两个方案!

酒柜立面图,在这里我们就不一一标注尺寸跟材料了。

柜子立面图跟走道门!最终业主选择了这个门,很是满意!

卧室柜子立面图


柜子立面图

卧室平面图

沙发背景墙立面图,两款!

所作图用的材质,CAD方案设计图都在这了。做设计我们是认真的,做家装装修我们也是如此!

第一种效果图方案客厅

第一种效果图方案餐厅

第一种效果图方案客餐厅

电视背景墙正面

第二套方案关注吊顶是没有灯带的哦,电视背景墙也是不一样的呢!

第二套方案餐厅

第二套方案客餐厅

正面客厅电视背景墙

小女孩比较小,所以选择比较少女心的颜色

小孩房

主卧效果图1

主卧效果图2

主卧效果图3
希望大家能喜欢这种田园+地中海风格效果图,我们就是这样做家装装修的哦,效果图加施工图呢!这才叫做专业做家装!这才叫做真正的家庭装修,有标准施工图和效果图,装修完效果就是好!