
The square represents the city therefore the community. It's the place where a community meets.

传统单一的办公格间,冷峻不苟的空间氛围,固化限定行为衍生出来的陌生冷漠,这是我们最初针对“办公室”的刻板印象。
The traditional single office space, the cold and meticulous atmosphere, solidify the indifference derived from the limited behavior, which is our stereotype of "office".
时代浪潮下,信息资源的建设与共享已经成为时代发展的需要和必然,跨界合作与交流的思维衍生了“SQUARE”文化模式下的共享概念。
Underthe tide of the times, the construction and sharing of information resources has become the need and necessity of the development of time. Cross-border cooperation developped the "square" cultural mode.

坐落于上海浦东高桥区的森兰·美奂办公项目因应时代需求,UMA伍玛设计以“联合办公”为基础模式,依托 “SQUARE”的开放模式与社区共享理念,突破传统界限深层互动,消解了物质拘谨的功能边界,围绕整个项目的定位绿色、共享与健康智慧的办公理念开展了深层的设计探索。
Senlan office project, located in Gaoqiao District, Pudong, Shanghai, meets the need of the times. UMA design takes "joint office" as the basic mode, relies on the mode of "square" concept of community sharing, breaks through the traditionalboundaries to deep interaction, green, sharing and healthy wisdom Layer design exploration.

楼层立面图、交通流线图
由于不同楼层所承担的不同的功能,本案主要分析4F、5F的办公空间,空间功能多变和重合,以满足和适应各种群体多元化的功能需求。
This case mainly analyzes the office space of 4F and 5F which are changeable to meet the diversified needs of various groups.

接待区缀以格栅原木为背景墙,开放的空间氛围以及舒适的光线将访客迎入绿色健康办公的视觉空间,激发使用者对空间探索的欲望。
The reception area is decorated with grilled log as the background wall. The open space atmosphere and comfortable light lead visitors into the green and healthy office, and stimulate users' desire for space exploration.

办公区剖面图
当“共享“成了空间的核心,多维度的交互感知重塑着情景中的人际关系与社交互动。
When "sharing" becomes the core of space, multi-dimensional interaction perception reshapes the interpersonal relationship and social interaction.
相对独立而又彼此联系的空间之间,如同一个流动的公共广场,自在穿行其中,不仅拥有交流沟通的功能,亦能提供心灵静憩的安宁。
The relatively independent and interconnected spaces are like flowing public square, which can be travelled freely, also providing peace of mind.

书吧区域与咖啡吧的结合体现“SQUARE”社群文化的开放性与体验性,不仅是一处自由交流的共享空间,亦是紧张压力的缓解之地。
The combination of book bar area and coffee bar reflects the openness of "square" community culture, which is a place to relieve tension and pressure.
自然习性的木质书架与绿植的细节设计平添了归属感,在这里,交流、信任、与共享并存。
The natural wood bookshelf and the detailed design of green plants add a sense of belonging. Here, communication, trust and sharing coexist.

天花保留了原建筑既有的痕迹和肌理,与飘浮在空中的菱形体块嵌入融合;共享和交流通过家具变化演变不同的场域功能,多层次多功能的智慧办公系统,满足人文关怀之外的功能考量。
Ceiling exists traces and texture of the original building, and is integrated with the floating diamond body; sharing and communication evolve different field functions through furniture changes, multi-level intelligent office system, to meet the functional considerations beyond humanistic care.

亮点分析——夹层空间
办公楼层之前加设的夹层创造了一个层次交叠的空间序列,空间独立而连贯又互不干扰,使空间张力得到重构。进一步加强了整个楼层的连接和可视性。

睡眠舱区域营造空间的半通透感。半包式“舱体”概念既可保证个人独享思考的时间,也可以成为静思休憩的空间区域,动静分隔的布置,成为了平衡多元化功能需求与沟通交流场景的亮点。

以整面绿墙为线索,将色彩立体化处理散发着简约大气的轻松氛围,赋予空间灵动自由的呼吸感。办公室及会议区域与过道之间由完全透明的玻璃隔板隔离,使每个空间独立的同时又不完全与外隔绝。

围绕“SQUARE”文化开放共享的社区观念展开,办公与社交自然真实转化,脱离传统办公空间的单调枯燥,开放式的功能分区诱导人们在不同的空间路径内交流与互动。

5F、6F剖面
楼梯作为连接两层空间的纽带,贯穿空间区域引导视觉动线,引导来访者视觉点的游转,增加了空间的流动感与联结性。

6F亮点分析——模块解析
以绿色明快的墙面分割设计媒介,垂直的绿色生态隔断凭栏处俯视空间的构成穿插。延伸了空间层次通透感,让空间的存在穿透和时间的界线。

轻便的体块式座位赋予空间更多的组合可能性,凝练极简的线条抹去城市快节奏的焦躁感和挤压感。通过色彩的点缀为创造更好的办公环境带来更多的期待。

空间中的一抹黄色点缀,融合简洁的线条符合现代年轻群体的办公审美。空间与家具之间的相互搭配,满足空间多元化的功能需求。就像蒙德里安色彩构成的几何体块感,模糊了空间界面,促进情感交流、思想碰撞。促进职业社交的多元新型办公文化。

公区剖立面图

功能爆炸图
项目名称:招商森兰美奂·创库联合办公
项目地点:中国 上海
业主单位:招商蛇口
甲方管理团队:樊淼、张文杰、卜顺
硬装设计 :UMA伍玛设计
设计总监:熊团辉
创意设计:James、Tina
硬装团队:沈卓斌、杨上锋、朱芳、辛中华
软装团队:陈丹丹、冷彦芝、汪思浓
设计面积:2900 M²
室内摄影丨黄善忠
完成时间丨2019/12

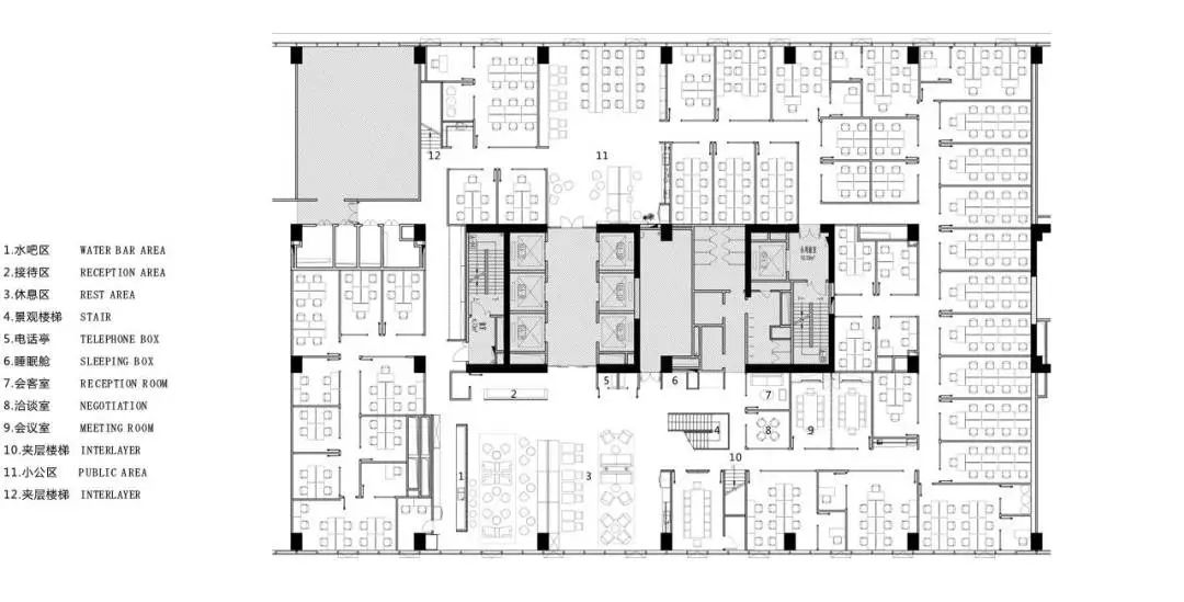
5F公区平面图

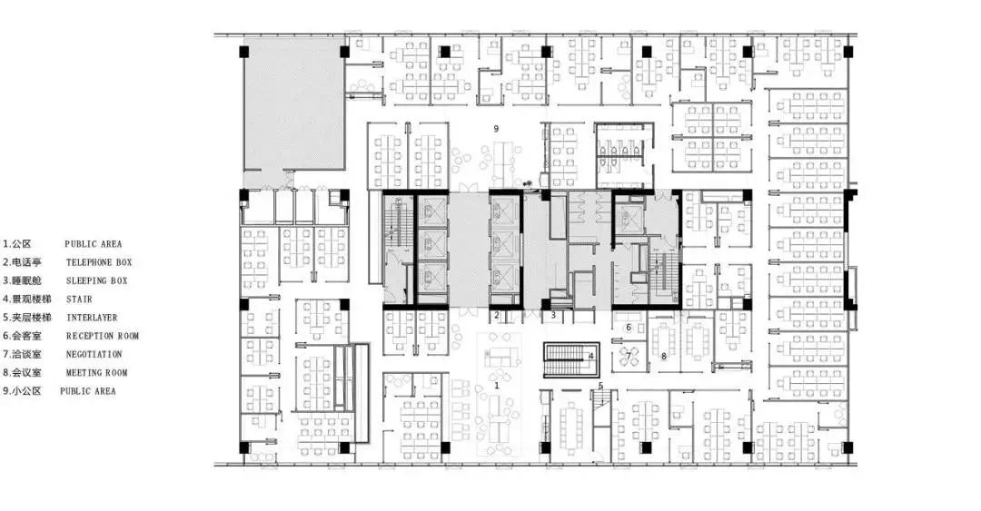
6F公区平面图

UMA Interior Design,是一家国际前沿的室内设计机构,专注于酒店会所、售楼处、样板间、高端私宅及商业空间项目的设计和咨询,通过对设计项目的市场研究和分析,提供国际化设计服务。
始终秉承“设计创造价值,品质改变生活”的理念,从设计概念引导分析及系统化的项目管理经验,拥有国际化的设计视野与专业化的设计团队。
公司与诸多国际团队合作,与众多知名开发商建立合作关系,尤其与保利、招商、世茂、旭辉、中梁、正荣、首创、佳兆业、天一仁和等地产集团一直保持战略合作伙伴关系,通过专业化的服务意识,给予客户提供全方面的设计服务。

深圳华润悦府:以简为美,以质为雅
80㎡黑白设计样板间,简约即是美
瓷绿色空间,诗意的奢华
陈子俊先生,获得并出席:HKT Smart Living智能化设计大奖
从“无”与“0”,回到哲学的角度,看空间设计
归园田居:久在樊笼里,复得返自然
以扇为媒,追寻东风西渐的童孩梦境