这个房子是跃层户型,178㎡,一家五口,可爱的三代人,要舒服的空间、实用的功能。一层空间中包含了:客厅、餐厅、厨房、老人房和书房。整个二层空间作为儿童房、主卧室、阳光房和卫生间的空间,整个二层相当于给年轻的夫妇和孩子使用,也是为了更明确的区分整体动向,年轻人的生活作息时间和老人是有区别的,所以用楼上楼下来区分三代人不同的生活习惯,起到互不打扰的作用。
案例信息
城市:北京
面积:178㎡
房型:跃层式
风格:现代简约
常住人口:五口(可爱的三代人)
设计师:汪玥
装修时长:6个月
装修需求:要舒服的空间、实用的功能
满意的地方:客厅、儿童房

一层翻新前

二层翻新前

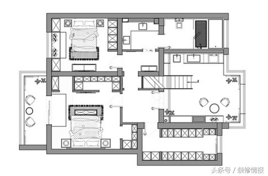
一层原始户型图,整个户型原始结构不舒服的地方有两点。第一原始户型进门直接面对餐厅,没有充足的入门鞋帽换衣的空间,同时入户门直对餐厅,并且非常近,进门的人对就餐的人有一定的干扰。第二是楼梯的位置,在整个跃层户型中楼梯的位置起着很重要的作用,它的位置决定的楼上楼下的整体布局。在原始户型中楼梯在客厅空间中,第一减少了客厅的面积和采光。第二U字型的楼梯多段折叠,同时楼梯左右两边空间很窄,针对老人和孩子使用起来都很不不方便,基于以上不合理的结构作出了调整。

原始结构二层,整体的缺陷有三点,首先二层整体空间面积很大,但是卫生间这样基本需求面积却是非常狭小,作为宝宝和两个年轻夫妇来讲用起来很不方便,尤其宝宝年龄还很小,洗澡需要浴缸或者儿童浴盆来解决,现在的面积是不能够完成的。第二阳光房的面积过大,作为休闲空间、晒衣区来使用并不能完全利用起来,浪费。第三也是最重要的一点,楼梯的位置因为楼下的关一层原始户型图,整个户型原始结构不舒服的地方有两点。第一原始户型进门直接面对餐厅,没有充足的入门鞋帽换衣的空间,同时入户门直对餐厅,并且非常近,进门的人对就餐的人有一定的干扰。

基于上面对一层空间的整体分析,改变了楼梯位置,将原有的楼梯空间作为餐厅,餐厅空间做楼梯,改变原始U字型楼梯,变为一字楼梯。相当于两个功能对调,使得进门是楼梯,楼梯下方储物形成玄关区域,而客厅一侧作为餐厅,打掉原始的楼梯,让客厅和餐厅融合在一个空间,使客厅整体面积增大。同时厨房空间变为开放式,楼梯下方的位置做厨房操作台面和储物空间,楼梯、储物两不误。老人房标准的布局,书房做了书房兼客房的功能,增加功能性。

二层,空间分布给年轻夫妇和宝宝。楼梯位置改变后相应的二层楼梯通到了阳光房,把原有的阳光房让一部分空间给卫生间,形成干湿分离的卫生间,更具功能性,干区两个面盆增加实用性,湿区做浴缸淋浴、马桶,空间开敞。阳光房做洗衣晒衣房和休闲空间。把原有楼梯的位置做了小的衣帽间。二层应女主人的要求做了大量的储物空间,主卧所有衣帽间都没有做固定的门,用帘子来做隔挡很实用,节省空间、节省造价。右下角狭长的空间作为衣帽间来使用,行李箱换季的大衣统统放得下。

楼梯选择玻璃扶手,使空间更有通透性。楼梯下方是平开门的储物柜,进深与楼梯同宽,可以放下家里大件的行李箱或是宝宝的滑板、推车,增加实用性。

整个户型为跃层结构,改动最大的是楼梯的位置,将原本的楼梯位置改为餐厅,原本餐厅位置改为楼梯。让餐厅与客厅空间融合。使空间变得更加开敞、明亮。沙发后面做了一个突出的墙面通过墙面的造型分割餐厅、客厅空间,起到一个划分空间的作用,同时墙面做凹糟。

严格意义来讲,背景墙叫凹龛。先做出一个厚度,在这个厚度的基础之上挖个洞,凹龛中放些木柴,增加大自然的元素,突出素木的主题,值得一提的是客厅垭口的位置进行切角变为几何形状。

客厅顶面黑色的部分是定制的墙板作为圈边,增加设计感,也是为了和凹龛里面的黑色围挡形成呼应。

餐厅墙面运用护墙板与客厅进行区分,有划分空间的作用。选择木色、条纹宽窄不一的护墙板造型也是为了突出护墙板的质感,同时设计竖条情势的护墙板是考虑有拔高空间的视觉效果。


改变楼梯位置以后,利用楼梯下方的空间做为开放式厨房,楼梯、厨房台面两不误。厨房地面选择的是仿木地板的瓷砖,有着地板的效果,瓷砖的防水作用。

二层主卧空间,暖灰色系,不需要太多的元素,简单、舒服就够了。床的背墙做了一圈灯带方便夜晚起夜,在原始墙面基础上用石膏板做个六公分的厚度,在背板的后面暗藏灯带,这样光线柔和,不会直接看到明光,看书、起夜不会刺眼。

顶面做的是定制的黑色混油木条圈边线,直接固定在顶面,增加层次感。

一层卫生间,水泥灰,原木。

二层卫生间,利用了阳光房空间做了干湿分离。干区这边空间足够做两个面盆,增加空间使用率。

用古仓门分割了干湿分离的空间。木色,来自于大自然的颜色。


二层卫生间的湿区,借用了原始面积过大的阳光房空间,提高卫生间的舒适型。整个卫生间都是暖灰色的水泥砖,分了不同的规格和情势,都是水泥砖也要有变化。

书房为了增加实用性做了书房兼客房的功能,床头床尾分别坐了衣柜蹭加储物空间。


儿童房不一定要色彩斑澜,走的都是素色的调子,整体色彩饱和度很低。墙面做了护墙板,适合家里有喜欢画画的宝宝可以擦。

老人房不想做传统的规规矩矩的套路,所以整个背墙做了拼色护墙板,利用几何图形、不同的颜色,增加设计感,老人房要绿植满满。

主卧的休闲阳台,地面做的是塑木地板,比纯木质地板好打理,它的特点是防水防潮,安装方便快捷。
编辑留言:
在设计师的努力下,给业主家里提供了更多的活动空间,采光良好,储物强大,颜值高的同时也非常实用,用一个舒适的家来迎接一个未来。
点击“了解更多”,为你推荐专业的装修公司!