省会第4周(1月22日至28日),石家庄楼市又有新变化,普通住宅继续大幅上扬,但刚刚有点热乎劲的公寓又出现遇冷新情况。

第4周,石家庄普通住宅成交623套和7.47万平方米,成交均价16962.6元/平方米;公寓成交123套和0.68万平方米,成交均价14945.24元/平方米,13个项目有成交,但成交集中在3个项目,占总量的72%。
住宅成交623套 成交均价16962.6元/平方米
根据石家庄克而瑞机构对2018年第4周省会楼市分析,石家庄普通住宅成交623套和7.47万平方米,成交均价16962.6元/平方米,成交量大幅上扬。其中,高新区成交数量最多,成交353套。
当周,瀚林甲第开盘销售、集中成交,本地项目的市场占有率上升。不过,除这个项目外,全国性房企开发项目仍占据成交前列的大多数席位,本地项目仍面临缺乏亮点、稳定货量和营销亮点等问题,难以持续抓住市场眼球。
近期,首置需求和首次改善需求较活跃,80至100平方米和120至140平方米两个户型面积段的成交情况较好,加之160平方米以上也有一定表现,改善需求整体表现更好。
公寓成交123套 成交均价14945.24元/平方米
2018年第4周的石家庄公寓成交123套和0.68万平方米,成交均价14945.24元/平方米,当周13个项目有成交,但成交集中在3个项目,占总量的72%。
本周公寓市场成交规模显现出腰斩态势,市场缺乏亮点,第3周时,省会14个公寓项目有成交,7个项目成交在10套以上。
部分项目为扭转这一局面,推出购房首付款分期支付和特价房等措施,旨在刺激需求释放,但公寓需求的主体仍为投资需求,当前观望心态较为浓厚。
克而瑞分析,公寓成交主力面积段位于40到60平方米,成交100套。桥西区成交量最多,达到40套,其次是高新区,有37套。
相关新闻
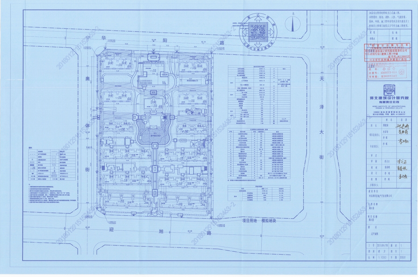
速看!正定一住宅项目规划曝光!
近日,记者从石家庄市城乡规划局网站了解到,石家庄市城乡规划局发布“关于润江府建设项目设计方案批前公示的通告”。 通告显示,润江府项目由河北润洋房地产开发有限公司报建申请,项目位于正定新区,具体地址为西至奥体街、北至华阳路、南至迎旭路、东至天泽大街;用地性质为其他普通商品住房用地,用地面积为5.92公顷(约合88.8亩),属于新建项目。
由总平图可知,润江府项目总建筑面积14.3827万平方米,地下建筑面积4.8847平方米,拟建设住宅、地下车库、配套公建等;项目容积率为2.0,绿地率为35%,配套设施有托老所、文化活动室、社区卫生服务站、社区回收等。
文/河北青年报记者解保童
编辑/王晓优
版权归河北河青传媒有限责任公司所有,未经许可不得转载