正路商务大厦办公室设计说明:
办公楼室内设计
项目性质:办公空间
设计面积:600平方
图文编辑:王营超
主要材料:木地板、凯撒灰大理石、灰橡木、水泥板、墙纸、定制家具、灯具
设计时间:2015年11月
竣工时间:2015年12月
设计说明: 本案结合了传统与现代,将不同的元素重头进行了精心整合,干净整洁的线条贯穿空间始终。设计师确立了“方寸之间,气象万千”的设计理念。布局上层次分明,以一致的线条走向自然过渡到每个办公空间,以简洁的线条表现情势美,再配以恰到好处的灯光,营造出一个简洁明朗、自然通透的现代空间。用朴素的手法表现空间的本质,传达文化的内涵。
把东方元素融入到现代设计中,让东方元素时尚化。硬装简洁、大气的设计,以及黑白灰的基调!
-
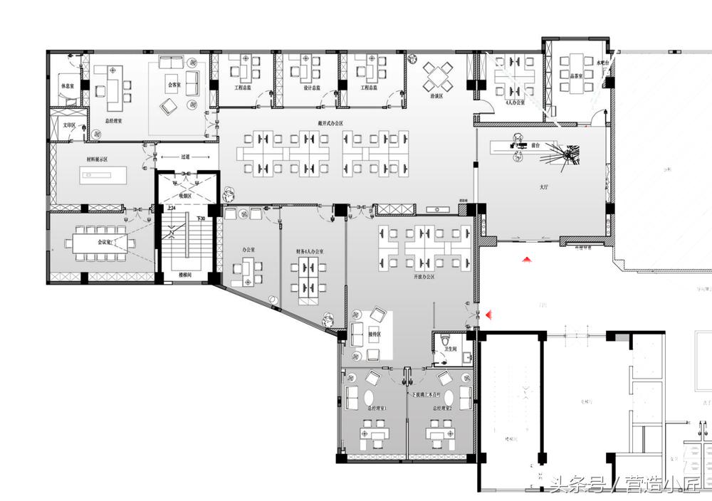
总体平面图

-
001-大厅

-
002-办公区

-
003-会议室

-
004-总经理室

-
004-总经理室

-
005-开放办公区

-
006-品茶室

重点来了,小编也要曝光下近期自拍照片,小小自恋一下!

