
融创北京壹号庄园落笔京城五环,超高落地窗引入自然光线,独栋庄园别墅户型隔绝外界的嘈杂。
设计图纸

负一层 平面图

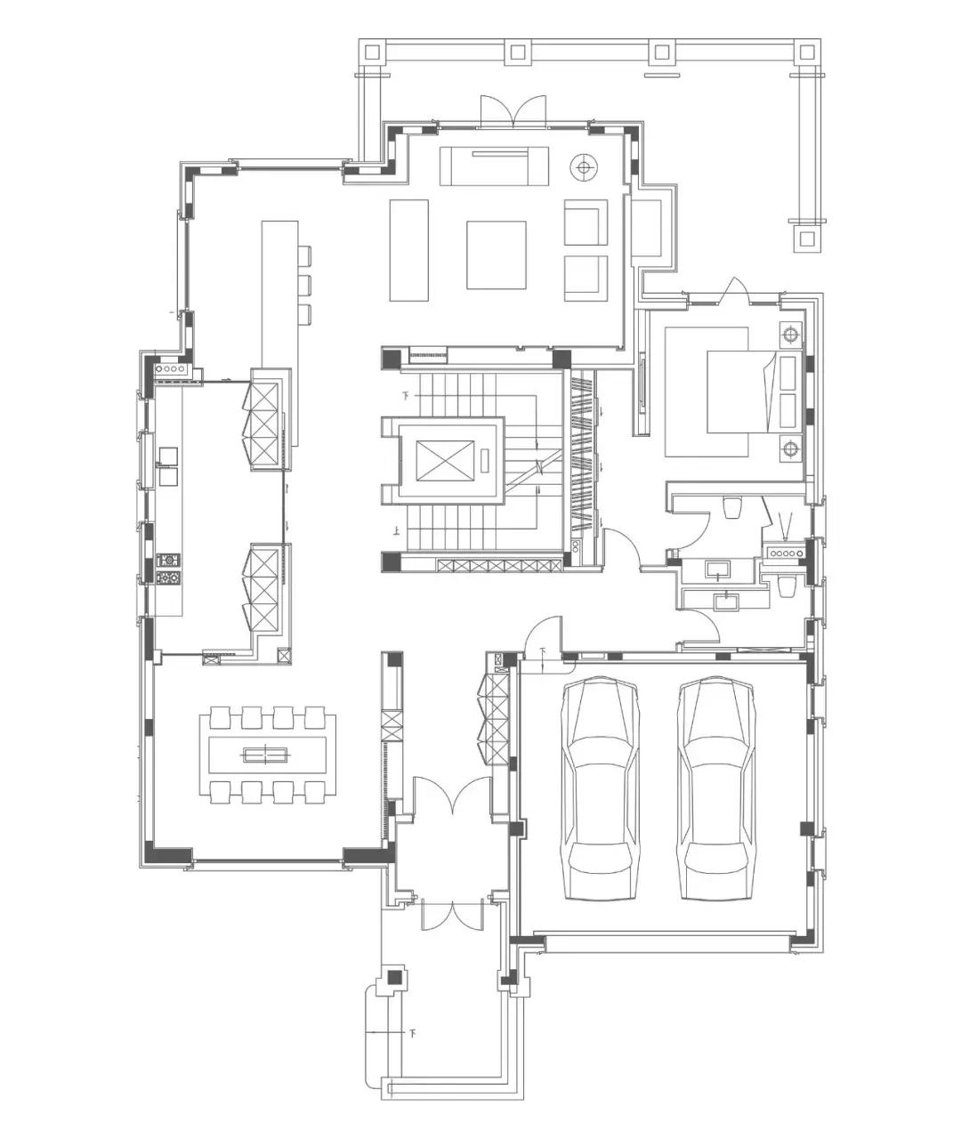
首层 平面图

二层 平面图

三层 平面图
未来科技力量的簇拥、湿地森林生态资源的环伺、东西方文脉的荟萃与传承,为精英阶层收藏一方静雅品质居所。其室内软装由魅*界无**设计主笔。

入口
叔本华曾说过,一切艺术都希望达到音乐的态势。魅*界无**创办人、跨界艺术家方若非,将音乐艺术或跌宕起伏或细腻如丝的情感寄托于软装艺术中,二者有机地荟萃于一体,于随意中透露着和谐,凝结空间独特的艺术美学,构成灵动和谐的悦音。

玄关
魅*界无**设计在空间中引入现代简约美学精神,以浅灰为主调,不同饱和度的蓝色系加以点缀,定义空间的现代艺术风尚。设计撇去繁冗的纤巧矫饰,当代的时尚与自然的纯朴在空间中融纳彼此,灵透幽静的大理石、细腻精致的金属、清新深邃的木香、纯净的云白花束,每一处设计都构成了静妙的和谐,每一个和谐都使时间和空间安然对视,每一个空间都透露着雅致的艺术美感。




会客厅
一层会客厅、吧台、厨房、餐厅空间接续相连,半开放式的设计塑造了空间丰富的层次美感。会客厅挑高的空间墙体,大面积的落地窗,木质、理石与亚麻材质的碰撞,灰蓝与浅灰色泽的跳跃组合,碧海与翻腾的浪花,沁香扑鼻的白玉兰,雅静的气氛中透着律动的节奏感,营造生活中舒适惬意的所在。



吧台
金色的细椅腿,搭配祖母绿软包,空间抒写着优雅情调。色泽深邃的大理石桌柜连接墙体与地面,品质承袭之余,亦平衡了设计的美学与功能特性。




餐厅
餐厅的设计中,浅棕与米白搭配,跳舞兰的明黄与贝壳花的浅蓝加以提亮,窗外引入的绿意自然而舒适,空间气质简约优雅且品味不凡。高级定制的餐具与桌椅、别出心裁的艺术品、掺杂镜色的透明花樽、轻巧灵动的灯饰,共同演绎现代美学生活的雅奢氛围。





休息区
负一层是休闲空间,包含有休息区和书房、视听室、红酒室等。休息区延续主空间的设计风尚,简约时尚中带着静雅的气质。如细砂铺就的柔软的质感地毯、轻盈的纱质罩灯、别致的艺术小品、反绒经典款单椅,精巧绵密的陈设细节均在诉说着空间的艺术精神。





书房
开放式书房设计,把书房的功能性与现代人的精神需求相融合,加入些许传统中式元素,与现代艺术糅合升华,在淡雅中体现空灵。陶瓷、玻璃器物、山水意境挂画摆饰、取意灵动水光的灯饰与地毯、湖蓝搭配深棕的单椅,为精英阶层生活营造一个安静闲适的精神境域。



主卧
主卧空间的色彩上以深厚的棕色为主,空间中每一个家具都优雅精致,每一盏灯饰设计均别具一格,以现代美学语汇的雅致与时尚简洁,营造着流丽典雅的气韵。主卫中,大面积的理石铺陈,通透的自然光线纳入,品味现代美学生活的无限尊崇。



次卧
次卧设计以温柔的灰色为主调,翠绿色透明灯饰的置入,让空间更显得清透明净,内敛中透着优雅气质。木制地板、柜体的硬实与泼墨纹地毯、棉麻舒适床品的柔软相搭,融合简约的现代风与雅澹的中式元素,让空间的质感构成平衡。


女儿房
设计融入了女孩子的似水温柔与雅致情调,古棕色的淳朴色彩与跳跃灵动的幽蓝相得益彰,在春日午后的阳光沐浴中显得更加静谧安好。水晶球状的灯饰轻柔如梦幻的泡泡,嵌在台灯的那一双蓝色晶石幽幽然,着墨出如斯美好的空间气韵。




阁楼衣帽间
阳光透过天窗斜照进来,花束静默地生长着,时光慢慢地爬过,空间沉凝在一片安然闲适之中,聆享静妙和谐的生活意境。
项目名称:北京壹号庄园独栋别墅
项目地址:北京
项目面积:624㎡
开 发 商:融创地产
软装设计:魅*界无**设计(MAXIMUM)
创意总监:方若非
室内摄影:啊光