又是一年佳节来临,春节了,在外打工的老百姓和在外求学的莘莘学子都回家团聚了,这也正是一个商量大事的日子,住宅公园也特地为大家准备了6套实用的小别墅,占地不到100平,适合大多数人的宅基地,其中第3套和第6套建的最多,大家看看,你更喜欢哪一套呢?
第一套:

图片来源:微信公众号:住宅公园
此别墅占地9X9米,是一个简欧式的设计,视野开阔的挑空客厅,唯美大气的落地窗,时尚、接地气。
平面布局图:
此户型设有7卧室、3卫生间、2客厅、1厨房、1餐厅、1阳台、1露台



第二套:

图片来源:微信公众号:住宅公园
此别墅占地10X9.5米,坡屋顶、大露台、凉亭式的阳台、半弧形采光窗,通透性好、日照率充足。
平面布局图:
此户型设有4卧室、2卫生间、2起居室、1厨房、1餐厅、1书房、1阳台。



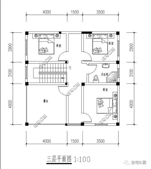
第三套:

此别墅占地面积8.6x10.3米,弧形落地窗设计采光足,房间宽敞,露台设计满足一家晾晒需求。
平面布局图:
此户型设有5卧室、3客厅、3卫生间、1厨房、1餐厅、1书房。



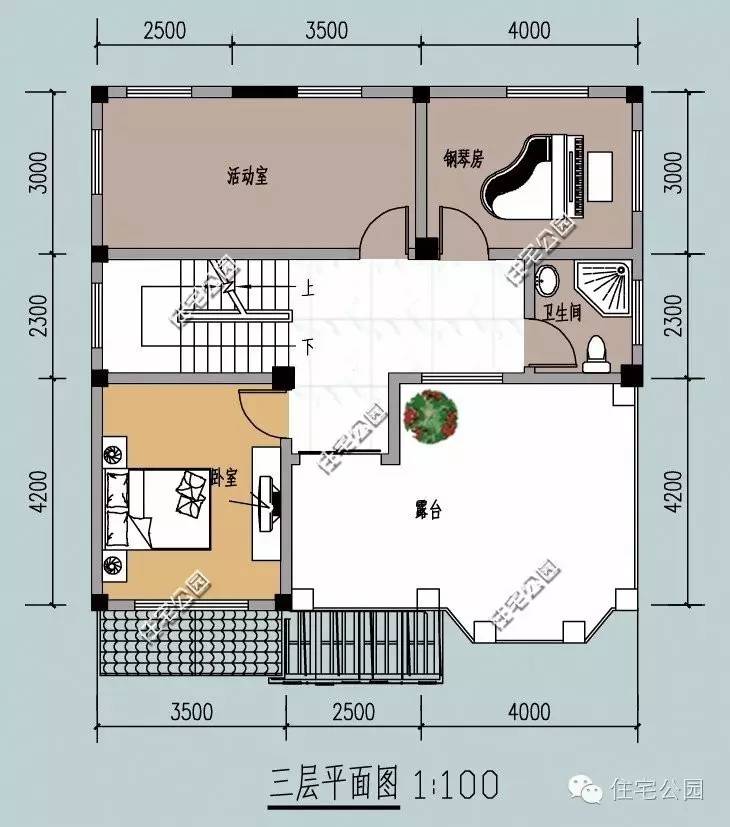
第四套:

这套户型占地9.5x8.99米,飘窗设计采光足视野好,红白蓝搭配,别墅更显活泼。
平面布局图:
该别墅设5卧室、2客厅、2卫生间、1厨房、1餐厅、1活动室。


第五套:

这套别墅占地11.4x8.7米,线条简单明快、布局合理,适合一家两代4口人居住。
平面布局图:
此户型设有3卧室、2客厅、2卫生间、1餐厅、1厨房、1储物间。


第六套:

图片来源:微信公众号:住宅公园
此别墅占地8.2X10.6米,文化石的外墙、屋顶花园的设计,外加一个小院,更是使这个别墅显得时尚、田园。
平面布局图:
此户型设有4卧室、1客厅、3卫生间、1餐厅、1厨房、1车库、1露台。


盖别墅,最重要的是漂亮,再也不能和以前一样瞎搞了,那这6套实用别墅,30万就能盖好,你更喜欢哪套呢?当然,有什么问题欢迎批评指正。
微信公众号:住宅公园,450套乡村别墅图纸,建房预算施工技术展示。