随着房价上升,买房的成本也是越来越高,如何在小户型里做出多间房,保证实用又划算?今天齐家贤哥就带大家一起来看看这款实用的户型设计,58㎡的复式三房,麻雀虽小但五脏俱全,而且复式也满足了不少年轻人对私人空间的要求。

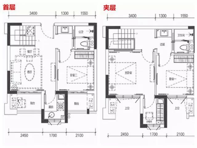
58㎡的户型图,层高4.5米,三房设计,一楼一房一卫,二楼两房一卫的分布格局。

进来就可以看到客厅,因为是小户型,所以基本一眼就可以看完,设计方面都是选用简单的设计和小家具。这样看上去空间不会显得特别狭小。

这是从里面另一个角度看的客厅,在入门右手边是上二楼的楼梯。整体装修风格都比较简约,地板选择简约的浅色实木地板,沙发也是选择比较小型的。

厨房并没有位于入户处,而是位于客厅里面,阳台旁边,采用的常用的L型厨房设计,虽然小,但是也实用。

一楼入户处的左手边是洗手台和卫生间,洗手台并没有设置在卫生间的里面,而是设置在了外面,避免了高峰期上厕所和刷牙的拥堵,也是一个不错的设计。

58㎡的3房分布是一楼有一间房,二楼有2间房,一楼的卧室位于入户处洗手台的对面。房间比较小,能放下一张床和小书桌。作为次卧还是可以的,而且采用落地窗,外面是阳台,采光也比较好。

二楼的两间卧室,采光都不错,主卧的空间比较大,两间房采用的是比较简约的设计,墙壁挂了一些墙画,增加一丝个性的味道。

二楼主卧室空间较大,卧室里面还有一个小房间,里面有衣柜和梳妆台,后期加上遮帘布,可以在里面换衣服,也比较方便,小户型还能有空间如此,还是不错的。

楼梯间也是采用简单的木质楼梯,简单简约,位置较窄。二楼还有一间独立的卫生间,楼上楼下都有卫生间,居住使用起来比较方便。也避开高峰期的使用。
像这样装修需要花多少钱?点击“阅读原文”马上就能算出来!