原创: UKPIWeekly 英国房产周刊 2019-11-01
伦敦泰晤士河畔的皇家金斯顿区(Royal Borough of Kingston-upon-Thames)是全伦敦乃至全英国领军的卓越学区。
由Sutton Trust教育慈善基金会发布的2015-2017英国牛津、剑桥大学录取率排名中,伦敦范围内,牛剑录取率最高的行政区是伦敦西南近郊的Kingston upon Thames,录取率为4.4%,在全英排名第二。
伦敦各行政区牛剑录取比例

传统的英伦生活范儿——伦敦皇家金斯顿区
这里是历史和现代完美交融的典型英伦都市中心。这里没有市中心的嘈杂,却可以享受堪比牛津街的购物体验;这里无需从市区长途通勤,却可以近距离感受大自然的美妙与宜居;这里没有伦敦著名地标的衬托,却可以在泰晤士河畔,在加冕石附近寻觅英格兰的历史遗迹。

全区人口约17万,80%都是英国当地人。区域人文历史悠久,周边多个大型皇家公园环绕,中小学教育质量在英国名列前茅,并拥有金斯顿大学等知名院校。正因为历史悠久、社区成熟、辖区内新建小区非常罕见。

专业房产机构预测,金斯顿地区未来五年的房价增值为8%,未来5年的租金增长预计为18%。房产平均的投资收益率为4%。
金斯顿区域投资亮点速递:
- 全英金牌学区,牛剑录取率全英第二,伦敦第一。金斯顿有两所公立中学的牛津、剑桥升学率超过25%;
- 全英和伦敦最适合居住的区域之一,居民生活满意度最高的社区,安全性高;
- 英格兰王国的诞生地,曾经有7位国王在此加冕,全英最古老的以皇家命名的区(全英仅有5个以"皇家"冠名的区之一);
- 三个超大皇家公园环绕,项目步行5分钟到泰晤士河畔,沿河公园和镇中心沿河特色餐馆酒吧云集;
- 伦敦西南最大的购物中心区,John Lewis等知名百货、著名连锁品牌、独立商铺、大型超市集中,生活极为便利;
- 现有交通发达,30分钟直达市中心Waterloo交通枢纽;伦敦市政府即将建设的Crossrail 2(纵贯城铁)通车后,将通勤时间缩减一半到三分之一,房价额外增值空间巨大;
- 镇中心三大购物中心之一的Eden Walk即将升级改造扩建,也将带动社区整体价值;
- 作为伦敦千年皇家古镇,区内可开发用地极为短缺。
由英国顶级开发商伯克利集团开发的Royal Exchange是金斯顿中心区域唯一的新建住宅项目,是伦敦传统金牌学区内难得一见的高品质住宅项目。
欲了解 Royal Exchange项目详情,可以通过下方二维码参与Royal Exchange项目首发品鉴会!活动中更有旅居英伦15年的金斯顿本地居民,英伦房产专家,范慧勇主编为您解读在金斯顿生活养娃的那些事儿。
北京:11月15-17日 / 15日14:00 范主编房产投资讲座
上海:11月22-24日 / 22日14:00 范主编房产投资讲座
长按二维码索取邀请函

教育:伦敦金牌学区
金斯顿区学龄儿童家庭拥有的重点学校在伦敦排名第一。作为伦敦面积最小的区域之一,金斯顿区共拥有34所中小学,其中被教育部评为优秀(Outstanding)的学校有24家,其中9所学校跻身全英同等级学校最优秀的10%之列。

金斯顿全区的牛津剑桥录取率排名伦敦第一,全英第二。区内的提奋女子中学(Tiffin Girl)和提奋男子中学(Tiffin School)的成绩居全英国中学前50名,每年牛津剑桥的升学率为25%左右。

在最新公布的《泰晤士报》学校排名中,A-Level成绩全英排名前25的公立学校中,有5所位于金斯顿可以覆盖的区域。

金斯顿大学是全球200所年轻大学之一,艺术专业在行业内名列前茅,同时也是英国排名第二的商科大学之一,经AACSB认证,跻身全球商学院排名前5%的行列,吸引全球16,000多名学生。
底蕴:国王加冕石的故乡
作为最古老的皇室领地,坐落于泰晤士河南部的金斯顿的历史可以被追溯到罗马时代,位于市镇中心的诸圣教堂已经屹立了一千多年。历史上有七位撒克逊国王在此地加冕,加冕石现在还静静躺在在市政厅的前面。

除了深厚的历史,金斯顿的艺术氛围也相当浓厚。位于镇中心以南的金斯顿大学的艺术设计专业颇具盛名。

图说:大卫·马赫(David Mach)的《乱序》
通勤:30分钟直达伦敦心脏街区

金斯顿位于伦敦市中心西南10英里的位置,属于交通6区。是伦敦重要的通勤居住街区。目前从金斯顿搭乘火车,30分钟可直达伦敦市中心1区的Waterloo火车站。这里汇聚了4条地铁线,可以轻松的换乘至伦敦西区、中国城、国王十字、金融城、金丝雀码头等地。高峰期Waterloo车站平均每10分钟就有一班火车开往金斯顿。
• 每小时就有六列通往滑铁卢的火车
• 6分钟车程可达Surbiton(瑟比顿)
• 距希思罗机场30分钟车程
• 距盖特威克机场45分钟车程

Waterloo火车站与伦敦金融城Bank之间有全英最短的地铁线Waterloo & City Line,这条地铁线的开通就是为了方便在金融城上班的银行家、高级金领等雇员往返于Bank和Waterloo之间。就每英里的平均旅客量而言,Waterloo & City Line是仅次于Victoria Line的繁忙地铁线。

宜居:被皇家园林包围都市中心

环绕金斯顿镇中心,在步行十几分钟或开车5分钟左右范围内,至少有三个超级大的皇家公园,分别是泰晤士河西岸和镇中心隔河相望的皇家汉普顿宫的大花园(Hampton Court Palace Park)、皇家布什公园(Bushy Park);以及在镇中心西北角车距约5-10分钟的全伦敦最大的皇家森林公园——里士满公园(Richmond Park)。里士满公园占地约2,360 英亩,是纽约中央公园的三倍。


当然,这三个公园只是金斯顿一带最大的公园,这还没说镇中心泰晤士河畔的沿河公园、遍布各处的不算太小的社区公园绿地。有绿地之处,通常都有公共免费的半封闭儿童游乐场。正是这些设施,让金斯顿成为一个堪称完美的最适合养娃儿带孩子的社区之一。

里士满公园和布什公园里,各有600-700头散养的麋鹿和梅花鹿,也是小朋友们对动物好奇学习的最好启发。

对公众免费开放的里士满公园伊莎贝乐植物园,每年4、5两个月,开满原产中国的杜鹃花,自然是晚饭后、周末散步的最佳去处。
娱乐:满足全年龄的各种需求
无论是冲浪、划船、马术,还是板球、网球,高尔夫,居住在金斯顿都能够满足您的运动需求。坐落于金斯顿区的英国顶级Coombe Hill高尔夫球俱乐部云集了伦敦乃至世界的高尔夫球爱好者,为高尔夫球爱好者提供最完美的体验。

镇中心的玫瑰剧院(Rose Theatre)、火车站对面的Odeon电影院都是周末和家人朋友休闲娱乐的好去处。

玫瑰剧院曾上演 《亨利六世》(第一部分),浓郁的文化底蕴让你更好地感受英*歌国**剧的魅力。
购物:当传统市集遇上现代商圈

作为伦敦传统的富裕居住区,金斯顿还是伦敦西南最大的都市中心。凭借着完善丰富的购物、生活配套,这里不仅仅满足本地居民的购物需求,更是周边街区,比如里士满、萨顿等街区居民重要的购物中心。这里既有近千年历史的传统集市,又有现代化时尚的大型购物中心。

许多品牌在伦敦市中心开设1-2家店铺后,后续扩张都会选择金斯顿,比如苹果直营店、美国高端家居品牌West elm,日本服装品牌优衣库等等。

简单总结一下:从个性买手小店到英国老牌高质量的百货商店John Lewis,从历史悠久的露天市场到品牌齐全的Bentalls购物中心,金斯顿应有尽有,生活极为便利。
潜力:交规升级+升级改造
房产投资,最重要的考量因素就是一个街区交通是否有提升空间。任何有新增交轨的街区,在规划、建设和通车不同周期内,都会相应地迎来不同程度的房产增值。
已经获得国家基础设施委员会(National Infrastructure Commission)许可的纵贯城铁(Crossrail 2)已确定将在金斯顿设立站点。也就意味着未来的金斯顿,交通配套会更上一层楼。从而刺激站点周边街区房价的水涨船高。

在伦敦这样一个历史悠久且非常成熟的都市,升级改造工程也是楼市的强效刺激。作为英国历史最悠久的市镇中心之一,金斯顿的可开发用地匮乏,投资4亿英镑的Eden Walk购物中心是这个千年古镇难得的大型升级改造项目。新的方案将为金斯顿镇中心带来新的活力,以便提升金斯顿作为伦敦西南近郊最大的购物中心的地位。


泰晤士河畔稀缺学区靓盘

Royal Exchange是泰晤士河畔金斯顿(Kingston)的最新成员,由英国顶级开发商伯克利集团围绕着美丽的二级保护建筑老邮局和电话交换大楼而建。这个激动人心的新开发项目将提供267套住房,包括一居室、两居室和三居室公寓,为金斯顿不断发展的古老遗产文化增加了摩登的现代气息。

Royal Exchange将结合新鲜的和过去的建筑物、商店、饭店以及私人园林,为住户打造享受金斯顿丰富生活的美丽基地,提高住户的居住体验感。

在Royal Exchange,现代化的室内设计为每个房间营造了清晰的视野。优质的材料确保配件和饰面达到高标准。高端电器和复合石材台面与黑色铁艺相得益彰,大大小小的细节无不体现着居住空间的实用性和精美的美学设计,奢华尽在其中。



2.6英亩的活动区域中,更有私人园林庭院享受尊贵生活。

如果你恰好是电影爱好者,那么私人放映室一定带给你万分惊喜。

还有居民健身房、舒适的办公空间以及24小时的前台礼宾服务,高端摩登的现代生活触手可及。

户型推荐

▲ 一居室
套内总面积:50.2平米(相当于国内建筑面积:65.26平米)
赠送阳台面积:14.4平米

▲ 二居室
套内总面积:71.7平米(相当于国内建筑面积:93.21平米)
赠送阳台面积:20.7平米

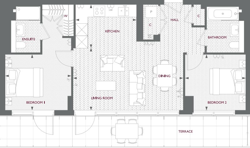
▲ 三居室
套内总面积:102.7平米(相当于国内建筑面积:133.51平米)
赠送阳台面积:44.8平米
【项目信息】
项目名称:Royal Exchange Kingston
开发商:英国伯克利集团
产权:999年
完工时间:Q1-Q3 2023
价格:£480,000起
支付方式:定金£5,000
21天内支付首付10%(减去定金)
12个月后支付10%
18个月后再支付5%
项目配套:24小时礼宾服务、私享影院&会议室、居民健身房、电动汽车充电点、两个私人园景庭院
欲了解 Royal Exchange项目详情,可以通过下方二维码参与Royal Exchange项目首发品鉴会!活动中更有旅居英伦15年的金斯顿本地居民,英伦房产专家,范慧勇主编为您解读在金斯顿生活养娃的那些事儿。
北京:11月15-17日,15日14:00 范主编房产投资讲座
上海:11月22-24日,22日14:00 范主编房产投资讲座
长按二维码索取邀请函
