120平室内设计实景拍摄 (120平方米家装实景图)

设计项目 | 宁波余姚 君悦国际

空间性质 | 公寓

建筑规模 | 120m2

设计单位 | 宁波柒合空间设计有限公司

主案设计 | 柒合设计团队

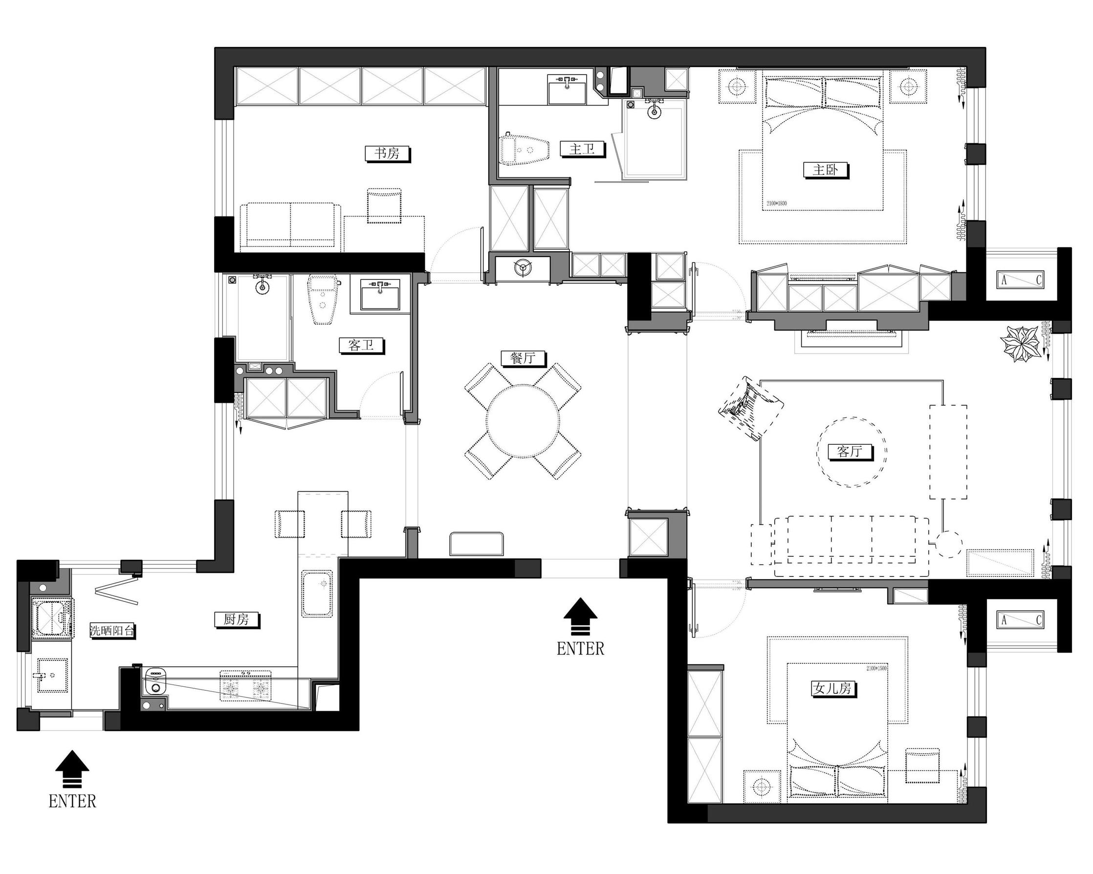
▼平面

准备10万元装修120平的设计效果图,120平方真实装修

▼客厅

准备10万元装修120平的设计效果图,120平方真实装修

准备10万元装修120平的设计效果图,120平方真实装修

准备10万元装修120平的设计效果图,120平方真实装修

准备10万元装修120平的设计效果图,120平方真实装修

▼餐厅

准备10万元装修120平的设计效果图,120平方真实装修

准备10万元装修120平的设计效果图,120平方真实装修

准备10万元装修120平的设计效果图,120平方真实装修

▼卧室

准备10万元装修120平的设计效果图,120平方真实装修

准备10万元装修120平的设计效果图,120平方真实装修

准备10万元装修120平的设计效果图,120平方真实装修