缤纷的夜
有霜雾,天空中
明月朗照
松树的树冠
弯曲成雪的白,淡淡地
没入天空,霜,星光
除了靴子的吱嘎声
兔的足迹,鹿的足迹
我们知道什么
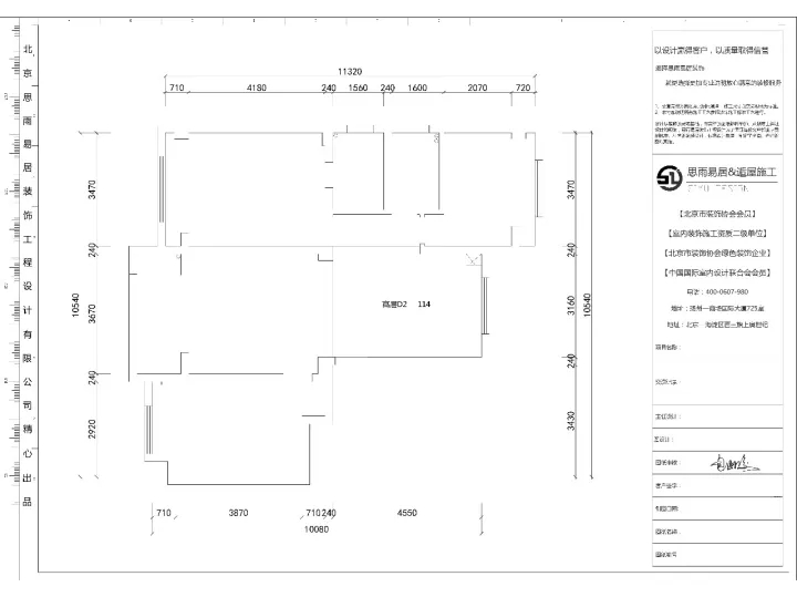
基本信息
小区:华建AT上院高层D2户型
面积:114平米
居住人口:年轻夫妻带小孩的三口之家
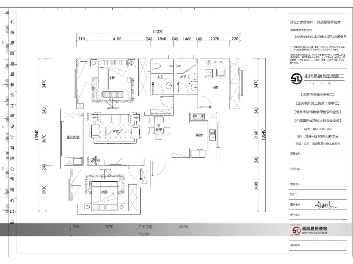
原始平面结构图

现场结构照片

户型痛点
1. 户型的动线有交叉,家务动线和来客动线交叉,对餐厅的干扰比较大。不利于餐厅的使用
2. 本户型动静分区不是很理想,动区插入静区将静区分离,插入的是卫生间,私密性不佳。
3. 储物空间不是很多
户型解决方案
1.餐桌靠墙摆放,空出一条南北通常的动线
2.卧室飘窗区域做成飘窗柜或者书桌,学习和储物空间都能解决
3.北面小房间做成榻榻米房,可供娱乐或者是备用房间
主案设计师初步手稿

团队电脑版深化设计图展示



欢迎继续关注我们对这个案例的开展与更新。
如果你想了解更多本小区或相似户型设计,
你可以直接联系我们客服,
你也可以关注思雨易居装饰公众号,