楼盘:润城二期
户型:120㎡
设计单位:昆明品秀装饰工程有限公司
设计师:卢文玉
设计风格:地中海风格
设计理念:地中海田园风格客厅采用亮眼的颜色对比,电视背景墙进行一个着重体现风格与自然地结合,拱形造型和马赛克石材更是增加了泥土气息,回归自然的舒适。
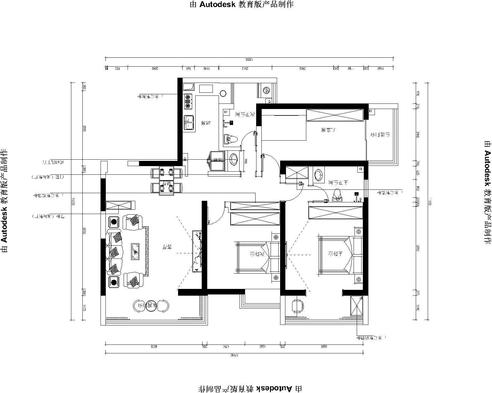
平面布局图

效果图展示





完工实景图展示








楼盘:润城二期
户型:120㎡
设计单位:昆明品秀装饰工程有限公司
设计师:卢文玉
设计风格:地中海风格
设计理念:地中海田园风格客厅采用亮眼的颜色对比,电视背景墙进行一个着重体现风格与自然地结合,拱形造型和马赛克石材更是增加了泥土气息,回归自然的舒适。
平面布局图

效果图展示





完工实景图展示







