木头温暖
混凝土冰冷
当他们机缘巧合相遇
在一个小小的空间
结局
却出乎意料的美好

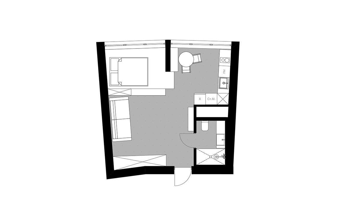
平面布置图
▽

方方正正的户型
不会浪费空间
客厅、餐厅、玄关、卧室、卫生间、厨房
全员报道、无一缺席
典型的单身小公寓
应了那句话
麻雀虽小,五脏俱全
客厅
▽

三人灰色布艺小沙发
其实一点都不小
舒服到可以半躺的深度
针对小公寓来说
已经算是高配了
简单的组合小圆几组合
有层次感还不浪费空间
舒适的米色地毯
温柔的宣示着这是我“客厅”的地盘

沙发背景墙放了两幅装饰画
不会抢了主角沙发的戏份
还将客厅装饰的有声有色
最厉害也是整个房子最大件的设计
就是这个电视机柜
其实是综合的L型转角柜
功能强大还很有设计感
顶天立地的深咖色的木质元素
让小公寓的客厅高大上了起来

沙发的左侧
是一进门的墙体
一整面墙的收纳柜
也可以说是玄关柜、衣柜
与沙发的空隙
刚刚好放了一个穿衣镜
年轻人必不可少的臭美神器

整个房子的顶部都没有做吊顶
裸露的筒灯在白白的顶部毫无违和感
为了营造家的温馨氛围
电视柜的顶部设计了灯带
学过设计的都知道
见光不见灯的灯光
才是最高级的灯光设计
卧室
▽

木质隔断与客厅零距离分隔
混凝土抬高
划分空间
为了空间过度不会那么生硬
结合隔断的材质颜色
做了一块有功能台阶的木质抬高板
丰富了空间的层次感

玻璃隔断半隔开客厅与卧室
有了一定的私密性
整体空间一点也不压抑

混凝土墙有一种自带的沧桑质感
故事感很浓
这是任何的软包、硬包都代替不了的

窄窄的混凝土墙立面
隔出了一个卧室和餐厅
不局促
还有整体感
两“块”混凝土的底部和顶部都留有一定空隙
不会有沉闷和压抑感
额外加了感应灯条的设计
温馨度和使用幸福感瞬间上升了几个度

绿植是家庭必备
净化空气还充满生命力
餐厅&厨房
▽

作为单身公寓这样的小户型
餐厨一体是不可避免的
一字型的开放式厨房
一头灶台、一头水池
结合抽油烟机做了层板可以做简单的收纳
最厉害的是他的右侧
结合客厅的电视怪
做了一个L型的综合收纳柜
巧克力的木质很有质感
靠近厨房的部分
做了大别墅才有的隐藏电器的综合橱柜

舍弃常规的方形餐桌
小小的圆桌更适合小户型
圆弧形的边更有空间感

深色的木质更有质感
细细的线形黑色造型吊灯
造型感很强
最重要的是不占空间
小户型可参考
卫生间
▽

△淋浴房朝向台盆方向
没有窗户是公寓卫生间的通病
所以通透和明亮是重点
故意抬高的台盆柜
视觉上放大空间
白色的青砖和小卫生间是标配

玻璃的透明淋浴房
做到了干湿分离
也是小卫生间的必备神器
关注“考拉小匠网”公众号,了解更多装修干货
致力于共赢生态,做公正的装修服务平台