农村建房子宅基地有限制,又想一大家子住一块儿,所以不少朋友会选择建双拼,一般来说建双拼户型需要足够的占地,才会建得宏伟大气。很多朋友认为双拼户型占地太大了,更偏向于独立楼层设计,一层老人家居住,二层年轻人居住,做到集养老房和婚房于一体。如果是临街户型,一层做门面可以整层出租,非常实用。
今天我们新型房屋的小编整理出5套独立楼层的户型,感兴趣的朋友们一起来看看吧!
户型一:
占地尺寸:16.5mx12.5m
这套简欧风格户型立面没有设计造型复杂的罗马柱,而是采用素白色与姜黄色搭配充分丰富外观造型,合理节约了建房成本的同时,减小了施工难度。以前旧房留下的一个独立厨房,翻新一下还可以作为土灶厨房使用,如此既可以烧出可口的柴火饭,又可保证家中的干净卫生。

入户处设计一个小玄关连通客厅,卧室分布设计在东西两侧,厨房、餐厅则布置在北侧。餐厅处开一个入户门,可以直通室外独立的厨房,平日出入更加方便。

二层也带有餐厅、厨房,非常适合两兄弟或者父母想独立生活的家庭居住。二层设计一个宽敞的大露台,平日里晾晒衣物更加方便。

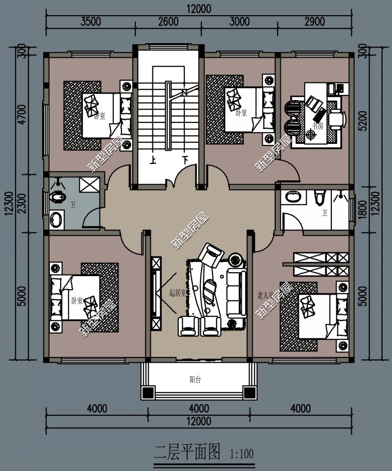
户型二:
占地尺寸:18.8mx12.4m
规整的建筑外观,构造简洁流畅,运用农村常见的红砖建造,搭配大气别致的坡屋顶,尽显质朴大气。业主是俩兄弟,一层给父母住,二三层兄弟各占一层,营造了相对独立的居住空间,上下楼层又有楼梯联通,设计地非常周到。

一层老人房有独立卫生间,方便家中老人的起居生活;餐厅设在中间,面积够大,逢年过节一家人吃个饭也是很需要的。

二层住户家庭人口数多,对卧室需求量大,共设有6间卧室。

三层布局简单实用,起居室外接阳台,室内光照更充足;大露台满足日常的晾晒需求。

户型三:
占地尺寸:19.44mx11.44m
外观造型是最接地气的田园风格,一向是最懂得自然之美的,温馨的色彩所带来的温暖美感,暖化了家的记忆,也带来了天然的清香。

一层东侧设有室内车库,入户便是农村特有的堂屋设计,预留了充足的空间,提供了开阔的视野,也起到连接各功能区域的作用。

二层也有单独的厨房餐厅,区域独立性强;另有专门的娱乐室,丰富居家生活,增加生活乐趣。

三楼依照业主需求,面向马路设有入口,方便进出;更有大面积的露台,方便日常的晾晒。

户型四:
占地尺寸:12mx12.3m
在农村建四层户型的人并不多,业主家住在景区附近,建了一栋四层户型,房屋一二层用来自住,三四层出租。四层户型造价偏高,为合理节省造价,设计师会选择采用极富层次感的外观配色来丰富立面造型。黄棕搭配的外墙与红瓦,喜庆温馨,是一个家该有的模样。

入户玄关与客厅连通设计,更显室内宽敞舒适,餐厅厨房处开小门与室外相通,家人日常出入更加方便。
西北立面设计一个室外楼梯通向楼梯间独立入户门,这是这套户型的设计亮点。通常大家会想再单独设一个楼梯间通向三四层,保证一二层的私密性,但如此则浪费了部分室内空间。所以设计师选择楼梯间单独设入户门通往三四层,这样既方便舒适,又节约了室内空间。

一二层均设计一个带内卫的套间用作老人房,年纪大的老人可住一层,腿脚还比较方便的老人便可居住在二层。

三四层用来出租,室内布局大同小异。三层设计一个阳台,四层则设计一个露台,方便居住者晾晒衣物。


户型五:
占地尺寸:12.8mx15.8m
两兄弟建房建个四层户型, 要求每层使用面积不同,因此显现于外立面的则是一种很有层次的错落感,而错落和层次带来的建筑语言已经很为丰富,因此搭配了比较淡雅的色系和简约的建筑线条。

合围式院落尽享一方静谧,半封闭式车库十分方便。还设有电梯,也不会让家人感到攀爬不易了。一二三层均为独立的起居空间,厨房餐厅客厅等功能俱全。

二层南面阳台与起居室连通,更宜通风采光,北面的生活阳台则适合晾晒衣物,更注重隐私。

三层三面有阳台,三间卧室都带有卫生间,十分舒适方便,朝南带衣帽间的大主卧更加尊贵,是多少人翘首以盼的起居生活呐!

家庭有信奉佛教的习惯,在四层设一个佛堂是个不错的选择,静谧而庄严,不会被打扰。
南北大露台有足够的空间来晾晒东西,反正坐电梯,上四楼也不累。

这5套楼层独立设计的户型大家觉得怎么样?哪一套最适合你家建呢?
关注本号,更多农村自建房图纸分享。