济南CBD片区,我们一直很看好。
中央商务区承载了济南城市功能提升和经济跨越发展的重任。CBD片区内各种商务、商业、地铁配套非常齐全,未来在此居住、工作、购物、出行会很方便。目前片区内及周边有仁恒公园世纪、招商项目、万科大都会、龙湖天璞、复星国际、绿地IFC、中信泰富济南尊、华润昆仑御、现代逸城、伴山居10个楼盘在售,竞争比较激烈。

参考君曾多次发文分析过CBD片区的优点,今天重点说说在此置业的敏感点。其实CBD片区更侧重商务规划,片区内住宅从居住角度来讲有很多敏感因素。前段时间,济南楼市参考一行曾到CBD片区的中信泰富济南实地探盘。这篇文章就以该楼盘为例,讲讲在CBD片区置业的敏感点。

NO. 1|壹
中信泰富济南尊产品介绍
中信泰富济南尊是中信泰富在济南的第一个房产项目,开发商实力毋庸置疑,但口碑有待时间检验。参考君衷心希望中信泰富不会像某些其他品牌房企一样,来到济南质量缩水。
先来看一下,中信泰富的商业项目。
中信泰富在CBD有5宗商业组团地块,3块住宅组团地块。商业地块中规划有CBD“五指山”的“城”,规划总高度为330米。根据媒体报道,CBD中信的超高,去年12月就已经奠基,到目前为止8个月过去了,现在这个超高怎么样了呢?

从现场来看,超高层尚未大规模动工,工地仍是平地,地基还没深挖。考虑到超高层建筑建设周期较长,中信泰富的“城”距离真正建成投入使用,至少还需3-5年。

截至今天,距离CBD片区二钢*迁拆**已过去将近3年,中信超高的工程进度要加油了,800万济南人民热切盼望CBD五座地标早日建成。
CBD五座超高进度最快的是绿地国金中心,目前已盖到10多层。

再来看一下,中信泰富的住宅项目。
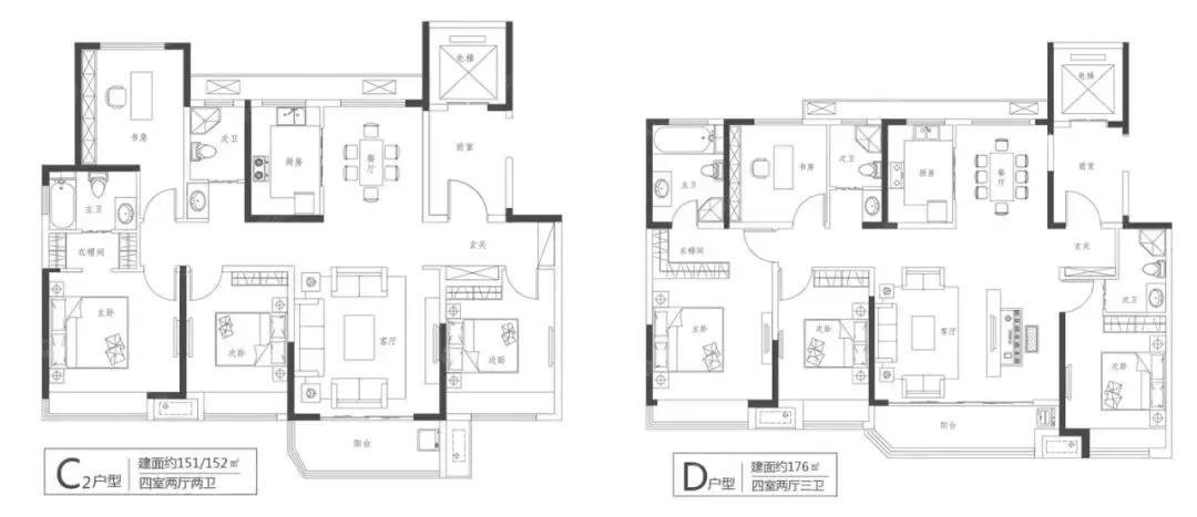
中信泰富济南尊(下文中简称中信泰富)3宗住宅地块位于CBD片区的东北方向,地处工业南路和奥体西路交汇处西南。住宅项目分为B1、B2、B3地块,共规划有16栋住宅。
3宗地块容积率皆>2.0!
B1地块地上容积率2.54(规划有4栋住宅),B2地块地上容积率3.0(规划有3栋住宅),B3地块容积率2.11(规划有9栋住宅)。

中信泰富3宗地块共规划有870套住宅(B1地块210户、B2地块236户、B3地块424户),体量并不大。从容积率及地块具体位置来看,B3地块产品较好(容积率低),B2地块(挨着奥体西路很近,容积率高)和B1(居住公寓较多)地块产品稍差。


中信泰富B1和B2地块住宅产品皆为毛坯交付,B3地块为精装交付。项目首开的是B1地块的1#楼和2#楼,目前仍在售,均价24000元/㎡。未来会加推3#楼和4#楼,B1地块4栋住宅交付时间为2020年12月30日。

该项目户型面积跨度较大,建面在103-182㎡之间。其中B1地块规划有6种户型:112㎡(三室两厅两卫)、133㎡(三室两厅两卫)、134㎡(三室两厅两卫)、151㎡(四室两厅两卫)、152㎡(四室两厅两卫)、176㎡(四室两厅三卫)。



NO. 2|贰
住宅产品及配套优劣性分析
中信泰富住宅的很多敏感点,CBD区域其他楼盘几乎都存在。像住宅组团、小街区、住宅楼下有底商、部分楼栋紧邻主干道等。参考君仔细分析该项目,大家可以此项目对比参考CBD区域内的其他楼盘。在CBD买房的多数人,基本上在济南不止一套房。综合来讲,CBD区域内楼盘的宜居性整体还不错,但不是特别好。
1、容积率较高。
中信的容积率每个地块不太一样,B1地块地上容积率2.54、B2地块地上容积率3.0、B3地块地上容积率2.11。户型建面在103-182㎡之间,从这两点来看,中信泰富并非是纯粹的改善楼盘,其中B2地块容积率更是高达3.0。
一般而言,低容积率和圈层统一是纯改善楼盘的标配。
B2地块仅规划有3栋住宅,容积率却最高。B2地块3栋楼总层高较高,1#楼和3#楼总高25F,2#总高17层。另外楼盘较高但楼间距却比较窄,像B2地块1#跟南侧3#楼间距仅有约60米。

2、小街区,每栋楼都挨马路。
小街区是深度城市化的一种趋势。小街区如同城市的微循环系统,可以兼顾高连通性和可达性,可让有限的土地资源发挥最大的收益。但这是以牺牲住宅舒适度为代价的,尤其临街栋楼的矮楼层未来噪音污染、粉尘污染、尾气污染会较为严重。
中信泰富的B2地块和B3地块东侧,挨着奥体西路很近,奥体西路是贯穿济南南北的一条主干道,未来噪音、粉尘、尾气污染可能较为严重。通过航拍图,可清晰感受到部分楼栋距离奥体西路如此之近。

3、住宅楼下有底商。
中信泰富3宗地块共规划有16栋楼,除B3地块3#楼外,其余15栋楼皆有住宅底商。带底商的住宅有利有弊,未来业主购物很方便,但底商带来的噪音影响、环境污染不可轻视。住宅底商扰民的新闻报道屡见不鲜。

需要特别说明的是,住宅底商现象在CBD区域比较普遍。
4、未来地铁交通较为方便。
中信泰富济南尊距离R3地铁线的丁家东站很近,部分楼栋距离地铁口仅约200米,是真真正正的地铁房。但需关注的是,楼栋距离地铁口并非越近越好。
未来CBD片区很多楼盘乘坐地铁较为方便,贯穿龙洞片区、CBD片区、盛福片区、新东站片区的R3线将于10月份前后试运营。根据济南地铁二期规划,未来途经CBD片区的地铁线会越来越多。

奥体西路和工业南路交叉口
5、存在一定数量的居住公寓。
中信泰富南侧为绿地的住宅项目,受限于3宗居住地块本身的容积率及南侧绿地住宅项目遮挡,B1地块和B3地块存在一定数量的居住公寓。

目前在售的B1地块1#楼和2#楼并没有居住公寓,即将加推的B1地块3#楼和4#楼有一定数量的居住公寓。具体数据如下:3#楼仅有1个单元,两梯两户,皆为152㎡四室户型,东户2-7层+西户2-6层为大寒日日照不够2小时的居住公寓;4#楼也仅有1个单元,两梯四户,东户3-4层+中东户3-5层为大寒日日照不够2小时的居住公寓。

B2地块未有居住公寓。B3地块尤其关注4#楼和9#楼:4#楼东单元总高7F,其中西户的3-7层皆是居住公寓;4#楼西单元总高16F,其中西户的3-9层皆是居住公寓;9#楼总高24F,其中西户、中西户、中东户三户3-15层共计39套住宅皆为居住公寓。



6、配套学区问题。
据售楼处置业顾问介绍,未来业主的孩子们可能会到中国铁建国际城北侧(丁家安置房南侧)的中小学就读,这所学校未来生源可能包含一定规模的丁家安置居民子弟。
该学校具体签约学校目前尚未最终确定,未来配套学区有一定不确定性。

7、由于中信济南尊住宅位于CBD北部,要关注北部的敏感点。最近CBD北侧东新热电厂要建冷却塔群一事引发了很多业主和购房者的关注。从实际距离来看,中信济南尊距离济南不算太近,但也不远。


8、户型。
前文说到,中信泰富济南尊户型面积跨度较大,建面在103-182㎡之间。B1地块户型有6种,其中152平米四室户型卖的最好,据售楼处置业顾问介绍,首开B1地块2#楼的该户型已售罄。未来B1地块3#楼,B2地块2#楼还有较多该户型,喜欢该户型的朋友可以多关注下。

B1地块4#楼及B2地块3#楼有112㎡小户型,考虑CBD片区小户型的朋友们可以多关注下。
9、B2地块车位很奇怪。
B2地块有一现象比较奇葩:B2地块规划有236套住宅但地块内只规划有164辆停车位,车位比仅为1:0.7。为解决B2地块车位短缺的问题,B1地块及B3地块为B2地块另行配备了车位。未来B2地块部分业主停车后回家可能要走较长距离。

NO. 3|叁
关于该项目的置业建议
CBD是济南未来的经济中心,将来会集聚全省大量高净值人群,正因为此,片区内的房产有一定投资价值。CBD未来无限美好,只是成熟过程可能很漫长。当前CBD东半部分和南半部分商业及住宅项目进展很快,北部和西部工程项目进展较为缓慢。

CBD西半部分空地较多
现阶段参考君并不建议高杠杆投资房产,如果资金充足非常想投资,CBD是不错的选择。但正如参考君上文所分析,CBD片区内住宅整体的宜居性一般,除小街区、挨马路、容积率高、学区配套一般外,未来居住人群不稳定,租客可能较多。

CBD东半部分高楼屹立
针对年龄40岁左右,上有老下有小的改善群体,如果侧重商务商业文体配套可以多关注CBD片区,另建议多考察辅仁、龙洞、汉峪这三个片区。
CBD及泛CBD区域下半年供货量很大,未来有约10家楼盘同时在售。有的楼盘去化很好,有的楼盘销售压力很大。随着中信泰富毛坯产品的入市,下半年片区内的竞争将持续加剧。绿地IFC、华润昆仑御、中信泰富济南尊、现代逸城、伴山居皆有毛坯产品。

参考君特别想提醒大家,买房一定多去工地实地考察,只去售楼处能了解到的信息太片面。可能有小伙伴受限于专业知识有限,即使去了工地也很难全面了解楼盘的方方面面,可多关注济南楼市参考。参考君致力于打碎济南楼市的信息不对称,会定期为大家推出楼盘、片区实地探盘文章,优劣势都会讲到。这种题材的文章非常耗时耗力,希望大家给文章点个“在看”。
客观楼盘测评,专业买房推荐,
楼盘业主维权爆料,通通都可以找我们!
请关注“济南楼市参考”,下面有二维码!
欢迎加入济南楼市QQ群,群号:771768156