臻汇园位于端州东区,在林隐新城旁边,靠近东湖公园,可一眼把东湖尽收眼底。小区内欧式装饰随处可见,犹如置身于古罗马。超宽楼距与富于变化的泛园林景观与住宅空中花园形成丰富的立体绿化空间。与肇庆中学比邻,充满朝气与书卷气,是“孟母”们眼中的理想居住地。
今天给大家介绍的这个案例的业主是臻汇园19栋05户型的业主,与小区整体风格相似——现代欧式,估计业主就是因为偏爱这小区的欧式风格才会选臻汇园这个小区的吧。
臻汇园19栋05户型,建筑面积106㎡,工程总造价约为11.7万,是很经典欧式风格。觉得喜欢的话,装修设计可以找我们肇庆装修头条哦!
小区:臻汇园
建筑面积:106㎡
装修风格:现代欧式
装修方式:全包
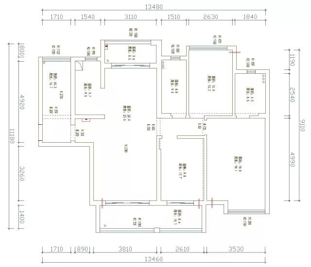
房屋原始结构图

效 果 图




水电施工



瓦工施工




木工施工



油工施工



完 工











欧式风格的设计核心是曲线和弧度的把握,从视觉上形成缓冲,同时也给与人们一种艺术的气息,而且结构上多层次的表现方式让人白看不厌,处处都是显现一种高贵的感觉。设计师还别出心裁地使用了蓝色的窗帘,把地中海的元素融入到欧式风格中,有点新鲜却又不过于跳跃。
卫生间采用了洗手盆在中间的独特设计来作为干湿区分离的隔断,把酒店设计的手法融入到家装中来,是整个设计中的另一个亮点。
今天的案例就说到这里了,如果有需要装修设计的可以关注我们肇庆装修头条公众号,找我们客服啦,我们等您们的到来哦~