【楼盘名称】柏庄官邸
【装修面积】125㎡
【装修费用】12万
【装修风格】现代风格
【户型结构】两居室
【设 计 师】汪琴

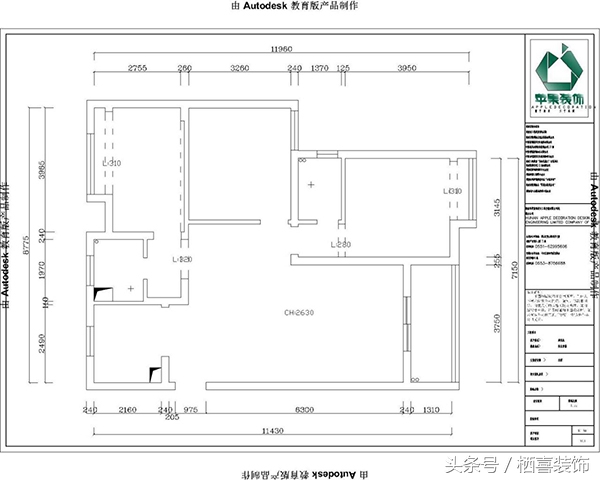
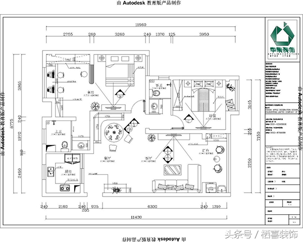
平面设计解析
都市忙碌的生活,针对现代人而言,简单明亮的舒适环境,足以让人消除一天的烦恼。它没有过多繁复的设计,以简洁的造型、纯洁的质地、精细的工艺为其特征,为现代人展现了更温馨舒适的居住环境。现代简约深受年轻人的爱好,本案是为一对年轻夫妇精心打造的,要求现代、新潮、简洁等特点,喜欢明朗宽敞舒适的生活环境,因此这就是设计的初衷。


客厅
客厅的设计富有现代时尚感,空间开敞,内外通透,黑白灰的冷色调加以暖色调的调和,减少了空间的暗沉感,既显精致又凸显主人的气质与品味,简约布艺沙发流畅的线条,简洁的构成,搭配亮丽的抱枕,组成了沙发的主旋律。不经意的装饰品,也极具艺术气息,空间亮点源自于奢华炫目的水晶吊灯,在灯光的渲染下,光影流转,丰富了视觉的体验。

餐厅
餐桌的设计前卫又个性,金属质感的圆桌面与看似沉重的真皮座椅相结合,更富有时尚气息,个性的玻璃吊灯与背景墙设计协调一致,让空间更加的明亮。波西米亚风格的地毯与光感强烈的大理石瓷砖,缔造了一个艺术化的用餐情趣空间。餐厅整体低调但又保持声调,设计师通过想象和情感的融合,独具匠心。

主卧
鲜明的色彩为卧室增加了层次感,没有了拥挤的感觉,看起来反而觉得宽敞、开朗。华丽的暖黄色与卡其色,让房间更加温暖,淡雅的粉红色地毯,营造出慵懒的感觉;而蓝、白等冷色调,则带来了安静雅致的情趣,软包背景墙与左右对称的镜面花纹色调统一,美轮美奂,典雅又不失大气,实现和整个居室的装修浑然一体。

设计师 介绍

姓名:汪琴
职位:优秀设计师
毕业学校:安徽大学
从业时间:五年
擅长风格:现代简约,简欧,地中海
擅长领域:住宅公寓,写字楼,别墅,专卖展示店,酒店宾馆,餐饮酒吧,歌舞迪。
设计理念:把东西合理的利用,为每位辛苦的世人设计一个健康、舒适、安逸的生活环境。
代表作 品:金域华府,国贸天琴湾,碧桂园,华强广场,凤凰城,东方龙城等。