● ● ● 1 ● ● ●
加我微信的朋友如果看我朋友圈会知道,我前几天去成都听观念研究院的吴昊总讲课了,还有很多人找我要笔记,没想到吴总PPT的第一页是这个

:

不过我还是准备把听课的一些感悟整理一下,由于内容实在烧脑,我还在消化整理中。
我今天是想和大家分享两个超高层的项目,容积率超高,比如其中一个容积率为8,高度229米。
在传统的很多文章里,经常下的一个结论是只要容积率很高,建筑很高,就不是好房子,不适合居住,常常宣扬容积率超过3的房子坚决不要买等等。
这种论调过于绝对了,尤其在城市的核心区,低密度的房子不太可能,但最好的资源和配套又在核心区,而且在全国乃至全世界发达国家,有很多容积率很高的超高层豪宅。
其实这种观点太绝对了,很多问题都可以用技术解决,比如速度问题,可以选用梯速非常快的电梯,比如密度问题,超高层的豪宅户型都是很大的,没有想象中的那么多人。
有的项目,一栋楼所有的配套、会所等功能全部可以融合。
过去城镇化过程中城市主导着横向规模扩张;而当发展到一定临界值,在有限土地桎梏下,城市向上发展是必然趋势,未来建筑高度会成为新一线城市主流。
而我去成都偶尔的这两个项目,正是超高层豪宅的典型之作。

● ● ● 2 ● ● ●
项目档案:
案 名:新希望D10
建筑设计:上海联创、查普门泰勒
景观设计:小林政彦事务所(日本)
精装设计:CCD(香港郑中设计事务所)、HBA
样板间设计:梁志天设计所

不知道从哪个项目的开始收费参观模式的,我印象是桃李春风和万科良渚文化村开启的最先收费参观,新希望这个项目如果参观也是收费100元人民币。
位于成都锦江区东大街板块这宗土地,是新希望在2016年6月29日竞得,楼面价9500元/㎡。虽然只有45.61亩但是高达8的容积率,还要配建一栋返迁房,一栋公寓。
我估计这两天新希望会很开心,因为就在昨天,隔壁地块拍卖,楼面价为19800元/㎡,整整比新希望的楼面价一平米高了1万多。

新希望从拿地到产品问世,耗时两年,整改调整产品设计。最终显现出3栋住宅+1栋返迁住宅+1栋公寓的整体规划。
3栋住宅中2号楼高229m,号称中国第一高、亚洲第十高住宅(数据截止到2019年6月30日);6号楼公寓共61层,总高227.8m。

在45.61亩地块中,5栋高层建筑物,最高达229m。采光时长、视线干扰成为设计一大难题,D10的解决办法是,建筑物交叉式布局,三塔(最高三栋)分离式布局。
除了光线格局,“颜值”依然是项目评定的第一道工序,新希望D10建筑设计出自查普门·泰勒事务所之手。

外形取意中国古代重要礼器之一——琮,与帝都“中国尊”相仿。
为区别建筑属性,3栋住宅外立面全部采用玻璃铝板打造,公寓则全玻璃幕墙。
这样一来,项目在不脱离东方神韵,同时追求“去住宅化”理念,以及整体颜值上释放“水晶”的通透之意。
即使在多年后建筑形态不断变化革新,该项目同样能够在中国摩天大楼中不落俗套。

微观方面,以玻璃为立面主建材的“晶状体”,每层四角延展处为阳台空间,全封式阳台收口采用弧形曲面设计,最后形成V字形切面,侧视线体明朗;仰望,宛如花蕾绽放。不同视角的观感差异性,这才是建筑语言的追求。

公寓平面结构示意图
全落地窗的设计,更是充分利用朝向对应城市景观,并借鉴特殊结构处理手法:公寓、住宅都采用框筒构造,景观面无剪力墙设计。

4种户型有个显著特点,在保证卧室面积同时,D10重头定义客厅格局,将更多空间留给动区,这也满足高端商务人群对会客的一种诉求。

坐落在客厅,无边界视觉效果,置身于229m天际高度,搭配270°的环幕视角,舍内与天空无限对接。
于是越是高楼层住户,越容易看到触碰城市天际线,也实现超高层业主买到天空的愿景。

通常项目自身地段、产品设计是项目成功基础要素,而来自外界资源占有元素是评判项目稀缺性的依据。
D10除了高度上实现与云端并肩以外,还有一重惊喜便是将杜甫“窗含西岭千秋雪”意境融入现实。

近能俯瞰蓉城万家灯火璀璨,远能目睹川西高峰,皑皑白雪。
据说该项目精装报价约6000+元/㎡。含新风、中央空调、全智能家居、智能家电、双开门冰箱、内嵌式洗衣机、灶具、卫浴、衣帽间,无地暖。
据说D10的业主服务端,被新希望全权委托给“五大行”来管理。甚至连公区翻新时间、频率、家具更换时间等服务细节,都进行合同约定。
另外值得一提的是,新希望花费1个亿小目标建设的营销中心——Casa Lotus,也是未来的业主会所,绝对堪称艺术品级惊艳,如今已经成为圈内外成都又一“打卡地”。

这个仅拥有5864㎡景观面积的展示中心,主建筑形态灵感来源于绽放的莲花,花瓣耗费878张双曲面玻璃,每一瓣玻璃的造型和弧度都需要单独定制,据说最长花瓣达40m,未来将作为艺展中心(会所)使用。

多重回环型曲线流动设计,如同海螺纹路般,回旋式上升,取义*四代第**立体建筑,巧妙表现出“斐波那契”建筑美学。

地上平面空间通过植被与路径的结合,塑造出曲水流觞的境地。

立体空间,通过下沉式建筑结构,结合景观描述来体现自然界中竖向场景感受,以此来展示*四代第**建筑城市花园的即视感。

整个建筑形态,空间勾勒过程中,重复利用硬朗的切面与曲线造型,将工业风同范艺术结合。站在不同视角,融入视线内的水、光、云、风、花、谷等元素,总能勾勒出一幅循序渐进的完整画面。

在平面整合、空间构造,在建造过程中,将人行动线设计同景观走势保持规律性,让整个行为动线更顺畅切不重复。
如果D10是成都住宅天际线,那么接下里蔚蓝卡地亚中心CEO公馆则是现阶段成都公寓的“珠穆朗玛峰”。
● ● ● 3 ● ● ●
项目档案:
案 名:蔚蓝卡地亚中心CEO公馆
建筑设计:SCDA 曾仕乾
室内设计:TCDL陈建中、GA Group
灯光设计:新加坡PLD
建材品牌:美诺、泰诺健、杜拉维特、汉斯格雅、斯麦格、科勒......

蔚蓝卡地亚中心CEO公馆由3幢超高层建筑组成,塔楼高度为248.8米(66层)、216.2米(61层)、和236.6米(67层)。其中,三座摩天大楼中最高塔楼的顶部共17层空间为Andaz安达仕酒店,底部独栋为国际会议中心。

三栋超高层建筑,立面虽各有不同但是却形有相似。都显现出向上延伸的凭借状、构成错落有致的城市建筑语言,彰显出SCDA曾仕乾作品标志性的“模块风”。

曾仕乾作品:康桥美庐湾
SCDA 创始人曾大师,是一位“建筑模块化”狂人。现场聆听过,大师对自己设计思想的阐述,基本所有作品都基于模块演化。
通过空间组合,实现建筑与自然沟通。
曾大师表示:在做蔚蓝卡地亚规划时,优先遵循保证场地与湖区的连续性,建筑沿着折叠景观的脊骨线错落有致的排列,在湖区与景观之间形成无缝的联结。

从外部观看,直线条的立面修饰更加商务范。自下而上笔直延伸,让项目演绎出化繁为简的建筑格调。

未来由内向外展望时,室内空间同天府中央公园、龙泉山等自然景观链接一起,为居者带来比肩云端的视觉感受。

除了打造极具视觉震撼建筑风格,与案名“CEO公馆”相匹配外,高端商务性同样伸延至室内环境。

大堂效果图
陈建中大师领衔的装修设计团队,采用冷色系装饰室内空间。利用黑白灰的色调铺陈整个大堂空间,配合栏栅造型分割的光线,带来环环相扣的层次感。

电梯厅效果图
商务范与极简风的搭配,侯梯厅不需要任何繁杂修饰元素,一切装饰元素都崇尚简约化和线条感。

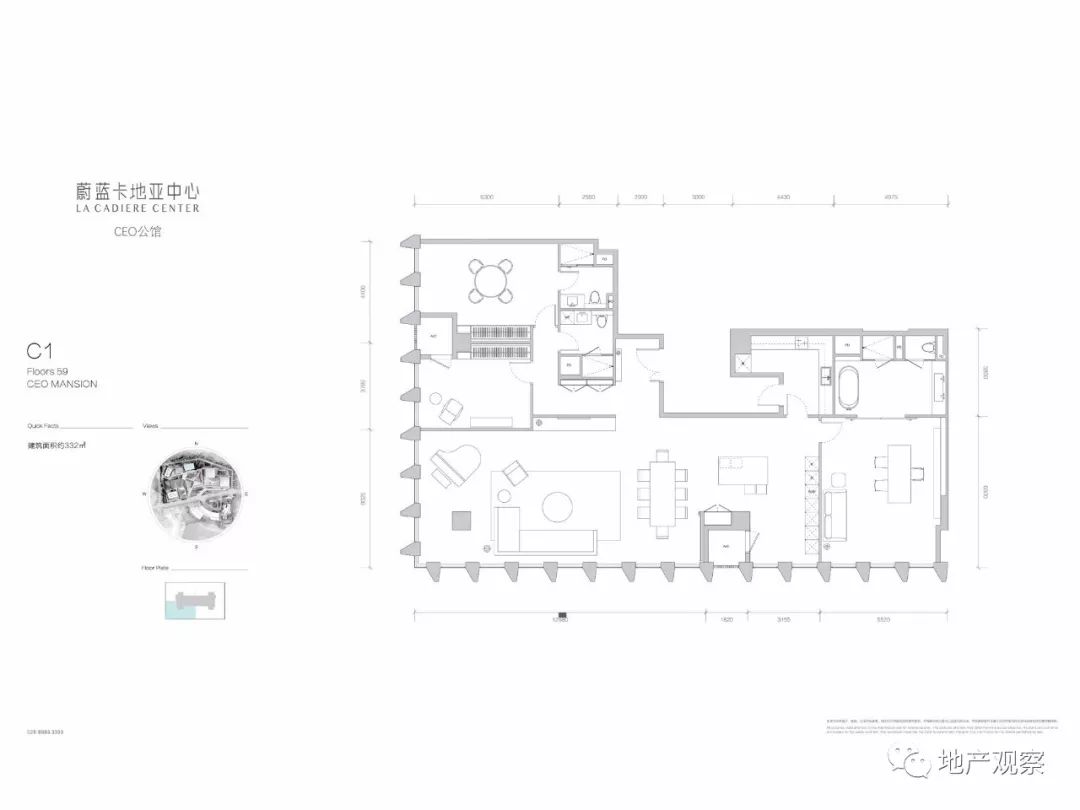
332㎡户型
追求商务属性,突出动区决定生活格调,是这种定义圈层客群项目的共同诉求。新希望D10如此,蔚蓝卡地亚CEO公馆同样如此,留足私密空间基础上,将更多场地释放出来,打造商务人士私家会客厅。

虽然是大户型,由于是超高层建筑,加上对空间简约化和视线的放纵性,所以设计之初就秉承尽可能减少墙与区域阻隔设计,让空间使命更“放肆”。
只不过有时“视觉”也会骗人,让室内空间显得更加宽阔,也许并不需要一个真正的大空间,增加共享空间的行走动线同样能达到此效果,也就是通常讲的“洄游动线”。

图片源于:一起设计
在蔚蓝卡地亚中心CEO公馆 LDK的户型格局中客厅是一个巨大的共享空间,在这里没有设计隔断。

通过“岛台”弱化餐厅与客厅边界,令空间更加开阔,因此侧面视线动区空间宛如一个整体。

样板间实景图
装修材料基本源于美诺MIELE、泰诺健Technogym、杜拉维特Duravit、汉斯格雅Hansgrohe、 斯麦格SMEG、科勒KOHLER这些国际一线品牌
不同于D10主要还是住宅属性,蔚蓝卡地亚中心CEO公馆走的是纯商务范,所以特别强调会所这部分功能。

会所效果图
每栋楼都配置专属会所,内涵泳池、健身房、瑜伽室、咖啡馆、图书馆、影音厅、多功能派对房等功能。

CEO公馆的商务属性,除了体现在上部空间的Andaz安达仕酒店,同时还体现在底部空间的独栋裙楼——国际会议中心。

坐落在底层的国际会议中心,同样是极简风建筑设计,所有切面造型都呈极简单的线性几何状。

同时在开敞的共享空间上,不规整下层建筑的加载,在顶部塑造出起伏有序的景观界面,而国际会议中心就是这律动空间的焦点。
写在最后:
超高层建筑,从设计之初,就别于其他建筑技术要求。建筑结构、审美高度、避难层、供电系统、乘用电梯、防火设计等工程环节都有更多严格的硬性规定,施工难度也是倍数增加!
一般而言,超高层比普通高层建筑的施工成本增加30%—40%,这是一项巨大挑战。
但超高层的意义,远不只是一个高度,更是一个城市发展尺度。
作为城市的高度名词和地标节点,如果你们城市有这样一个作品,你希望会是什么样子?或者希望哪个房企操刀?
备注:本文 内容整合于实地探盘,图片部分源于自行拍摄以及项目官微、一起设计、景观行等网络平台。未做商业用途,如有侵权请联系删除。
