2015年的项目:是在美丽的厦门环岛路边上的一套别墅,不是家住,而一家婚纱摄影店铺!
工程未按时交付给美女业主,让她们错过了旺季,损失不小,主要原因双方都有!反正施工路上,双方都不满意,业主要增加项目,工程款又不到位,让整个工程活生生的延期。。。
下面来看看效果图吧,反正我自己是不太满意,但装修出来后的效果还是很不错的,我现在已经没有实景图了,因为当时用手机拍了一些,后面手机没有内存就删掉了实景图。我只能去他们店铺的官网看看,刚好他们还拍了几张,下面大家看看吧!

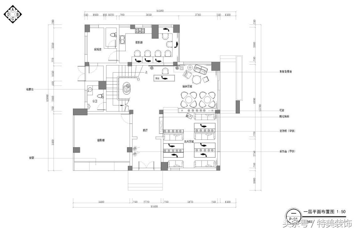
一层平面布局
效果图只做了一层的,所以其它两层的平面图没有弄上来

夜景效果,原始外原本就是这样的,只是加了几个广告字而已

前厅效果

入户效果

接待区效果

前厅实景,我从她店铺官网裁的图

二楼的男装区

二楼婚纱区
整个实景效果还不错,大家怎么看!