HDD
办公环境设计专家|把办公空间设计交给最懂你的人

黑白中的色彩空间
工作与生活的交融器
设计师携手创意地产品牌,倾力打造针对年轻人的全新立体社群-佛山兆阳O立方青年联合体。

“创想空间”位于这座超高层建筑的顶层,也是青年联合体计划的重要组成部分。

01.工作&生活
工作与生活,一个老生常谈的话题。
生产手段的改变及效率的提高借助高速网络的介入,使我们“工作”与“生活”的界限变得越来越模糊。

被“碎片化”的时间要求单一空间不仅要具备功能的灵活多变,甚至要求各种生活及工作场景同时存在于其中。

02.「私密」与「开放」
日趋成熟的高速网络环境及终端科技,在重头定义着传统意义上的“私密”与“开放”。

物理上的“私密”及网络上的“开放”渐渐成为年轻人们的新常态,生活如此,工作更是。

03.「有色」与「无色」
“效率”永远都是组织一个工作场景的核心,如何诠释“效率”则成为了营造各类工作场景的关键。

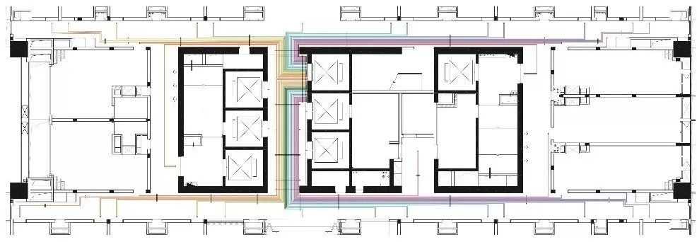
“彩带”即为“无色”空间里的视觉点缀,也是带领“到访者”最快速的到达“目的地”的导视系统。

04.「粗」与「细」
不同的材料的“密度”在同一光环境下塑造出截然不同的空间氛围。

位置:广东省佛山市禅城区朝安南路52号/Location:Foshan,China
规模:1450平方米/Area:1450M2
项目时间:2018/Projectyear:2018
HDD·办公设计
HDD办公设计成立于1999年,立足广州,服务全国,专注办公、文化、展示空间设计。08年HDD办公设计与美国建筑设计事务所合作成立总部办公设计事业部,在美国设立OFFICE,提升了公司的国际化设计服务能力。
HDD办公设计谋求与客户长期互惠的成功。许多500强公司与全球领袖企业需要一个理解他们策略并能帮助他们实现其商业目标的公司与之合作。璜朝与许多客户保持着近十年的合作关系。
HDD办公设计以“最具价值的设计成就公司在行业的领先地位”为设计理念,是中国室内装饰协会团体会员、IDA国际设计协会团体会员。走品牌经营之路,致力于提供全面室内外装饰设计、投标策划及工程项目管理等专业服务。
团队/核心
