【装修小区】大汉希尔顿
【装修面积】145㎡
【装修风格】美式风格
【设计理念】美式风格色彩偏深、偏暗,该风格元素不仅具有文化感与贵气感而且不失一种浪漫情调。其自在、随意的不羁生活方式,不经意中也成就了另外一种休闲式的浪漫,因业主是一位年轻美女且与父母同住,所以在设计的时候比较注重文化与情调的结合并且满足业主对美式历史的追求。

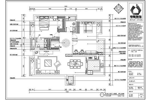
户型解析
① 主卧增加了两个衣帽间,充分合理的利用了有效空间;
② 衣帽间使用了百叶门,便于遮阳与通风;
③ 主、次卧的飘窗设计增加室内面积,改善室内采光。


客厅
仿古砖的电视背景墙更突出了美式的文化感,因为业主偏爱美式的历史,故仿古砖与木制品的完美结合更能凸显出浓重的历史韵味。

餐厅
餐厅里延续着客厅的主调,深色的木质墙体与美式标志搭配着吊扇灯与木艺餐桌椅,没有过多的装饰,显得自然而温馨。

卧室
每天回家后卸下疲惫,回到温馨的卧室,舒缓一天的疲劳,简单的线条手法,通过硬装的层次吊顶,与床头背景墙互相辉映,简洁的家具利落有致,整体色调突显沉稳与温馨。
