
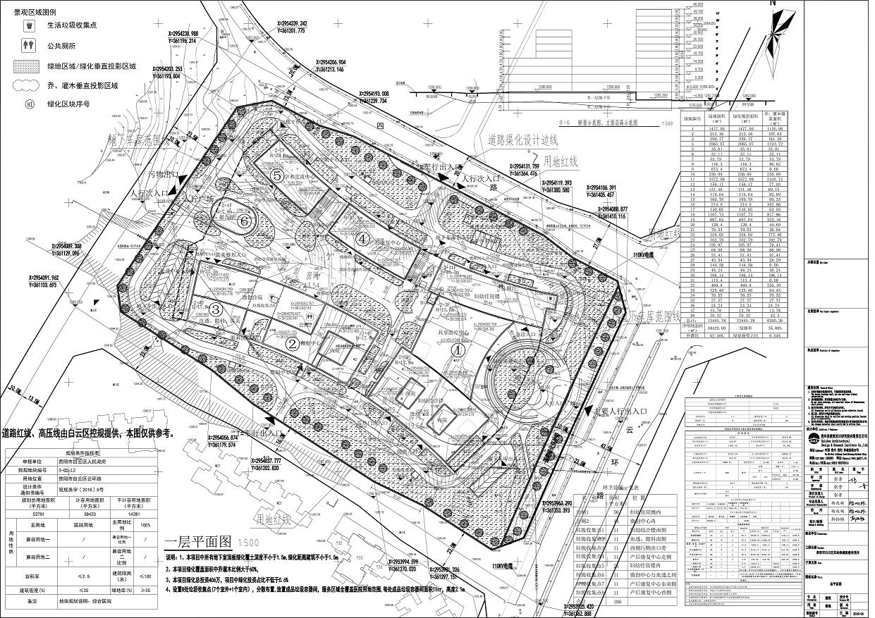
乐居买房讯4月1日,贵阳市自然资源和规划局发布贵阳市白云区妇幼保健院建设项目建设项目政审审批前公示。申报单位为贵阳白云泉福医疗投资管理有限公司 。

据公示,项目位于白云区云环路西侧,总用地面积52701平方米,其中可计容用地面积38419.96平方米,不可计容面积14281.04平方米,绿地面积13507.58平方米,绿地率35.16%。

总建筑面积97324.5平方米,计入容积面积63878.77平方米,共7栋建筑,建筑密度为25%,容积率为1.66。最高建筑高度为46.3米,最高建筑层数为11层。规划床位300个,规划停车位690个,其中室内685个。

计入容积率建筑性质分为门诊用房36441.2平方米,住院住房2271.62平方米,生活服务用房3990.08平方米,行政管理用房734.92平方米。建筑编号为1#-8#,建筑命名依次为1#妇幼保健院、2#微创中心、3#眼科、医美、血透中心、4#产后康复中心、5#学术交流中心、6#报告厅、7#一层地下室、8#二层地下室。

本次调整建筑1#楼的地上层数由原来的12层调整为11层,4#楼的地上层数由原来的10层调整为9层,地下层数由原来的地下1层调整为地下二层,25#楼的地上层数由原来的9层调整为8层,地下层数由原来的地下1层调整为地下二层。

据了解,白云区妇幼保健院项目目前已经开工建设,今年3月份白云区方面曾对项目建设进度进行考察,提出在保证安全和质量的前提下,加快施工进度,力争早日建成、早日投入使用。该项目建成后,将惠及周边多个小区居民,补齐区域内妇幼保健资源的短板。
>>直达第二届春季线上房交会会场
【购房资讯轻松享,快来关注乐居网】
文章来源:乐居买房
优质内容推荐
- 土地月报|3月贵阳卖地获71亿,环涨4107.69%!棚改仍为市场主力
- 开盘快讯丨贵阳上周三个项目开盘,成交551套,整体去化率77%
- 总建面逾22万方,配建12班幼儿园!万科麓山B区规划曝光