
前言
江苏:简称苏,包含13个地级市。2020年GDP总量首次突破十万亿,约10.3万亿,在全国仅次于广东,2020年常住人口约8474万。
超高建筑:又称摩天大楼,在中国大陆,建筑规范规定100米以上高度的属于超高层建筑。
南京:简称宁,是江苏省省会,有 六朝古都,十朝都会之称 。
苏州:简称苏,2020年GDP总量约20171亿元,位居全国城市第6名,是我国GDP总量最多的地级市。
正文
江苏作为中国古代文明的发祥地之一,拥有“吴”“金陵”“淮扬”“中原”四大多元文化及地域特征,自古经济繁荣,教育发达,文化昌盛, 共拥有13座国家历史文化名城。这么厚实的基础为当代的建设也提供了必要的基础条件。改革开放以来,江苏经济长期位居我国前列,这为城市的现代化建设提供了动力。摩天楼作为地标建筑,是每一座积极向上城市的追求,2010年,当时的世界第七高楼绿地广场.紫峰大厦建成,标志着南京进入超级摩天城市行列。在江苏不光城市建摩天楼,在无锡江阴的华西村,村委会就投资超30亿,于2011年打造了一座高达328米高的华西增地空中新农村大楼(现更名为:龙希国际大酒店),这在当时是无锡市的第一高楼。

华西村摩天楼
展望未来,超级建筑依然是最受关注的焦点地点!下面就为大家介绍引领江苏未来高度的十座超高层项目,详情如下:
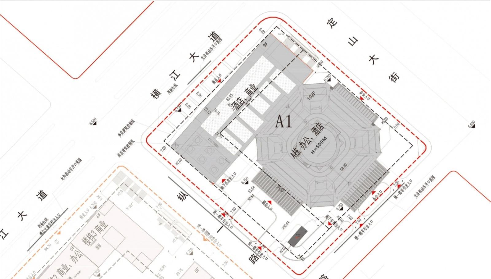
项目一、南京——江北国际金融中心

坐标:江北新区核心位置
项目高度:499.8米
项目楼层:102层
项目设计:美国SOM

项目地块2017年由绿地90亿拍得,当时要求,此地块建设江北第一高楼,塔楼设计上充分利用南京地方文化元素,将拱形结构造型,运用到大厦的内外部设计当中。


项目平面图

项目现状
完成底板浇筑


项目二、苏州——中南中心

项目坐标:苏州工业园区金鸡湖中央商务区
高度:499.15米
项目建筑设计:美国Gensler
项目开发商:中南集团
项目开工/完成:2019/2026

项目设计方案以“垂直园林城市”作为核心设计理念,建筑造型灵感来源于苏州传统文化中蕴含着的传统形制及大巧若拙的工匠精神。

整体造型方中带圆,极简现代的同时又具有当地文化特色。顶部设计形态以苏州市花——“桂花”为形,以“取蟾宫折桂之势,彰苏州盛世繁华”为寓意,通过开放的姿态与苏州文化、周边环境优雅而友好地完美结合,与苏州中心片区遥相呼应。生动的体量关系,强化了人与自然、人与建筑的关系。



项目剖面示意图

项目现状
核心筒已经出地面


项目三、南京——金茂河西鱼嘴金融中心

坐标:鱼嘴金融集聚区核心位置
主塔高度:499米
项目设计:Adrian Smith + Gordon Gill
开发商:中国金茂联合华润、平安不动产

总占地面积约16万平方米,总建设体量约86万平方米。项目拟规划建设一栋约500米高的超高层5*级A**写字楼、两栋分别为220和350米超高层写字楼在内的大型城市综合体,将引进3家及以上银行、证券、保险金融机构省级总部,打造成为集办公、商务、购物、文化娱乐、社交、休闲多功能复合的城市新地标。

其顶部宏伟的360°露天观景台将成为世界上最高的观景台之一。

项目现状
前期施工中

项目四、苏州——昆山——建滔昆山中心

坐标:昆山市中华园路南侧、黄山路西侧
主塔高度:480米
开发商:建滔地产
项目将是昆山未来的第一高楼,综合体总投资近100亿元,除480米主塔,还有二栋近二百米高的副楼和商业附属。
更多项目渲染效果图


项目现状
待基础施工中

项目五、苏州——中海苏州地标塔

项目坐标:苏绣路以南、星阳街以东
拍卖地块名称:苏园土挂(2021)01号地块
项目开发商:中海
项目规划高度:460米
项目地块价格:6.48亿

概念渲染效果图
本项目由央企中海打造,这也是继成都后,中海第二个超400米的摩天楼。与中南中心南北相呼应,建成后的湖西CBD天际线将更具层次感。拿地后的中海,进行了苏州地标塔设计方案的展示,以下是展出的方案效果图。





项目六、南京——绿地广场.紫峰大厦

项目坐标:鼓楼中央商务区中山北路1号
项目高度:450米
项目楼层:89层
项目设计:美国SOM
建成时间:2010年

项目建成时,是当时江苏第1,中国第4,全球第7高楼!它的建成也标志着南京进入全球摩天城市行列。建筑最大的特点在于塔冠结构,设计别致的桅杆天线继承了那个时代主流摩天楼风格。


项目七、苏州——九龙仓国际金融中心(IFS)

项目坐标:苏州工业园区湖东CBD商圈核心区域
项目高度:450米
项目楼层:92层
项目设计:美国KPF

本项目与南京紫峰大厦目前并列江苏第一高楼!大厦设计充分挖掘苏州历史和城市印象中重要元素——“水”元素,整体采用“鲤鱼跳龙门”之“鱼”作为象征主题,寓意繁荣昌盛;大楼面向金鸡湖,迎水展开,如鱼尾般曼妙的弧线,从水面沿裙房一直延伸至主塔楼,是苏州城市天际线的至高点。



项目八、南京——奥体苏宁广场

项目坐标:河西CBD
项目高度:419.8米
项目楼层:99层
总面积: 约46万平方米
项目开发:苏宁集团

项目将由美国设计大师墨菲扬主导设计,整个大楼设计为“陆地之舰”的形态。

项目平面图

项目目前前期待施工态势
项目九、南京——金融城二期主塔

项目高度:417米
项目楼层:88层
项目设计:gmp建筑事务所
项目施工:中建四局
项目总投资:约100亿

德国设计师用简约而不简单的BOX风格设计方式来为南京显现一座超级地标!


项目现状
核心筒已至地十余层

项目十、南京——金鹰世界A座

项目坐标:建邺区
项目高度:368.1米
项目楼层:76层
项目设计:华东建筑设计研究院
项目建成:2019年

项目由三座超高层组合而成,其中A塔为南京已建成的第二高楼。同时项目还是全球最高的非对称三塔连体建筑,亚洲最大的购物中心,是南京重要的城市地标建筑之一。


结束语
很遗憾 ......!江苏省未来前十大超级摩天楼将被南京和苏州包揽,这与广东的情况相似,都是两座龙头城市引领摩天建筑!希望无锡、徐州、南通等等城市未来给我们带来惊喜,改变两强格局!
欢迎广大网友发表评论,喜欢本文的朋友, 点个赞,加个关注 ,可以获取更多的摩天大楼信息。谢谢!
注:本文数据与图片出自
CTBUH官网
高楼迷论坛
严禁一键复制本文,转载需注明出自——*今条头日**创作者:摩天世界