我家位于广州天河区一个看似普通的三房户,周边围绕着地铁三号线(林和西、岗顶、华师),可以说是见证了广州的经济发展,有着得天独厚的地理优势。
周边的迅速发展,十几年的过往,它开始与周边格格不入。斑驳脱落的墙面、陈旧掉落的装饰、吱吱作响的木地板等等,它出现了和所有“老破小”一样的问题。出于对高品质生活的需求,我在朋友的介绍下找到了 轩怡装饰 ,决定重头改造装修,并选择了整装服务。和设计师周彩霞周老师沟通后,我将我对新家的假想告诉了她: 三代人的家,要求现代,简约,舒适,储物空间多 。
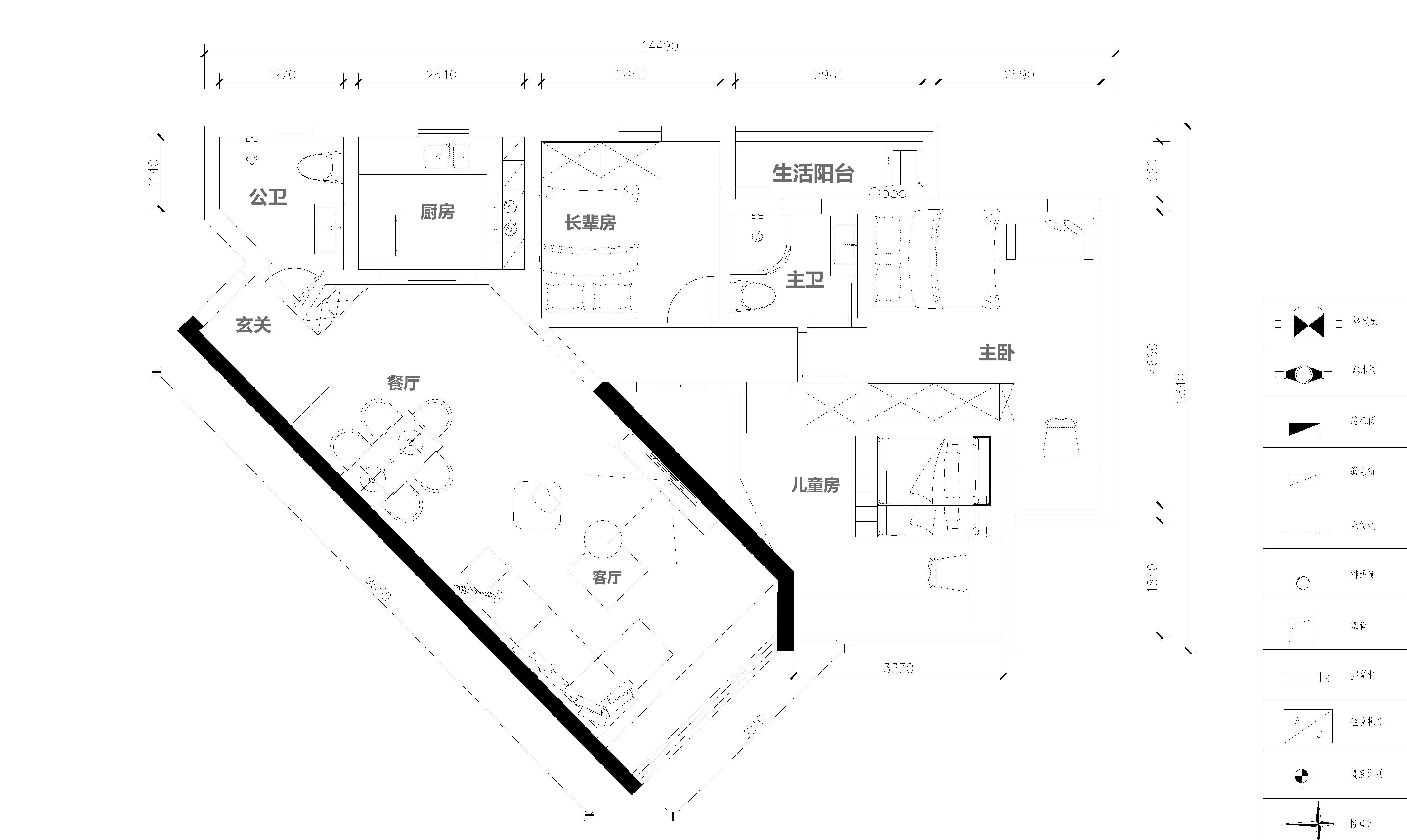
从原始平面图,即可看出房子最初结构:
1、不规则,异型户,空间锐角比较多;
2、入门直通客厅,形成“开门见厅”的尴尬。

在设计师周彩霞周老师的改造下,新家有了变化:
1、针对客厅不方正的问题,设计师为了遮蔽空间棱角,采用弧形吊顶的方式,让空间体感更圆润舒适;
2、玄关设计包括L型收纳+栅栏屏风,做了视觉格挡,又不影响玄关采光;
3、因户型梁位比较固定,以及原有空间划分得当,并没有对空间过多改动。只是在收纳储物、空间利用率、使用便利性等方面进行了细节调整,使其更加贴合我的生活习惯与需求。

根据装修前后对比图,一起来欣赏我的新家。
玄关
改造前,玄关处吊灯设计带来视觉累赘,门框与饰板的木色陈旧,整体给人感觉有点压抑。

改造后,空间敞亮通透,瓷砖地面铺上地毯,回家仪式感满满,也不用害怕鞋底泥沙乱跑并伤害瓷砖,清扫打理方便。
原有入户空间不大,加上空间布局难以更改,最终通过定制柜的方式实现对收纳空间的需求。
柜体没有满铺,留空与留白的结合:底部放置日常鞋子,中空位用来放一些日常使用的小东西,留白的设计手法则是让相对局促的空间显得轻盈不压抑。


本着物尽其用的原则,玄关隔断采用收纳柜与金色栅栏的结合的方式,将隔断收纳变为餐边柜,增大设计实用性。

深色柜体与金色的雅韵,颇有轻奢风的精致,而栅栏偏向中式风的造型,符合我们传统的感情寄托。


公卫
改造前,因为空间布局较为尴尬,开门进来左边就是公卫。卫生间装饰也很老旧,色调暗沉,墙面发霉,简直不堪入目。原户型在牺牲舒适度的基础上追求干湿分离,空间狭长局促,加上暗沉的“土黄色”、累赘的大理石洗漱台盆...一切都显得过时老套。


改造后,受空间结构的影响,卫生间放弃干湿分离的设计,采用大通铺设计,让整体空间更加宽松大方。淋浴与如厕区斜面布局,尽量降低水渍飞溅的烦恼。
通铺到顶的瓷砖增加马赛克风格的腰线点衬,不锈钢置物架,电镀花洒套件,共筑生活的美好。


改造后,轻盈的成品浴室柜和空间完美契合,搭配简约风镜柜,颜值与收纳空间都得到极大地提升。镜柜与补光灯的组合,为日常洗漱打扮创造了精致顺心的环境。银色龙头嵌入白瓷台盆,空间看起来明亮透彻。


餐厅
改造前,从玄关到餐厅一览无余,毫无隐私感,奇怪的镂空式吊顶容易藏污纳垢,厨房门边突兀的格栅收纳,更容易积灰。


改造后,设计师在入户玄关到餐厅的位置增加了镂空隔断。收纳柜承担起餐边柜的功能,金色栅栏形成背景墙的层次感,对区域进行划分的同时,又增加了室内空间的安全感。
原来累赘奇怪的收纳被拆除,成为摆放柜式空调的地方。原来厚重结实的背景墙装饰也被拆除,改为简约轻盈的装饰。


客厅和餐厅形成敞开式大空间,视觉通透。餐桌为现在流行的岩板材质,和素雅的配合白色墙面搭配,大方得体。现代风的创意吊灯,暖暖的灯光让温馨感更加浓郁,贴合现代简约风的空间主题。令我欣喜的隔断设计不仅为生活带来隐私感,也让餐厅的收纳需求得到满足。


厨房
改造前,厨房历尽沧桑,空间没有得到充分利用,随处都是清晰可见的污垢。色调整体一致,以前的设计也很注重细节,但现如今已不能符合我的审美与生活需求。




改造后,厨房采用经典黑白搭配,时尚简约。黑色门框的厚重质感,让我感觉很安全。

厨房是大工程,改动地方很多。
首先优化了空间采光包括灯光,给到厨房明亮安全的使用环境。橱柜设计,依据厨房L型结构,设计的上下两层储物柜,大大提高储物能力,油烟机也随着科技进步,进行全包遮蔽处理,在实用的基础上提升颜值。


从原房型的设计结构,可以看出洗衣机也摆放在厨房,一来占用了原本就不富足的厨房空间;二来与整体使用环境冲突。最终我们决定将洗衣机从厨房挪出去,与厨房相邻的生活阳台,仅用来洗衣晾晒。
我选择了松下嵌入式全自动抽屉式8套洗碗机,为生活带来极大的方便。
适合自己的才是最好的,我依然倾心双槽水池,配搭软硬水,生活简单美好~


客厅
改造前,斑驳发黄的白墙、突起破损的木地板、陈旧的装饰,土气、破旧感铺面而来。原有设计很注重视觉体验,白墙上增加了木饰板背景墙,但整体连接给人感觉过于生硬,色彩比较浓重。原有飘窗位采用了与玄关一致的设计手法,大面窗户美景也难以遮盖它的突兀。



改造后,空间通透明亮、轻盈别致。整个空间,映入眼帘的是灰色与白墙的素雅,再以跳色单人椅点缀,搭配玄关格栅的精致,透露出别样的清新优雅。平日,我坐在这里品茶看电视,与家人朋友聊聊天,笑声回荡,很是惬意~

客餐厅采用一体设计的圈式吊顶,将空间拉直,同时边角位以弧形过度,进一步降低空间墙角的尖锐感,搭配800*800的地砖,让整个空间看起来更加整齐透亮。吊顶嵌入射灯,搭配隐藏灯带,丰富视觉层次感,带来亲和感。

大面封窗带来舒适、明亮的采光,也会带来室内隐私性不强的困扰。窗台换铺大理石,选择一款薄纱窗帘搭配,在满足透光性的同时还遮蔽室内活动。
大面封窗的敞亮确实很吸引人,但是我也要考虑室内安全,尤其作为高层户。飘窗增加了一道黑色护栏,风车造型的格栅避免生硬感。

整面墙定制的电视柜,依托吊顶与墙边,实现了嵌入式的平整视觉,也免去了平时藏灰的尴尬。按压式柜门简洁方便,满满的高级感。拼色提亮设计,收纳格以封闭搭配开放,再以玻璃柜点亮,不仅颜值出众,储物力更是max。
中空开放柜整体预留较大,除了适用现有电视尺寸,也为后期生活做了留白。置入摆件,搭配玻璃书柜,满满的生活气。


长辈房
长辈房没有拍改造前的图片。
长辈房空间不大,以物尽其用为主,而且老人房的设计更要以简单舒适为主,不必有过多装饰,为视觉及生活制造障碍。
改造后的长辈房,重头粉刷墙面,白色的干净爽朗,瞬间唤醒了空间活力。木纹砖与白墙的经典CP,空间立体而有层次感。1.5米的床靠墙摆放,搭配小床头柜,就能满足日常生活所需。空间有限,床尾直接与拼色衣柜接壤,尺寸刚刚好,不影响彼此之间的使用。
门后置入小挂钩,可以挂放随身物品,尤其是冬天的外套,这也是老人多年的生活习惯。


主卧
改造前,主卧入门采光比较压抑,布局也不合理,空间没有得到充分利用,却看着很紧凑。


改造前,原窗台搭建收纳柜形成飘窗的空间视感,搭配悬吊柜,也算实用,但是岁月的痕迹与色调已经不符合我的审美。

主卧没有进行太大更改,基本延续原有空间格局,采用白墙+木色地板的搭配,整体风格和谐敞亮。变化最明显的是背景墙,简单刷漆,配合高大的床靠,造型简约有质感,凸显空间功能主题。新衣柜依旧是到顶设计,但色调更轻盈,配以金色线条拉手的精致简洁,没有视觉臃肿感。


窗台收纳被拆除,释放出空间的轻盈,整体采光更加敞亮。书桌与斗柜的配搭,墙面也设计了吊柜,收纳空间得到极大地提升,满足我办公或梳妆打扮的需求。

主卫
改造前,卫生间原户型给人感觉杂乱暗沉,老式大理石台盆,四处堆放的生活用品,一半马桶还塞在洗漱台下,感觉相当拥挤。

改造后,我首先去除了浴缸,要求干湿分离。地砖墙砖统一色彩,湿区隔断区分明显,管道预埋进墙,空间看起来整齐透彻,干净宽敞。

洗漱台位置重头规划,不再是靠窗的拥挤,简约风成品浴室柜搭配镜柜的组合,极大地丰富卫生间储物能力,归纳生活的小零碎。


儿童房
改造前,儿童房原房型是一个多边形的异型结构空间,棱角比较多,而且影响采光。


改造后,减少突兀感,使空间更规整。
入门处的阶梯错层墙,是通过定制储物柜的情势,将墙面拉直,填补了原房型入门处的棱角。上下床的多功能布置,满足业主生活计划,也节省空间,为孩子的学习娱乐区留出空闲。


床边学习区,简单的收纳分区可以满足一些常用物品的存放,顶部已经被孩子用来摆放自己心爱的手办啦~配合房间其它储物空间,也能给孩子一个舒适的生活学习环境。书桌靠床摆放,是考虑到现在孩子作业繁重,我也可以坐在床边陪同辅导孩子学习。

楼梯的上下方式,虽略占用地方,但整体安全性更高,阶梯也可以延伸成抽屉式收纳,给孩子的玩具等提供收纳空间,锻炼孩子的生活能力。

窗台重头铺贴大理石,搭配白墙,整体敞亮清爽。窗帘选择了蓝色清爽,配搭可爱的图案,很符合儿童房的空间格调。
跟客厅一样,窗户增加了护栏,让家居环境更加安全。大飘窗也没有浪费,成为父子俩切磋才艺的地方,或者享受阳光的静宜,一家三口沉浸在欢乐世界,美哉。

部分装修信息:
室内面积:98㎡
房型结构:三室两厅两卫
装修风格:现代简约风
装修费用:全包20万
浴室柜:法恩莎
木门:TATA
瓷砖:金舵
地板:MK
软管:安得巧
阳台门:恒品门业
设计施工:广州轩怡装饰
编辑留言:
大家好,我雄大,感谢杨小姐的来稿件,看完她的故事,我认为老房焕新不仅是居住环境的提升,更是一种对更高品质生活的美好追求。轩怡的设计师告诉我:“从开始的老客户推荐,到初见量房、方案沟通落定到现在的入宅大喜,这期间少不了沟通与磨合,渐渐与业主处成朋友关系,希望能够尽力做到最好,给业主给自己不留遗憾,让生活对一些周全。”
整个房子的设计装修或许没有那么吸引眼球,没有所谓的“网红感”,但家是用来住的,不是用来给别人看的,相信杨小姐对这次装修是满意的。
如果你是在北京、上海、广州、深圳、南京、长沙、武汉、成都、济南、哈尔滨、天津、杭州等城市地区的业主要找设计装修公司。 也欢迎私信与我联系,我会帮让值得信赖的设计装修公司与你联系。