合肥巴黎都市105平装修案例 (滁州装修效果图现代简约风格)

【小区名称】国贸天琴

【装修风格】现代简约

【装修理念】简约不等于简单,它是经过深思熟虑后经过创新得出的设计和思路的延展,而不是简单的“堆砌”和平淡的“摆放”,不是粗浅的“黑白”。

苹果装饰实景案例合肥国贸天琴的现代简约装修风格

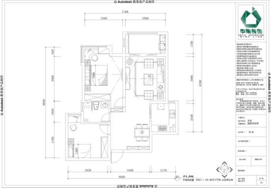
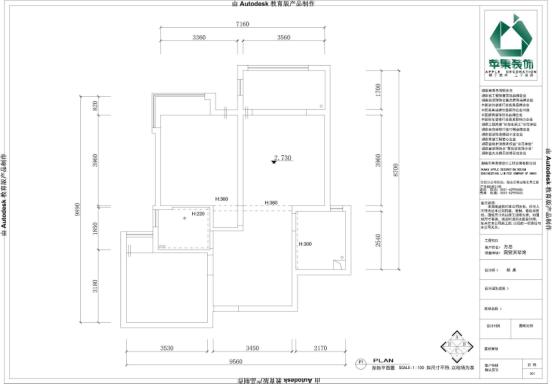
户型解析设计篇

①厨房采用平开门增加了空间利用率,让空间变得舒适,宽敞。

②主卧的阳台,将墙体打通,做了一个飘窗,休息的地方就应该充满着浪漫温暖的气息。

苹果装饰实景案例合肥国贸天琴的现代简约装修风格

苹果装饰实景案例合肥国贸天琴的现代简约装修风格

客厅

简约装修风格要素在于黑白为主色调,代表着心灵的纯净与美好,搭配上时尚元素的吊顶,这也是现在的年轻人爱不释手的原因。

苹果装饰实景案例合肥国贸天琴的现代简约装修风格

卧室

人在家中呆的最久的一个地方,所以颜色不能显得那么的明亮让人一致紧张的地方就不能够达到休息的目的,暖色调的房间,伴随着缓慢的音乐,浪漫的气息充斥着整个房间。

苹果装饰实景案例合肥国贸天琴的现代简约装修风格

餐厅

快节奏的都市生活,让年轻人越来越爱上了简约的生活,但简约不代表着简单,简单没有多余的装饰,而在于把不多的装饰用在精妙之处。

苹果装饰实景案例合肥国贸天琴的现代简约装修风格