
是新朋友吗?记得先点蓝字关注小克哦~
金地格林云上
空港芯,地铁口公园旁,智能全装修美宅

-
位于空港新城核芯,临空经济重要承载区
-
主干道通达,距离13号线艺术中心站(约300米)
-
与310亩空港中心公园仅一路之隔
-
优质名校、品质医疗、国际商业全配套
-
100-143㎡三房/四房 小高、洋房产品
-
容积率2.0 , 公摊14%-21%,纯 粹低密住区
项目概况


1.区位

位置: 项目位 于西咸新区空港新城板块,围绕西部地区最大的空中交通枢纽西安咸阳国际机场重点发展临空经济,打造*四代第**国际空港城市。
产业: 空港新城规划面积144.18平方公里,定位发展临空物流、国际商贸、飞机维修等产业,区域目前已有13家航空企业总部入驻, 建成后将成为国内规模最大的航空企业总部和高端航空人才聚集区。8个产业项目已落地,发展形势良好。

交通: 机场直线距离2.5km,3条快速干道,沣泾大道、福银高速、泾渭大道30-40分钟车程连接主城区。公交站线目前覆盖3条,距离已开通的13号线艺术中心站,步行距离300m。地铁12/16号线亦在规划建设中。
2.配套

学校:社区自带约5000㎡品牌幼儿园、规划建设中空港实验学校(直线距离1.2km)、空港枫叶国际学校(已开学,直线距离约1.5km)
商业: 赛特-奥特莱斯机场店(已开业)、空港T5航站楼站前城市综合体、富力自贸区免税店区、崇仁路中央商贸区
医院: 延安大学咸阳医院,未来区域规划三所三甲医院,分别为空港国际医院(距本项目直线距离约1.2km)、西安交大第二附属医院秦汉分部、四医大医疗基地
公园: 与310亩空港中心公园仅一路之隔,毗邻210亩城市绿肺公园
3.基本信息


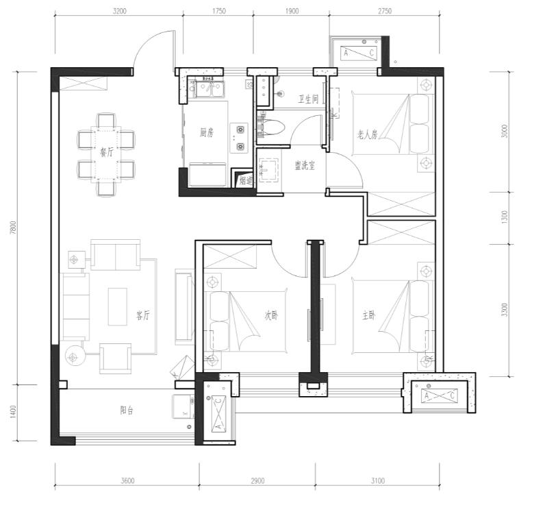
户型

小区楼位总平图

100㎡-118㎡户型平层图(2T4户小高层)

130㎡户型平层图(1T2户洋房)

143㎡户型平层图(1T2户洋房)

100㎡户型详解
户型点评: 项目中面积最小的户型,总价可控,三房两厅一卫,南北通透,餐客一体增加了使用空间。南向大采光面, 保障日照充足。主要空间面宽/进深≈1.1,户形方正,公摊<21%,作为小高层产品的中户,该户型设计很合理。
缺点:仅有一个卫生间

118㎡户型详解
户型点评:舒适三房,南北通透,三室两卫,餐客一体有助于后期空间规划,走道很少,提高了空间利用率。明厨明卫,且位于西侧,无遮挡,通风较好,小高层产品,公摊率仅20%。
缺点:两卧室在北侧,整体户型进深较长

130㎡户型详解
户型点评: 户型方正,南北通透,南向采光面宽约11米,北向采光面约8米,3房两卫,主要空间开间/进深≈1.1。主卧进门的衣帽间设计将主卫与主卧有效分离,并且起到隐私保护的作用。餐厅部分区域面积约16㎡,除过走道空间,实际利用面积较大。公摊率约15.3%
缺点:动静分离有瑕疵

143㎡户型详解
户型点评: 南北通透,三房朝南,南北通透布局方正,是130㎡户型的扩大版,整体更宽敞舒适。卧室空间可变,书房可改成儿童房,公摊率14%
缺点:动静分离有瑕疵

精装


部分样板间示意图

130㎡户型厨房

130㎡户型餐厅 客厅

1 3 0㎡户型卧室

118㎡户型厨房

118㎡户型餐厅 客厅

118㎡户型卧室

100㎡户型餐厅 客厅

100㎡户型卧室

100㎡户型卧室

同时,项目屋内配备智能家居,用科技改善生活
环境景观

规划理念
科学规划社区空间,丰富功能区域,景观、建筑设计均贯彻实用性,南高北低,考虑采光的同时打造优美天际线,中轴线大尺寸中央花园营造拥抱自然的氛围,整体简约现代的格调塑造更优质的活力社区。


建筑风格
建筑设计由深圳库博建筑设计事务所承揽,设计从功能出发,简约有力。建筑单体外立面采用真石漆与石材两种材质,深灰色低调奢华,米白色简洁大气,同时搭配浅蓝色玻璃,整体外观现代大方,彰显品质。

景观设计

有趣的设计,一条能量环跑道,贯穿四个主题园,森林主题元素+玩呗系统,从老人到孩子的主题乐园。


楼间绿化形成郁郁葱葱的景观组团,充分体现着社区与自然的结合,利用多样的植物围合成静谧的修葺庭院。色彩丰富的玻璃投射出彩虹的光影,为林间增加活泼的基调。

健康跑道,全程500m,细心设计为慢跑段/快跑段/趣跑段,途中设置运用加油站可临时休息,跑道涂鸦标记增加运动过程里的趣味性。

羽毛球、乒乓球、运动器材,丰富的功能分布让鼓励社区住户通过运动去社交,为健康充电。


太空兔主题乐园+社区农场,亲子时光不再无聊,可爱的卡通形象让孩子沉浸其中,家门口的自然教育,和父母亲手播种蔬果,使用小机械灌溉植物,让大自然成为孩子最好的玩伴。
配套商业
内部配建3.3万㎡block商业街区,为社区注入活力,引入亲子主题,提升居住便捷度。



测评雷达图


测评总结:
金地格林云上所处位置为空港新城,目前处于发展区域,从区域已入驻的产业看,3年内区域人口及配套会有很大改善。交通方面快速干道的通畅保证驾车到达主城区只需半小时,已开通的13号线距离项目300米,项目的交通优势明显。该项目距离机场距离约2.5KM,噪音影响是本项目的一个劣势。
目前区域生活配套不够,医院、商业距离本案都有一定距离,商业方面项目内部配套3.3万㎡BLOCK商业街区未来可得到改善,根据区域规划空港截止于2021年将在区域内完成几所中小学的配建。
开发商、物业公司均为金地集团,房屋质量及未来服务有坚实保障,整体建筑设计现代感强,住宅单体建筑主色调米白色+深灰色,外立面采用真石漆、石材两种材质,搭配蓝色玻璃,凸显住宅品质,外观有别于市场其它产品。绿化园林方面,虽然项目整体规模不大,但是可以看出设计方面的细致用心,健身区、亲子区域、景观设置充满了趣味性,满足全龄段需求。
户型方面设计优良、得房率高是本项目的亮点,户型皆为南北通透,小高层公摊近21%,洋房公摊约15%左右,与市场近期产品比较表现突出。户型设计南向大面宽,最大程度保障了采光,从具体尺寸看,空间设计合理,浪费很少,130㎡、100㎡两个户型可以重点关注。
免责声明:本号致力于分享有价值的内容,转载引用仅为传播更多信息之目的,信息源自互联网,如涉及侵权请联系我们删除,谢谢!

克而瑞
长按二维码关注公号
周一至周五新鲜房产资讯

克而瑞成立于2006年,通过十余年淬炼,克而瑞从行业数据到客户数据,实现了房地产大数据闭环。克而瑞拥有地产、资管、证券、物管、租赁、科创六大事业部。服务业务覆盖一手住宅、二手租赁、资产管理、建筑建材、证券研究、物业管理研究等领域。设计研发线上产品有CRIC系统、投资决策系统、数据营销系统、场景化大屏、栅格土地评估系统、租赁系统、CPA数据库、SPEC品牌库等。资管信息服务产品秋实链、易楼、资产数据库。为大量房企提供全面可靠的决策依据。
目前克而瑞已经成为中国领先的泛房地产领域的大数据服务商,作为核心客户的房企百强的覆盖率达到95%以上。客户总规模更是超过1000家,遍布于房产,金融,商业等各个行业,并同时为政府提供相关的决策数据。