【楼盘名称】城南春天
【楼盘面积】131㎡
【装修费用】14.8万(全包)
【装修户型】四室一厅两卫
【装修风格】现代简约风格
【设 计 师】向文伟
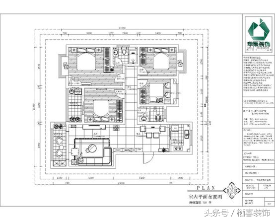
平面 户型分析
1、这是一个四房一厅的居室,客餐厅结合让不大的空间更显宽敞,更有利于行动的自由;
2、满足了业主对卧室相对独立的空间要求,在每个卧室添加了衣柜,方便了生活又带给人一丝温馨;
3、与其他设计不同的是,生活阳台设计在父母房一侧,为家中老人考虑了生活的不便。

客厅
黑白相间的电视背景墙,白色抛光砖地板,熠熠生辉的水晶吊灯,展现了业主心中始终向往、愿倾尽一生呵护的温暖港湾,家具色调的清新,造型的简洁都是通往心灵空间的完美诠释。

餐厅
餐桌椅采用的是精简的元素,表现出了清新与文雅,并在客餐厅相连之处添加了白色储物柜,暖心的设计集设计师的奇思妙想与业主的生活内涵于一体,让现代简约风格表现得淋漓尽致。

更多装修案例请关注:栖喜装饰官网