最近有不少粉丝和叔咨询“万科蓝湾传奇怎么样?是地铁房吗?”类似的问题。说实话,这个项目的位置确实不错,也确实有规划地铁经过,但也存在一定的问题,大家理性看待。
项目概况:
项目位于晋源区南中环街与新晋祠路交汇处西南角,总面积64609平方米,共规划8栋住宅楼,总规划户数1526户;容积率4.2,绿化率35%,车位配比1:1,物业公司为北京万科物业太原分公司。
区位点评:
项目所在位置北侧是长风商务区,南侧是晋阳湖,东侧是汾河公园,周边中高端小区非常多,居住环境和自然环境都比较不错;从《太原市长风城市发展与更新示范区整体规划公示牌》中来看,该项目位于长风商务区和晋阳湖公园的视觉通廊上,紧挨标志景观,周边环境会越来越好,发展潜力较大。
交通评价:
自驾交通
项目北侧是南中环街,东侧是新晋祠路,西侧和南侧规划有生活道路,距离滨河西路不到900米,出行非常方便。

轨道交通
项目紧挨规划地铁3号线和地铁6号线的交叉口,属于地铁房,但地铁何时落成还是个未知数。
公交出行
项目门口有两个公交站,途径多趟公交,公共出行还是比较方便的。但部分公交高峰期非常拥挤,不太好等车。
人居环境:
该项目周边的配套设施是比较完整的,北侧1.3公里是长风商务区五大场馆和长风广场,南侧1.4公里是晋阳湖公园,东侧距离汾河公园不到1公里,日常的休闲、娱乐、运动等需求都可以满足。

距离该项目最近的大型医院是山西白求恩医院(山西大医院),直线距离3公里,驾车15分钟,乘坐公交40分钟,就医还算方便。
商业配套:
项目距离万象城1.6公里,距离长风·国贸第六馆1.9公里,南侧是规划中的滨水商业街和休闲购物乐园,商业规划完整,购物比较方便。
教育资源评价:
该项目配建一所幼儿园和一所小学,基本教育需求可以满足。
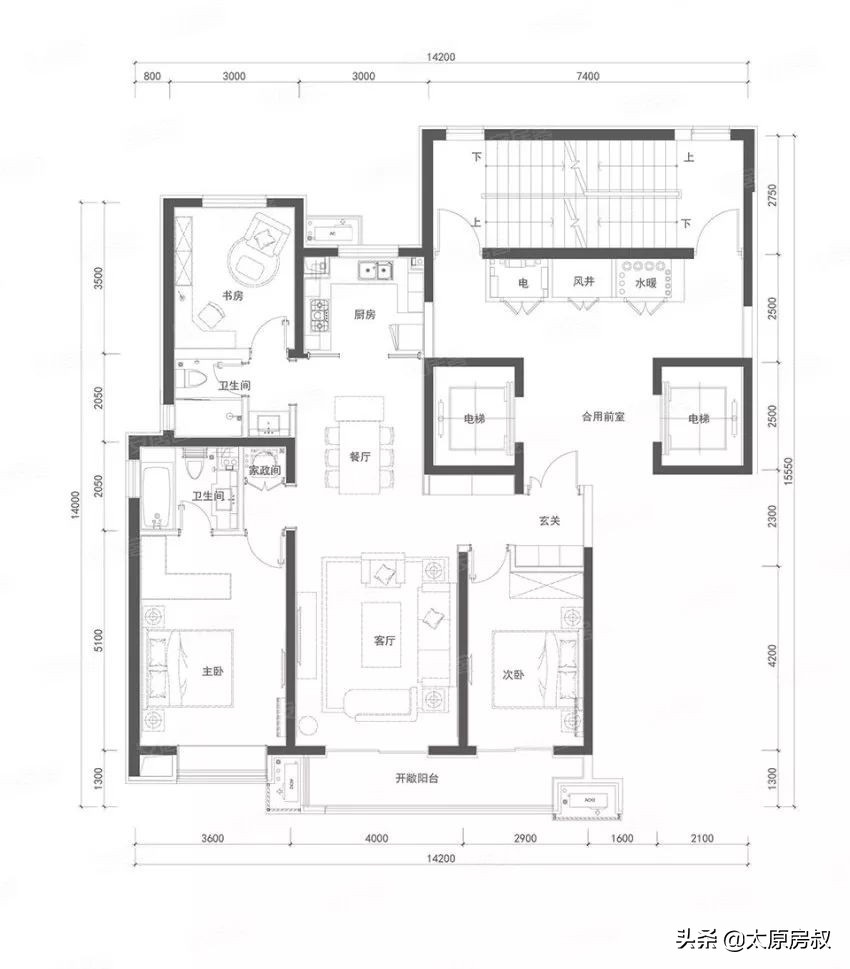
户型评价:
该项目户型面积88㎡-169㎡,以三室中户型为主,户型通风采光普遍较好,全部一梯一户,户型私密性非常好,精装交付。
两室88㎡户型,两室两厅一卫。户型两面朝阳,主卧和客厅的采光较好,北侧有防火连廊,次卧的采光差一些;卧室有通风死角,户型整体的通透性不是太好;卫生间干湿分离,居住便利性还可以。

88㎡户型, 2室2厅1卫1厨, 建筑面积约88.00平米
三室125㎡户型, 三室两厅两卫。三面朝阳,南北通透,次卧和客厅带互通式阳台,通风和采光情况都比较不错;主客区域划分明显,户型私密性高;卫生间干湿分离,属于全明户型,各方面都比较好。

125㎡户型, 3室2厅2卫1厨, 建筑面积约125.00平米
三室145㎡户型,三室两厅两卫。该户型分边户和中户,户型差距不大。同样三面朝阳,全明户型,次卧和客厅带互通式阳台,采光比较好;卧室的通风情况不太理想,整体通透性不够;南侧次卧距离次卫比较远,家政间正对主卧门,主客区域交叉,生活便利程度和居住舒适度都不算太好。

145㎡户型边户, 3室2厅2卫1厨, 建筑面积约145.00平米

145㎡户型中户, 3室2厅2卫1厨, 建筑面积约145.00平米
四室169㎡户型,四室两厅两卫。该户型三面朝阳,属于全明户型,次卧和客厅带互通式阳台,有三个采光面,室内采光非常不错;卧室有通风死角,户型通透性不强;户型功能区划分的问题与上一个户型一样,舒适度和便利程度都不算高。

169㎡户型, 4室2厅2卫1厨, 建筑面积约169.00平米
价格评价:
项目已开盘,起价13400元/平米,小户型价格在14500元/平米左右,大户型价格超过15500元/平米。该项目叔比较推荐三室125㎡户型,该户型的通风、采光、户型设计、电梯位置都要优于同项目的其他户型,改善型购房者或是预算比较充裕的刚需都可以考虑。
施工进展:
该项目已经取得了预售证,预计交房时间在22年11月30日。