戳上方订阅蜗牛,关注实时动态,了解施工近况,装修事宜~我才不会告诉你底部有粉丝福利呢~~~
◆装修地址:徐州市润金城御园
◆户型面积:3室2厅1厨1卫103㎡
◆装修风格:典雅小美风格
◆主案设计师:李达
◆装修总预算:精装样板房8万
◆装饰公司:徐州市领航装饰
本案例业主是三口之家,装修事宜主要是女方负责,因为男业主平时太忙。交流初期,女业主就向我诉说了她的需求,比较喜欢美式风格,但是预算和户型有限,所以打算做的不要太复杂,家具也早已看好,喜欢的砖也是灰色系等等,总的来说,这位女业主对家还是期待非常高的,也是很有生活品味。

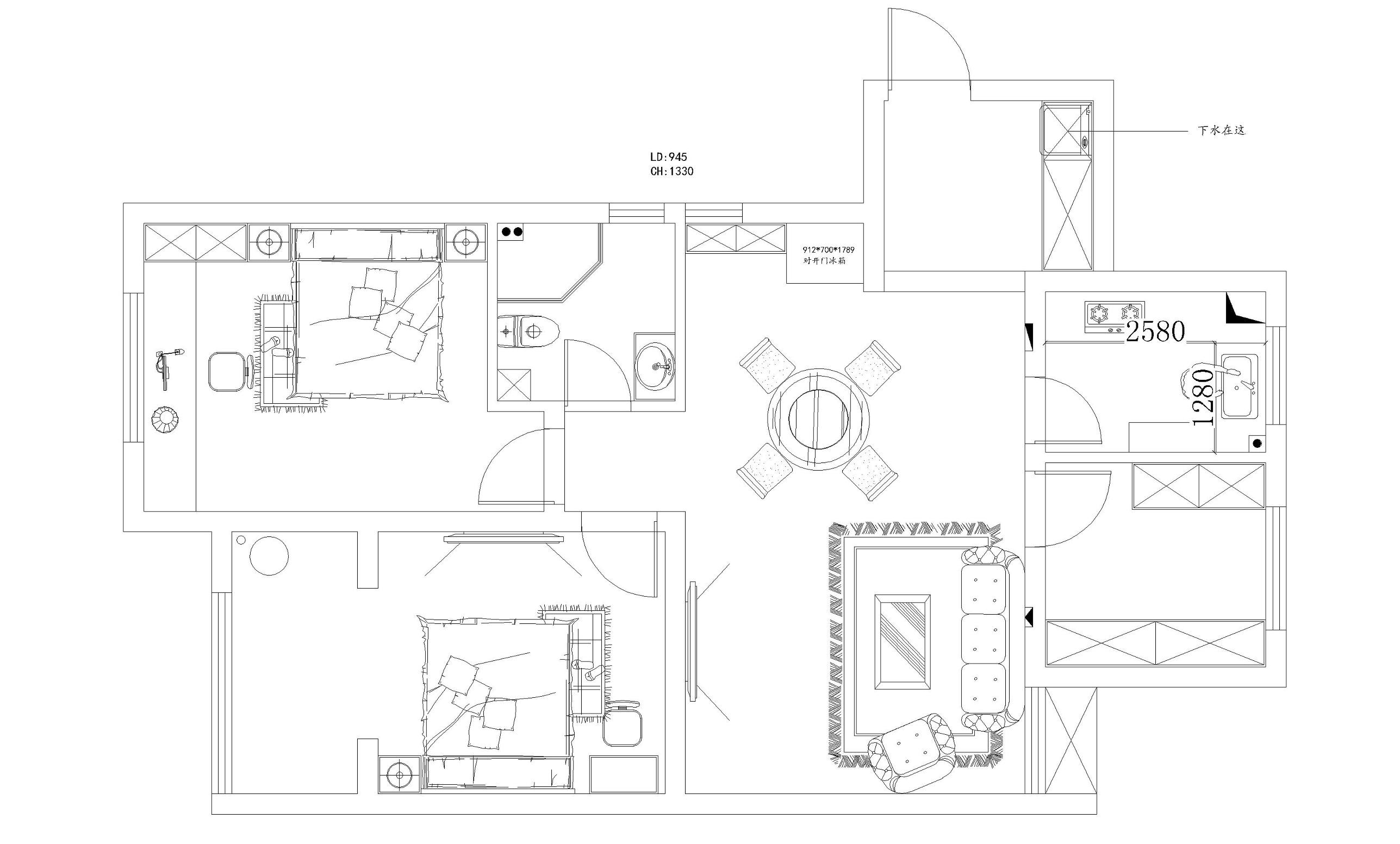
▲平面布置图

▲客厅沙发灰色系仿古砖,搭配上重色的沙发,沙发上用不同颜色的抱枕点缀,使得不太单调。
拿本小书,半倚在沙发上,打开落地灯,柔和的光线照射在纸面上,看着文字在纸页上跳动,幸福到忘记整个世界。

▲电视背景墙

▲餐厅,圆形的餐桌,旁边是双开门的冰箱,还有一个矮柜,既可以储物,也可以在上面摆放一些自己爱好的装饰品。

▲家,可以不大,但要足够温馨;家,可以不豪华,只要有你就足够;家,可以不一见钟情,但要经得起时间的打磨。

▲这一生,有一个温暖的小窝,有一个爱你、不离不弃、陪伴你一生的人,足矣。
----------------------------------------------------------------------------------
福利1:添加设计师微信:15996949043,免费装修咨询
福利2:全景360度,稍后上线,请关注蜗牛