
区域评测:西市区

区位图
西市区,昆明发展较早的区域,整个区有着较完善的配套。
交通:地铁三号线,全线于2017年8月29日开通运营。
教育:高新片区教育资源丰富,师大附小、高新一小;师大附中、高新一中,昆明市第十四中学,云南师范大学商学院、理工大津桥学院等等。
医疗::云大医院高新医院(规划,三甲);云南省急救中心;云南省口腔医院;云南省血液中心;昆医附一、二、三院(三甲)等
商业:西城时代、嘉悦购物公园、金钻广场、正大风尚广场(家乐福)、沃尔玛等
整个区域离市中心约5-7公里,与市中心距离相当于北市区霖雨桥区域,南市区官南、大商汇区域。
对比昆明目前较成熟的区域,西市区区性价比还不错,离市区不远、价格不高(相对距离市中心差不多距离的南、北区域)、配套完善。
因西市区区发展较早,区域人气较旺且稳定,区域居住人群多数为昆明本地人和昆明常驻人口,所以区域也有着较强的稳定购房消费群体。
【区域评测指数】

项目评测:公园壹号

视频加载中...
项目航拍(叫兽制作)




项目位于西山人民西路南,华苑路与昆州路交汇处,项目东侧人民西路兰亭广场、地铁口,南侧德缘小区,西侧马街摩尔城方向,北侧春雨路、兰亭上锦、眠山公园。

楼栋分布
项目总占地79亩,共11栋住宅,1所幼儿园,绿地率40%,2T6户设计,容积率4.6,面积77-135㎡,均价15000-16800元/㎡。
容积率4.6,容积率不低,叫兽认为这个容积率在西边处在佳兆业、南边官南大道位置、北边俊发城位置算正常(离城相对较近),西山脚下,本身项目位置处于弱势,容积率上还没啥优势。
容积率上胜过同门兄弟金地玖悦府的5.0,算是优势。
项目占地不小,且中庭留了部分空地做绿化,这一块对比同一条路上的佳兆业、玖悦府,略有优势。

楼层平面图
项目连廊设计,电梯设计中间,也就是之前写过的连廊户型中最差的一种,端户回家必经连廊的设计,中户北侧的隐私完全没有保障。关于连廊设计的分析这里不多说,完整的文章可以关注我的公众号点击干货区查看,项目从面积段、容积率、连廊设计等方面分析,项目定位纯刚需。
【项目评测指数】

配套评测

1、交通评测
公共交通101路、181路、Z119路、258路、268路、Z17路、115路、185路、6路、7路、151路,距离地铁3号线500米,自己出门人民西路、春雨路,通往城区、郊区都方便。
2、生态配套
门口即是眠山森林公园,自驾5分钟到达宝珠生态公园、融创文旅城的湿地公园。
3、教育配套
项目自带幼儿园,签约春苑小学,中学规划中(具体名称待定)。
4、商业配套
门口即是沃尔玛、兰亭广场。
【配套评测指数】

户型评测
PS:户型图正下角带颜色的标识就是户型的所在位置,户型评测时,叫兽会根据所户型所在位置去评测中端户、采阳、朝向等。

▼
面积:中户100㎡,三房两厅两卫
优点:动静分区、三开间朝南、无浪费空间。
缺点:缺一生活阳台晾衣不便,连廊户型北向隐私差。

▼
面积:端户130㎡,四房两厅两卫。
优点:动静分区、无浪费空间。
缺点:阳台设计在次卧晾衣不便、端户级别无玄关、客厅朝东日照不够。

▼
面积:端户115㎡,三房两厅两卫。
优点:客厅大阳台大横厅设计、无浪费空间。
缺点:动静不分区、缺一生活阳台晾衣不便、客厅朝东日照不够。

▼
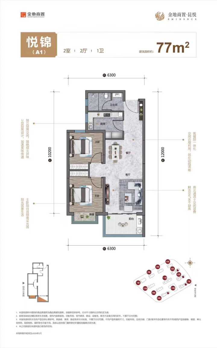
面积:中户77㎡,两房两厅一卫。
优点:无浪费空间。
缺点:原本就是小户型还设计玄关---浪费、缺一生活阳台晾衣不便,连廊户型北向隐私差。

▼
面积:端户100㎡,三房两厅两卫。
优点:动静分区、无浪费空间。
缺点:缺一生活阳台晾衣不便、客厅朝西采阳差。

▼
面积:中户88㎡,三房两厅两卫。
优点:无浪费空间。
缺点:缺一生活阳台晾衣不便、南边次卧二次采阳、连廊户型北向隐私差。
【户型评测指数】

综合评测
户型:大小、中端户型设计都很一般,本身定位刚需,130㎡做四房,88㎡做三房,实用,同时也只能将就。
地段:离市区7公里、地铁口、楼下有商业,对比离城同距离的其他区域,配套齐全,价格适中,刚需可以考虑入手。
温馨提示:

金地源自深圳,无论刚需还是豪宅经验都很丰富,无论是房屋质量、产品设计、物业服务等口碑都是靠前。
但因为金地商置这块地接手广电集团,所以物业聘用广电之前聘用的物业——和融物业。
和融物业大家可能不熟悉, 金地商置昆悦周边的部分项目就是聘用此物业,例如:广电之前开发的兰亭上锦,还有金地兰亭广场对面的西府景苑。
小唐对此物业也是陌生,今天下午特意去实地考察。
安保:外来人员,小区随意进出。
绿化:绿化维护较差,树木杂乱无章、不显眼处枯藤、老树、枯叶,草坪平乱无整。
公共卫生:地下停车场、楼道、电梯间,卫生较差,部分区域因未及时清理,已留下难以去除的痕迹。
关于物业一事,我也咨询过金地内部人员,
低头回答叹气道:拿地不易,且行且珍惜。
关注头条号《昆明楼盘评测》,
我这个头条号每周给你一篇楼盘评测干货,《昆明楼盘评测》等你来撩哦!
亮出你想让叫兽评测的楼盘,另外教你怎么选地段、户型、选房等购房指南。从事昆明房地产销售8年,买房不要只是竖着看,让我横切开给您看。谢谢
点击下面文字“了解更多”,昆明楼盘都为您准备好,回复您想看的楼盘就可。