西安康桥悦蓉园主力户型为96-161平3室-4室,价格待定,容积率2.8,预计2020年11月30日1-3#、7-10#楼交房。
西安康桥悦蓉园

购房咨询热线 400-818-5005转37969
一、深度分析
1、配套 ★★★★★
1) 交通:西安康桥悦蓉园地处航天城的京东大道与飞天路交汇的东北角,航拓路以南,飞天路以北,地块东临航天城二期,属于航天经济技术开发区,周边科研单位众多。地铁4号线飞天路站距离项目不够一千米,步行大约需要十分钟;距离项目最近的公交为906路,附近还有239路、217路、525路、178路等,不管是地铁还是公交,都可以保证基本的出行不受影响。

2) 商业:西安康桥悦蓉园自带17000m²商业综合体及5927m²社区底商,北侧紧邻航天城中心广场,西侧的居然之家航天城店已投入运营。距离项目约3公里处就是金辉环球广场,附近还有富力城、英郡年华、高速紫禁长安、航天城小区等小区底商,可以满足基本的衣、食、住、行。

3) 教育:西安康桥悦蓉园自建8000㎡的康桥幼儿园,位于小区东南角,规划30个班,每个教师160平米,设有独立洗浴间、午休室等;项目北侧有在建的航天第一中学(设有初中部、高中部),东北侧有航天第一小学,西南侧有航天城第一小学分校(在建),周边还有航天城二小,交大附中航天校区等学校,教育资源相当丰富。

4) 医疗:西安康桥悦蓉园周边医院众多,向东约1公里处有新建的西安市人民医院,向西约3公里处有西安航天总医院,东北方向约6公里处有西北妇女儿童医院,三个医院都不算太远,开车的话10-15分钟均可到达。
2、宜居 ★★★★☆
西安康桥悦蓉园容积率低至2.80、绿化率高达40%,一级物业资质康桥物业
西安康桥悦蓉园东北方向约1公里处有个明秦王世子遗址公园,南侧约1.5公里处有航天基地中湖公园,2.3公里处有星河运动公园,总体上说,小区周边环境宜人,公园众多,方便业主休闲娱乐。

3、性价比 ★★★★☆
西安康桥悦蓉园是康桥地产进入西安市场的第一个楼盘。2002年,康桥集团在郑州成立,2018年,康桥地产获“中国房地产开发企业100强”第83名。据了解,该项目不管是开发商还是物业,都备受好评,楼盘更是逢开必摇,是长安区内实打实的网红热盘!

该项目是以郑州康桥悦蓉园为项目原型打造的,整个项目总占地约124亩,约82700平。总规划为15栋住宅和一栋商业综合体以及一栋幼儿园组合而成。地块的西侧是四栋高层,东侧为10栋洋房和1栋小高层,地上总建面约23万方,容积率不高于2.8,绿地率为40%以上,总住户为1538户,小区实行人车分流,地下车位为2201个,并还配有一些的充电车位。

二、区域点评 ★★★★☆
西安康桥悦蓉园地处航天经济技术开发区,周边科研单位众多,与航天城一中、一小仅一路之隔,项目虽行政归属长安区,但是却可以享受一部分曲江成熟配套和发展红利,未来发展潜力巨大,值得期待。

三、户型 ★★★★☆

96平三室两厅一厨一卫
户型方正,三面朝南,全明采光
三面朝南,客厅、卧室公用超大阳台
U型厨房,方便使用,卫生间干湿分离,使用互不打扰

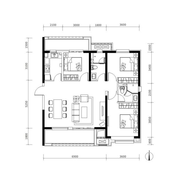
129平三室两厅一厨两卫
户型方正,南北通透,全明采光
客厅餐厅、卧室厨房设有南北双向大阳台,居住舒适
主卧带飘窗,带独立卫生间,使用互不打扰

四、编辑点评:
1、着急买房:针对着急买房的人来说,该项目临近地铁4号线,周边公交可满足基本出行,附近学校众多,本次推出的户型有96平户型,比较适合刚需购房者。
2、观望买房:针对观望买房的人来说,该项目所处的地理位置较好,区域热度较高,小区开发商及物业口碑都不错,但是小区房价在整个区域来说并不算亲民,买房还需实地考察,多多比较,再做决定。
3、投资买房:针对投资买房的人来说,小区属于低密高品质住宅区,自住较好,投资的话,成本较高,而且目前地铁4号线已开通,楼盘的升值期已缩减,建议谨慎投资。