收口的意思是材料交接处的施工工艺,装饰收口是通过对装饰面的边、角以及衔接部分的工艺处理,以达到弥补饰面装修的不够之处,增加装饰效果的目的。

处理方式:
(1)45度切角过渡:我们将两块瓷砖都进行45度角的处理,然后对角贴上。不过在施工时大家一定要把水泥填实,如果里面是中空的,瓷砖角很容易被碰碎。另外倒角一定要贴规整,否则将来会有裂缝。相对来讲,用这个方法来处理瓷砖腰线阳角比较考验施工的水准。
(2)瓷砖用阳角线:阳角线又叫阳角条,能够在瓷砖的90度凸角处形成保护、装饰的作用,我们通常会采用不锈钢、PVC或是铝制护角条进行包边处理。瓷砖用阳角线价位中等,施工比较方便,很受市场欢迎。



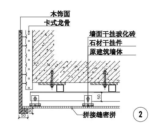
墙砖与木饰面交接处收口:
瓷砖不易与木饰面直接拼接,需要做修饰或用其他材质收口,并把握好木饰面、砖、基层三者的厚度。木饰面与墙砖接口可用实木线条收口,保证木饰面与墙砖接拼缝,墙砖做擦缝处理。



墙砖与墙纸交接处收口:
墙砖与墙纸交接处宜用压条做处理,例如不锈钢压条,墙砖易于水,墙纸需做防潮、防水处理。


墙砖与玻璃交接处收口:
墙砖用专用胶固定,需做六面防护,用专用填缝剂擦缝、保洁,玻璃与石材的收口可用金属条。


墙砖与不锈钢交接处收口:
当不锈钢与墙砖拼接高度不在同一水平线时,关注前后压边关系,适当预留工艺缝。



地砖收口
地砖与地毯交接处收口:
地砖需用专用粘合剂,界面剂处理涂刷,地毯用双层专用胶垫,需涂防火涂料,地砖与地毯交界处使用不锈钢嵌条。

砖收口

地砖与木地板交接处收口:
同时铺设木地板与地砖应关注两者完成面需保持平整,水泥砂浆厚度按实际施工现场决定,两者交接处嵌不锈钢条。




其他部位瓷砖收口:
门槛石瓷砖与不同材料交接处收口:
同样瓷砖与不同材料的完成面都需保持平整,交接处一般使用不锈钢嵌条过渡。



瓷砖与乳胶漆吊顶交接处收口:
墙面为瓷砖顶面为乳胶漆时,为了保持收口的美观性,一般使用石膏线进行装饰。


瓷砖窗台收口:
石材台面邻窗型材处,留置3-4mm间隙,用硅酮密封胶收头,硅胶宽度小于等于6mm;石材台面与基层采用粘结剂满粘方式进行粘贴;台面长边应做3~5mm倒角处理;窗台基层墙面处位须切割20mm高,40mm宽,20mm深的边槽,使台面双层部位嵌入。



在装饰工程中,收口是工程实施过程中使用频率最高的一个词汇。甚至有人说:“装饰就是收口,”“不懂收口就不懂装修”之类的概括性总结,这种说法足以彰显收口在实际工作中的重要性。收口的工艺水准及美观程度是体现一件完美“作品”的关键,收口是一种材质的完结,同时也是另一种材质的起始。优秀的收口是点睛之笔,是装饰、装修中的亮点。