关于装修的高级感,既不是刻意追求空间之美,也不是堆砌设计,而是以功能和需求为出发点,创造出独一无二的家。
装修房子的过程,就像画画一样,开始之前内心要有一个大致轮廓,然后再一点点地将每一部分进行细化,最终“画出”我们想要的样子。

今天,为大家分享的案例是『89㎡舒适两居』,第一次看到这个家就被它深深地吸引了,大面积纯白的空间里,穿插着质感灰调和斑驳的阳光,满是高级感。

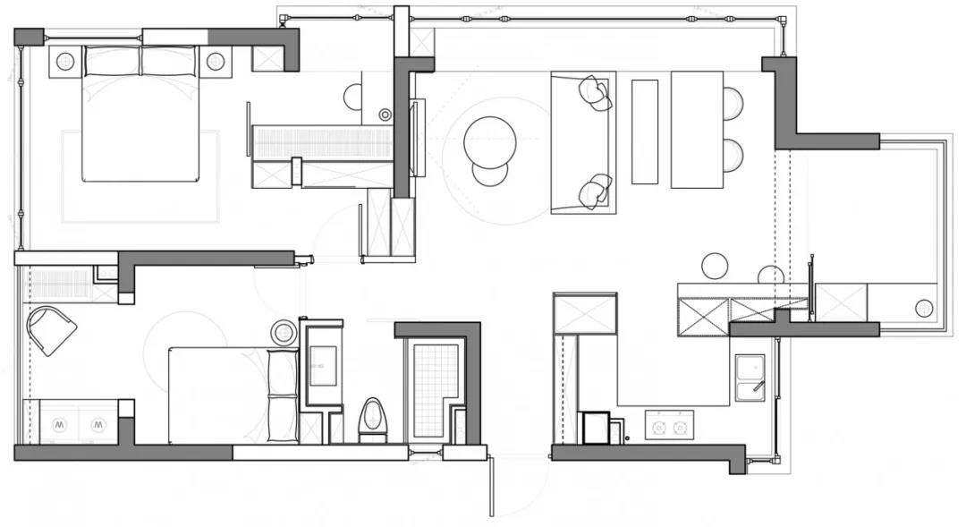
//户型设计//
原始户型中规中矩,格局也较为方正,但是每个空间都比较小,尤其是卧室。为了解决这些问题,设计师做了如下调整:
①拆除卧室原有隔墙,将主卧卫生间改为衣帽间,增加功能性;
②抬高客厅外阳台的地面,增加书房的功能,更具层次感;
③阳台门用“推拉门+玻璃砖”,效果高级抢眼。

整体空间以舒适为主,视觉感“甜而不腻”
全屋整体配色既高级又舒服,客厅刷着简单的白色墙面,厨房则选择了水泥灰墙面,两者在视觉效果上形成了完美的撞色,同时又将两个空间区分开来。在地面的材料选择上,依然如此,从玄关到厨房的一侧是耐脏耐磨的水泥灰地砖,客厅则是温润自然的原木地板,很好地平衡了整屋的态势。


▲客厅:落地窗+百叶帘,妙不可言
客厅内有一整面落地窗,搭配纯白色的百叶帘,简洁大方,很好地将光影的美感捕捉进屋内。飘窗旁摆上了一张三人位咖色面包沙发,柔软的质感,与阳光一同营造美好的生活。


▲客厅:嵌入式电视机,搭配简单木质背景墙
电视背景墙的设计简单清新,直接使用了原木板,为整个空间增加了一份自然气息。电视机采用嵌入式设计,和整个客厅完美地融为一体,还能节省空间。


▲餐厅:小巧紧凑的用餐空间,美味一步到位
餐厅与客厅、厨房相连,均在一个整体空间里,小巧的四人位餐桌,可以满足屋主一家人的用餐需求。餐桌上摆放着一束向日葵,诠释着向阳而生的美好生活。

▲厨房:复古绿+深咖色+水泥灰,质感十足
U型厨房设计,为下厨提供了更舒适的空间。在配色的选择上,复古绿的吧台和深咖色橱柜格外抓人眼球,搭配水泥灰墙面,营造出质感十足的烹饪环境。

▲阳台:巧用玻璃砖,增加全屋的高级感
阳台的隔断选择了“玻璃砖+推拉门”的搭配,晶莹剔透的玻璃砖,增加了全屋的高级感。设计师抬高阳台地面,利用高低差设计手法,使阳台既空间开放又功能独立。

▲阳台:增加书房功能,自成艺术空间
阳台内摆放了简单的书桌和展示柜,这里即使屋主日常办公的场所,也是收藏品的展示地,独特的格局设计,让阳台自成艺术空间。

▲主卧:自带步入式衣帽间,尽显尊贵
起初,主卧内部隔墙设计得很不合理,于是设计师将能拆的隔墙全部拆除,并打通主卫空间,增加衣帽间的功能。

▲主卧:纯白基底之上,用原木色烘托暖意
主卧墙面延续了客厅的大白墙,简单干净,也给予了软装上更多的发挥空间。衣帽间采用长虹玻璃推拉门,搭配原木色家具,营造温馨舒适的室内氛围。

▲次卧:以功能性为主,舒适使用
次卧的设计以简单实用为主,自带生活小阳台,采光率非常高。

【本期总结】
真正的高级感装修,不仅能带来震撼人心的视觉冲击力,还能让人们的生活变得更加美好。如果你也喜欢本期案例,欢迎点赞收藏!
#图文创作打卡挑战活动#